Ấn tượng với mẫu nhà 2 tầng chữ L thiết kế hiện đại chuẩn gu | MH05871
| Chủ đầu tư: Anh Nguyễn Văn Nhị | Số tầng: 2 |
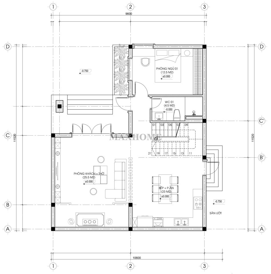
| Địa chỉ: Cẩm Giang, Hải Phòng | Diện tích xây dựng: 10,6 x 11,5m |
| Loại hình: Nhà mái Nhật hiện đại | Tổng diện tích: 175m2 |
Công năng:
|
|
Giữa hàng loạt những phong cách kiến trúc hiện nay, mẫu nhà 2 tầng chữ L của gia đình anh Nhị tại Hải Phòng vẫn nổi bật như một biểu tượng của sự tinh tế và tiện nghi. Công trình được kiến tạo bởi Maxhome – đơn vị thiết kế kiến trúc hàng đầu Việt Nam, mẫu nhà đẹp không chỉ giải quyết bài toán về không gian mà còn khẳng định gu thẩm mỹ hiện đại và sang trọng của gia chủ.
Điểm chạm đầu tiên khiến bất cứ ai khi đi ngang qua cũng phải ngoái nhìn chính là sự phối hợp màu sắc cực kỳ sang, xịn, mịn trên nền diện mạo ngoại thất. Maxhome đã khéo léo sử dụng tông màu trắng sứ làm chủ đạo kết hợp hài hòa với những mảng nhấn màu ghi xám hiện đại tại các vị trí phân tầng và chân tường. Cách phối màu này không chỉ giúp mẫu nhà 2 tầng chữ L trở nên nổi bật, bền màu theo thời gian mà còn tạo cảm giác sạch sẽ và mới mẻ.

Đặc biệt, phần chân tường được ốp đá tự nhiên tối màu giúp tạo điểm tựa thị giác vững chắc cho toàn bộ công trình và có thêm tác dụng bảo vệ ngôi nhà khỏi các tác động của thời tiết, hạn chế tình trạng rêu mốc hay bong tróc do độ ẩm. Đây cũng là một giải pháp vừa thẩm mỹ vừa mang tính kỹ thuật cao mà các chuyên gia của Maxhome luôn ưu tiên tư vấn cho khách hàng.

Không gian ngoại thất trở nên đẳng cấp hơn hẳn nhờ sự kết hợp vật liệu thông minh ở hệ thống cửa. Ngay tại sảnh chính, Maxhome đã lựa chọn hệ cửa thép vân gỗ cao cấp với tông màu nâu trầm ấm áp giúp tạo nên một điểm nhấn bề thế và quyền quý cho mặt tiền ngôi nhà. Loại cửa này không chỉ mang lại vẻ đẹp sang trọng như gỗ tự nhiên mà còn có khả năng chống chọi cực tốt với nắng gió vùng biển Hải Phòng, không lo cong vênh hay mối mọt. Trong khi đó, toàn bộ hệ thống cửa sổ và cửa ban công lại sử dụng chất liệu nhôm kính xingfa hiện đại mang tới nhiều ánh sáng tự nhiên, mở ra những góc nhìn thông thoáng ra khoảng sân vườn xinh xắn phía trước rất thư thái.


Một chi tiết đắt giá khác làm nên sức hút cho mẫu nhà 2 tầng chữ L này chính là thiết kế hệ cột trụ vuông vắn và phần trần hiên được ốp gỗ nhựa sang trọng. Ánh sáng vàng ấm cúng từ hệ đèn âm trần hắt xuống những mảng tường trắng và sàn gạch tạo nên một không gian lung linh, huyền ảo vào buổi tối. Khu vực sân sân được lát gạch xám chống trơn trượt giúp đảm bảo an toàn cho việc di chuyển của người già và trẻ nhỏ, đồng thời cũng là nơi đỗ xe rộng rãi, thuận tiện. Từng chi tiết nhỏ từ bồn hoa, cây cảnh tại chân công trình cho đến hàng rào bao quanh đều được chăm chút tỉ mỉ cho thấy sự tinh tế của Maxhome khi luôn thấu hiểu và cá nhân hóa nhu cầu của khách hàng để tạo nên những công trình chuẩn gu nhất.


Nhắc đến vẻ đẹp thanh lịch của ngôi nhà 2 tầng chữ L này không thể không kể đến hệ mái Nhật màu xanh than được thiết kế với độ dốc vừa phải tạo nên sự cân đối tuyệt vời cho tổng thể. Mái Nhật với đặc trưng là các lớp mái xếp chồng lên nhau, đua ra các hướng giúp thoát nước mưa nhanh chóng và điều hòa không khí tốt hơn. Trong mẫu thiết kế nhà 2 tầng mái Nhật này, hệ mái được tính toán tỉ mỉ để bao phủ lấy toàn bộ khuôn viên để tạo nên sự bề thế và uy nghi. Sự tương phản giữa sắc xanh trầm ấm của mái ngói và sắc trắng tinh khôi của tường nhà đã tạo nên một hiệu ứng thị giác cực kỳ dễ chịu, mang lại cảm giác bình yên nhưng vẫn rất thượng lưu cho gia đình anh Nhị.

Căn nhà 2 tầng chữ L của anh Nhị có kiến trúc độc đáo và được tận dụng khoảng thở của ngôi nhà từ sảnh chính và sảnh phụ dẫn ra sân trước và sân ướt phía sau nhà. Đặc biệt, khoảng sân trước cực kỳ rộng rãi, thoải mái để gia chủ để xe cũng như tổ chức tiệc ngoài trời vui vẻ cùng người thân.


Bước qua cánh cửa chính sang trọng, phòng khách được thiết kế rộng rãi kết hợp khéo léo với không gian thờ tự trang nghiêm rộng 25,5m2, tạo nên một khu vực trung tâm ấm cúng và bề thế ngay tại sảnh chính. Đi sâu vào bên trong là khu vực bếp ăn được ngăn cách tinh tế từ vách lam gỗ giúp giữ được sự kết nối thông thoáng cho toàn bộ mặt sàn. Để đảm bảo sự tiện lợi cho bố mẹ anh Nhị, Maxhome đã bố trí thêm một phòng ngủ yên tĩnh cùng 1 nhà vệ sinh chung được thiết kế hiện đại, sạch sẽ đặt ngay bên cạnh rất thuận tiện.


Tiến lên tầng 2, không gian nghỉ ngơi riêng tư được ưu tiên hàng đầu với thiết kế 3 phòng ngủ rộng rãi, đáp ứng nhu cầu sử dụng cho gia đình đa thế hệ. Điểm đặc biệt trong phương án bố trí của mẫu nhà 2 tầng chữ L này chính là việc thiết kế thêm một phòng kho nhỏ gọn giúp gia đình anh Nhị có thêm không gian lưu trữ đồ đạc gọn gàng, giữ cho ngôi nhà luôn trong trạng thái ngăn nắp nhất. Hệ thống nhà vệ sinh chung trên tầng 2 cũng được lắp đặt các thiết bị cơ bản và đầy đủ, bố trí tại vị trí thuận tiện nhất để tất cả các thành viên đều có thể sử dụng dễ dàng.












