Bán bản vẽ nhà vườn mái Nhật 4 phòng ngủ chi phí thấp, thiết kế tinh tế | MH05561

Chủ đầu tư: Chị Nguyễn Thị Thuỷ Số tầng: 1
Địa chỉ: Đồng Kỵ, Bắc Ninh Diện tích xây dựng: 19,6 x 12,6m
Loại hình: Nhà mái Nhật hiện đại Tổng diện tích: 219m2
Công năng:

Phòng khách, phòng thờ, phòng bếp ăn, 4 phòng ngủ, 3 wc

Trong bối cảnh chi phí xây dựng ngày càng tăng cao, việc lựa chọn bản vẽ nhà vườn mái Nhật 4 phòng ngủ chi phí thấp đang trở thành giải pháp tối ưu được nhiều gia đình quan tâm. Không chỉ sở hữu kiến trúc hài hòa, tinh tế và phù hợp với điều kiện khí hậu Việt Nam, mẫu nhà vườn mái Nhật còn đáp ứng đầy đủ công năng sử dụng cho gia đình nhiều thế hệ. Với phương án bán bản vẽ thiết kế trọn gói, gia chủ có thể tiết kiệm đáng kể thời gian, chi phí thiết kế, đồng thời dễ dàng triển khai thi công thực tế mà vẫn đảm bảo tính thẩm mỹ, công năng khoa học và độ bền lâu dài cho công trình.

Nhà vườn mái Nhật hiện vẫn là lựa chọn được đông đảo khách hàng ưa chuộng nhờ sự hài hòa giữa thẩm mỹ và công năng sử dụng. Nắm bắt xu hướng đó, các kiến trúc sư Maxhome đã triển khai mẫu nhà cấp 4 mái Nhật theo phong cách hiện đại, đề cao sự tối giản và tinh tế. Thiết kế được lược bỏ những chi tiết trang trí cầu kỳ, thay vào đó là các đường nét kiến trúc gọn gàng, bố cục cân đối, tạo nên tổng thể thanh thoát, sang trọng nhưng vẫn gần gũi, phù hợp với nhu cầu sinh hoạt của nhiều gia đình hiện nay.

Với lợi thế mặt tiền rộng gần 20m, khối nhà được triển khai theo phương ngang khá dài, tạo điều kiện thuận lợi cho việc bố trí công năng khoa học và linh hoạt. Nhờ đó, các không gian sinh hoạt được sắp xếp liền mạch, đảm bảo sự thông thoáng, đón gió và ánh sáng tự nhiên tốt hơn, đồng thời giúp công trình trở nên bề thế, cân đối và phù hợp với mô hình nhà vườn hiện đại.

Nhà vườn mái Nhật sử dụng gam màu trắng làm chủ đạo, mang đến vẻ đẹp thanh lịch, tinh tế và phù hợp với nhiều phong cách sống. Trên nền trắng trang nhã, các đường kẻ chỉ ngang được xử lý khéo léo, tạo chiều sâu và nhịp điệu cho mặt đứng công trình. Bên cạnh đó, màu xanh được phối làm điểm nhấn xung quanh không chỉ giúp tổng thể kiến trúc trở nên sinh động, hài hòa với cảnh quan thiên nhiên mà còn làm nổi bật vẻ đẹp nhẹ nhàng, hiện đại của ngôi nhà, tránh cảm giác đơn điệu thường thấy.

Nhà vườn mái Nhật được thiết kế thoáng đãng ở nhiều mặt, tận dụng tối đa lợi thế quỹ đất rộng – một ưu điểm nổi bật của mô hình nhà vườn. Hệ thống cửa nhôm hệ Xingfa kết hợp kính cường lực được bố trí xung quanh giúp tăng khả năng đón gió, lấy sáng tự nhiên, mang lại không gian sống luôn thông thoáng, tiết kiệm năng lượng và gần gũi với thiên nhiên. Riêng cửa chính sử dụng thép vân gỗ màu nâu tạo điểm nhấn ấn tượng, không chỉ đảm bảo độ bền, an toàn mà còn góp phần nâng tầm thẩm mỹ, mang đến vẻ sang trọng và ấm cúng cho tổng thể công trình.

Từ góc nhìn trên cao, có thể dễ dàng quan sát tổng thể nhà vườn mái Nhật với 3 sảnh chính – phụ được bố trí khoa học, tạo sự thuận tiện trong quá trình di chuyển và sử dụng. Mỗi khu vực sảnh đều được thiết kế bậc tam cấp gồm 5 bậc, giúp nâng cao nền nhà, đảm bảo yếu tố phong thủy và hạn chế ẩm thấp. Toàn bộ bậc cấp được ốp đá granite màu đen sang trọng, không chỉ tạo điểm nhấn mạnh mẽ cho mặt tiền mà còn có độ bền cao, chống trơn trượt, dễ vệ sinh và phù hợp với điều kiện sử dụng lâu dài.

Hệ mái Nhật được thiết kế đua rộng về nhiều hướng, giúp che chắn hiệu quả cho tường và các khu vực sảnh, hạn chế tác động trực tiếp của nắng mưa. Phần mái sử dụng gam màu xanh than trang nhã, tạo điểm nhấn thẩm mỹ nổi bật, đồng thời hài hòa với tổng thể kiến trúc nhà vườn. Với độ dốc nhẹ đặc trưng của mái Nhật, công trình đảm bảo khả năng thoát nước nhanh, chống ứ đọng, giúp mái luôn khô ráo, bền đẹp theo thời gian và đặc biệt phù hợp với điều kiện khí hậu Việt Nam.

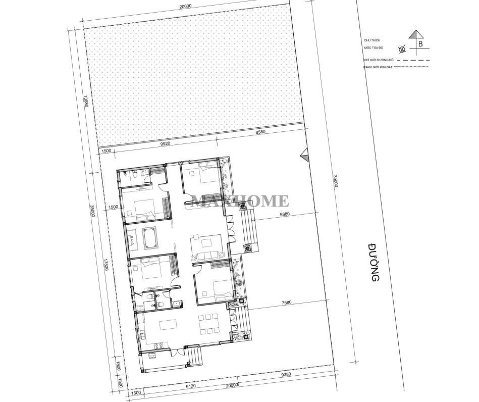
Thông qua bản vẽ mặt bằng định vị, có thể dễ dàng hình dung khuôn viên tổng thể của ngôi nhà vườn mái Nhật với kích thước xây dựng khoảng 19,6 x 12,6m. Cách bố trí công trình trên khu đất được nghiên cứu kỹ lưỡng, đảm bảo sự cân đối, thông thoáng và thuận tiện trong quá trình sử dụng. Tổng diện tích sử dụng thực tế đạt khoảng 219m², đáp ứng tốt nhu cầu sinh hoạt của gia đình nhiều thành viên, đồng thời vẫn giữ được không gian sân vườn xanh mát, đúng tinh thần an yên của mô hình nhà vườn.

 

Mặt bằng định vị công trình

Từ sảnh chính bước vào, không gian đầu tiên là phòng khách rộng rãi, được bố trí thoáng đãng, thuận tiện cho sinh hoạt và tiếp đón khách. Kế tiếp là phòng thờ trang nghiêm, đặt ở vị trí trang trọng, đảm bảo sự yên tĩnh và yếu tố phong thủy. Khu vực bếp – ăn được bố trí tách biệt về một bên, sở hữu sảnh phụ riêng và lối cửa mở ra bên hông, giúp không gian bếp luôn thông thoáng, hạn chế ám mùi và tăng sự tiện nghi trong quá trình sử dụng.

Mặt bằng bố trí công năng nhà cấp 4

Mẫu nhà vườn mái Nhật được bố trí 4 phòng ngủ tiện nghi, đáp ứng tốt nhu cầu sinh hoạt của gia đình đông thành viên hoặc nhiều thế hệ cùng chung sống. Trong đó, phòng ngủ 02 và phòng ngủ 03 được thiết kế nhà vệ sinh khép kín, mang lại sự riêng tư và thuận tiện trong quá trình sử dụng. Hai phòng ngủ còn lại sử dụng chung một nhà vệ sinh, được bố trí hợp lý, đảm bảo khoảng cách di chuyển ngắn, đồng thời tối ưu diện tích và chi phí xây dựng mà vẫn đáp ứng đầy đủ công năng.

Yêu cầu tư vấn

    *Vui lòng để lại thông tin, nhân viên tư vấn sẽ liên hệ lại quý khách trong thời gian sớm nhất