Bản vẽ nhà 2 tầng dân dụng phù hợp quy mô xây dựng ở nông thôn | MH06079
| Chủ đầu tư: Chị Hằng | Số tầng: 2 |
| Địa chỉ: Đắk Lắk | Diện tích xây dựng: 7,2 x 15,5m |
| Loại hình: Nhà mái Nhật tân cổ điển | Tổng diện tích: 234m2 |
Công năng:
|
|
Việc tìm kiếm một bản vẽ nhà 2 tầng dân dụng đáp ứng được sự bề thế, sang trọng và phải phù hợp với đặc điểm quy mô xây dựng tại các vùng nông thôn hiện nay đang trở thành mối quan tâm hàng đầu của nhiều chủ đầu tư có tiềm lực tài chính. Giới thiệu tới bạn mẫu nhà đẹp của gia đình chị Hằng tại Đắk Lắk hiện lên như một chuẩn mực mới cho kiến trúc nhà ở dân dụng cao cấp.
Công trình nhà 2 tầng dân dụng này có kích thước xây dựng 7,2×15,5m và sở hữu diện tích 234m2, Maxhome đã khéo léo phô diễn những đường nét phào chỉ, hoa văn đắp nổi cầu kỳ trên các diện tường để tạo nên những điểm nhấn thị giác đầy mê hoặc, đặc trưng cho tinh thần tân cổ điển châu Âu.

Mặt tiền của ngôi nhà 2 tầng dân dụng này, mặc dù sở hữu bề ngang 7,2m không quá lớn nhưng lại toát lên sự vững chãi và quyền uy nhờ hệ thống cột trụ được thiết kế phân tầng đầy ý đồ nghệ thuật. Tại tầng 1, cặp cột vuông khối lớn với các chi tiết thức cột mạnh mẽ đóng vai trò là bệ đỡ vững chắc, nâng tầm vị thế cho không gian sảnh chính. Tuy nhiên, khi lên đến tầng 2, sự cứng cáp ấy lại được chuyển hóa một cách tài tình thành hệ cột tròn mềm mại, duyên dáng, mang đến một nhịp điệu kiến trúc uyển chuyển và nhẹ nhàng hơn. Chính sự biến đổi linh hoạt này đã xóa tan cảm giác khô cứng của các khối bê tông, thay vào đó là sự tinh tế trong từng đường nét mà bất kỳ ai đi ngang qua cũng phải trầm trồ khen ngợi.

Điểm xuyết cho vẻ đẹp quý tộc ấy là hệ thống lan can ban công được chế tác từ sắt nghệ thuật uốn lượn tinh xảo. Những hoa văn mềm mại được phủ lớp sơn mạ đồng sang trọng không chỉ bảo vệ an toàn mà còn như những món trang sức đắt giá trang điểm cho ngoại thất ngôi nhà. Đặc biệt, khu vực cửa chính được gia chủ đặc biệt chú trọng đầu tư với chất liệu gỗ cao cấp, chạm khắc tinh vi như một lời chào nồng hậu và trang trọng trước khi bước vào không gian nội thất. Để cân bằng giữa nét cổ điển và hơi thở thời đại, các hệ cửa sổ còn lại được sử dụng kính cường lực khung nhôm đen chắc chắn giúp tối ưu hóa ánh sáng tự nhiên và mở ra tầm nhìn thoáng đãng cho từng phòng chức năng.


Khi hoàng hôn buông xuống, mẫu nhà 2 tầng dân dụng tại Đắk Lắk lại càng trở nên lung linh và huyền ảo hơn bao giờ hết. Dưới diềm trần mái, dải đèn LED hiện đại được lắp đặt chạy dọc theo các đường chỉ và tỏa ra ánh sáng rực rỡ, soi rọi từng chi tiết kiến trúc công phu. Ánh sáng vàng ấm từ hệ đèn tường và đèn trần làm nổi bật sắc trắng của sơn tường và còn tạo nên một không gian sống ấm cúng, sang trọng và đầy kiêu sa. Sự chăm chút tỉ mỉ từ hệ thống chiếu sáng đến những chậu cây xanh được bố trí hài hòa tại các góc ban công và chân tường đã tạo nên một tổng thể hoàn hảo, tay nghề của đội ngũ thiết kế Maxhome đã phối hợp tuyệt vời giữa kiến trúc và thiên nhiên, giữa giá trị truyền thống và tiện nghi hiện đại.

Nhìn tổng thể từ trên cao, mẫu nhà 2 tầng dân dụng hiện lên đầy kiêu hãnh với hệ mái Nhật màu xanh than lịch lãm. Độ dốc mái được tính toán kỹ lưỡng theo tỉ lệ vàng, đảm bảo khả năng thoát nước nhanh chóng trong mùa mưa Tây Nguyên và mang tới một diện mạo thanh thoát, cân đối cho tổng thể tòa nhà. Sự kết hợp giữa sắc xanh trầm mặc của mái ngói và tông màu trắng tinh khôi của diện tường đầy quý phái, khiến mẫu nhà đẹp luôn giữ được vẻ đẹp tươi mới và trường tồn cùng thời gian.


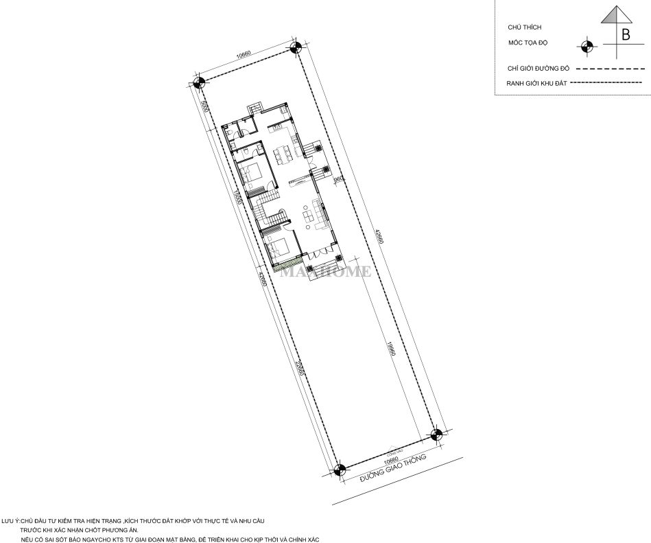
Nhìn vào mặt bằng định vị công trình, bạn có thể thấy ngôi nhà 2 tầng dân dụng được đặt một cách tinh tế trên khu đất có chiều dài ấn tượng, tạo nên một khoảng lùi sân trước vô cùng rộng rãi lên tới gần 23m. Tổng chiều dài khu đất hơn 42m, công trình được xây dựng với kích thước 7,2×15,5m và để lại các khoảng không gian mở xung quanh, giúp ngôi nhà luôn đón được gió trời và ánh sáng tự nhiên từ mọi phía.

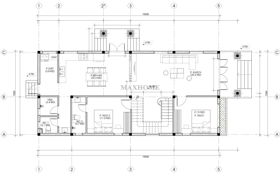
Bước qua sảnh chính sang trọng, ktâm điểm là phòng khách rộng 26,2m2 kết nối liên thông với khu vực phòng bếp và bàn ăn 22,3m2 tạo nên một không gian sinh hoạt chung vô cùng thoáng đạt và ấm cúng. Tại tầng này có 2 phòng ngủ đồng diện tích 11,5m2 mỗi phòng, không gian nghỉ ngơi được bố trí khéo léo tại các góc yên tĩnh, đảm bảo sự riêng tư tuyệt đối cho các thành viên. Hệ thống phụ trợ gồm khu vực giặt phơi 3,8m2 cùng nhà vệ sinh và phòng tắm riêng biệt được đặt ở phía cuối hành lang cho thấy sự tinh tế trong việc tách bạch giữa không gian tiếp khách và khu vực sinh hoạt hậu cần, đảm bảo sự chỉn chu nhất cho gia đình chị Hằng.

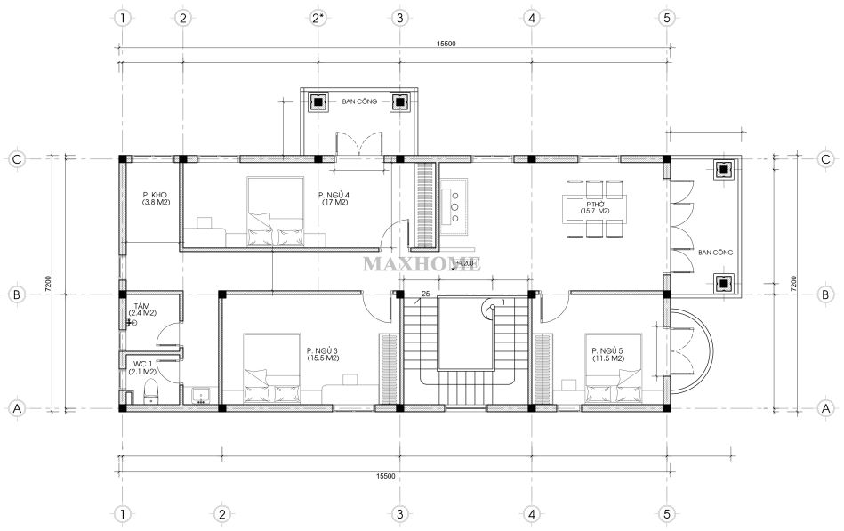
Tiến lên tầng 2 thông qua hệ thống cầu thang uốn lượn mềm mại, không gian được phân chia khoa học với 3 phòng ngủ và phòng thờ trang trọng rộng 15,7m2 hướng thẳng ra ban công chính. Trong đó, phòng ngủ 04 chiếm diện tích ưu tiên lên đến 17m2, sở hữu tầm nhìn thoáng đãng và không gian rộng mở, đây là nơi nghỉ ngơi lý tưởng cho chủ nhân ngôi nhà. Điểm đặc biệt của tầng 2 là sự xuất hiện của các khoảng ban công rộng tại các mặt mang tới giải pháp kiến trúc giúp điều hòa không khí cho toàn bộ khối nhà. Việc bố trí thêm một phòng kho nhỏ và hệ thống vệ sinh đồng bộ tại tầng này hoàn thiện một mặt bằng công năng đa năng, đáp ứng trọn vẹn mọi nhu cầu từ tâm linh, nghỉ ngơi đến lưu trữ của một gia đình đầy đủ tiện nghi.











