Bản vẽ nhà cấp 4 mái ngói đỏ với mặt bằng dễ thi công và tiết kiệm | MH05824
| Chủ đầu tư: Anh Phạm Văn Tạo | Số tầng: 1 |
| Địa chỉ: Hà Nam, Hải Phòng | Diện tích xây dựng: 12,8 x 16m |
| Loại hình: Nhà mái Nhật hiện đại | Tổng diện tích: 136m2 |
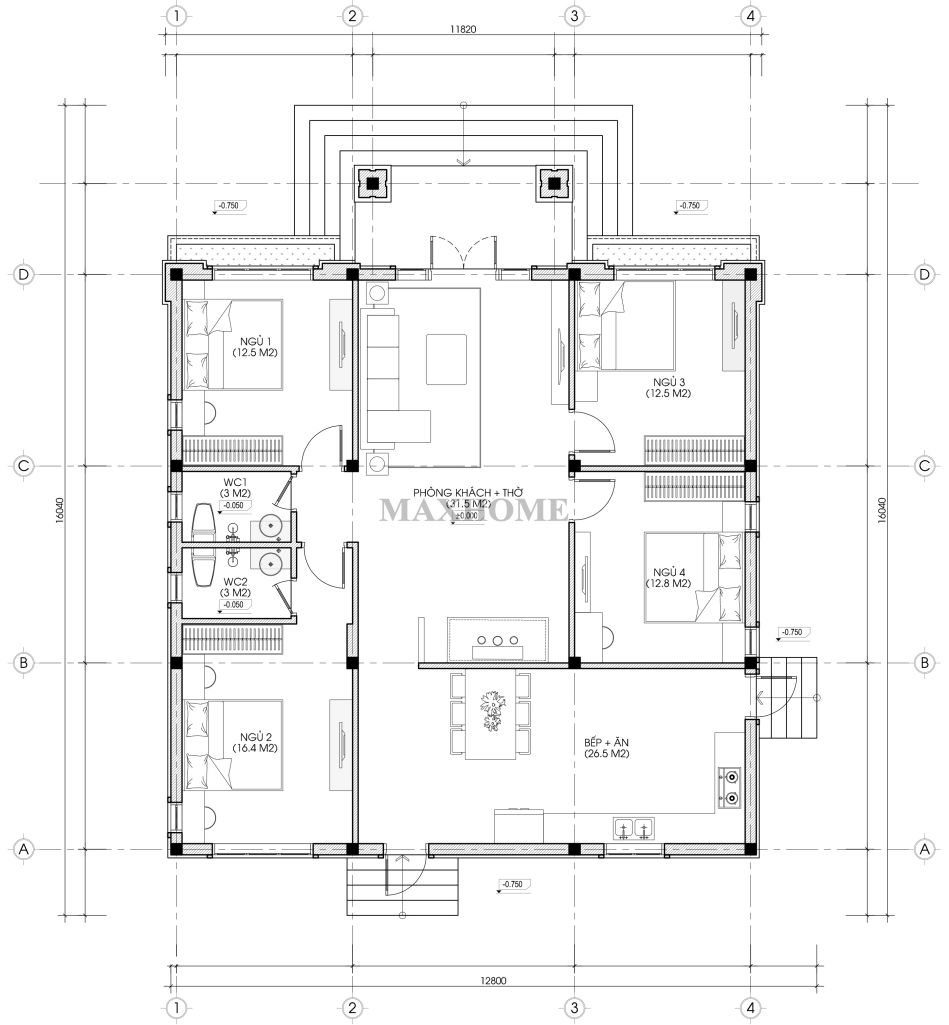
| Công năng:
Phòng khách + thờ, phòng bếp ăn, 4 phòng ngủ, 2 wc |
|
Khi nhắc đến bản vẽ nhà cấp 4, nhiều người sẽ nghĩ ngay đến sự đơn giản và quen thuộc của kiểu nhà truyền thống. Tuy vậy, mẫu thiết kế của nhà anh Tạo ở Hải Phòng lại mang đến cảm giác hiện đại hơn nhiều dù vẫn giữ được nét thân quen ấy.
Nhìn từ mặt trước, bản vẽ nhà cấp 4 này đã gợi nhớ đến kiểu nhà ba gian ngày xưa nhưng đã được làm mới để phù hợp với nhu cầu sống hiện nay. Mái ngói đỏ nổi bật mang dáng dấp mộc mạc của kiến trúc truyền thống đồng thời tạo nên điểm nhấn thu hút ngay từ cái nhìn đầu tiên.

Trên mái còn được bố trí thêm chi tiết ô cửa sổ giả giúp ngôi nhà sinh động hơn và tránh cảm giác trống trải khi nhìn từ xa. Đặc biệt, hệ mái Nhật trải đều về bốn hướng và đua rộng 810 mm giúp hạn chế nước mưa tạt vào hiên và đem lại sự bền bỉ cho tổng thể. Ngay dưới diềm mái là lớp ốp gỗ nhựa vừa giữ được tính thẩm mỹ vừa tăng độ bền trước thời tiết, hoàn thiện thêm vẻ ngoài chỉn chu của mẫu nhà đẹp này.

Đi tiếp vào phần thân nhà, tường được sơn màu trắng tinh gọn, dễ nhìn và mang lại sự sạch sẽ cho tổng thể ngôi nhà. Lớp sơn trắng kết hợp với phần mái đỏ tạo nên sự tương phản nhẹ nhàng vừa đủ nổi bật nhưng không quá chói. Điều khiến bản vẽ nhà cấp 4 này thêm phần thu hút chính là hệ cột mặt tiền được sơn các đường kẻ chỉ màu nâu đỏ. Màu sắc này hòa với tông màu mái giúp liên kết mọi chi tiết lại với nhau và tạo nên một tổng thể hài hòa. Nhìn lâu vẫn không bị rối mắt mà ngược lại còn giúp mặt tiền trông vững chãi và sang hơn.

Ngay dưới các ô cửa sổ là phần bệ âm tường 50mm được ốp đá khổ lớn với sắc sáng, mịn và tinh tế. Chi tiết này vừa đẹp mắt vừa giúp hạn chế bám bẩn, rất phù hợp với khí hậu miền Bắc như Hải Phòng. Những mảng đá sáng màu này kết hợp cùng tường trắng giúp mặt đứng của ngôi nhà anh Tạo có thêm chiều sâu và tạo cảm giác sạch sẽ quanh năm. Đây cũng là điểm nhấn khiến bản vẽ nhà cấp 4 của Maxhome luôn được đánh giá cao nhờ sự tinh gọn và tính thực tế.

Bậc tam cấp phía trước được thiết kế thành năm bậc và trải rộng sang ba hướng. Điều này khiến mặt tiền thêm phần rộng rãi và tạo cảm giác chào đón ngay từ lối đi lên. Dáng bậc thấp thoáng nét của nhà truyền thống nhưng được bố trí hợp lý hơn để tiện cho việc sinh hoạt. Khi kết hợp toàn bộ lại, mặt tiền nhà anh Tạo trở thành một tổng thể thanh thoát, dễ nhìn và rất phù hợp với những gia đình muốn một thiết kế bền, đẹp và ít lỗi thời.

Điểm đáng chú ý tiếp theo là hệ cửa của căn nhà sử dụng chất liệu thép vân gỗ, tay nắm cửa inox tạo cảm giác chắc chắn và sang trọng. Nhờ lớp kính pano dày 8.38 mm chạy quanh khung cửa mà ánh sáng tự nhiên được đưa vào bên trong một cách mềm mại. Đây là chi tiết vừa mang tính thẩm mỹ vừa tăng tính tiện dụng giúp ngôi nhà cấp 4 mái Nhật luôn sáng và đón gió tốt hơn.

Hệ cửa sổ sử dụng khung nhôm đen kết hợp kính cường lực tạo đường nét sắc gọn và hiện đại. Khung nhôm màu tối nổi bật trên nền tường trắng nhấn mạnh sự tinh tế trong phối màu. Việc dùng kính cường lực còn giúp mở rộng tầm nhìn từ bên trong đón nắng và gió hiệu quả hơn, đặc biệt phù hợp với những ngôi nhà một tầng nhiều không gian mở.

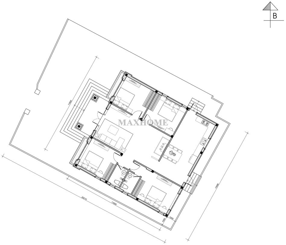
Với kích thước vuông vức của khuôn đất nhà anh Tạo, công trình nhà cấp 4 được xây dựng rất đẹp trên mảnh đất Hải Phòng. Đặc biệt, ngôi nhà có tới 3 lối đi ra vào càng làm cho không khí trong nhà được lưu thông thoáng mát, kết hợp hệ cửa sổ xung quanh sẽ mang tới không gian sống thư thái như một khu nghỉ dưỡng tại gia cho cả nhà anh Tạo.


Đi từ sảnh chính vào là phòng khách được bố trí kết hợp không gian thờ ở vị trí trung tâm tạo sự trang trọng và thuận tiện cho sinh hoạt chung. Phía sau là khu bếp và phòng ăn rộng rãi đặt ngay cạnh hai lối đi phụ giúp không gian nấu nướng luôn thoáng và không bị ám mùi. Bốn phòng ngủ được bố trí hợp lý để đảm bảo sự riêng tư và thoáng khí cho từng thành viên. Hai nhà vệ sinh đặt ở vị trí thuận tiện để dễ sử dụng cho cả khách lẫn người trong nhà và giúp việc sinh hoạt hằng ngày diễn ra thoải mái hơn.
Nếu bạn đang tìm một bản vẽ nhà cấp 4 vừa đẹp vừa tiết kiệm mà vẫn mang dấu ấn riêng thì mẫu thiết kế nhà anh Tạo chắc chắn là gợi ý đáng tham khảo.











