Bản vẽ nhà cấp 4 mái Nhật mặt tiền 7m HOT nhất 2025 | MH05689
| Chủ đầu tư: Anh Trần Xuân Hoà | Số tầng: 1 |
| Địa chỉ: Thiên Cầm, Hà Tĩnh | Diện tích xây dựng: 7 x 16m |
| Loại hình: Nhà mái Nhật hiện đại | Tổng diện tích: 112m2 |
| Công năng:
Phòng khách, phòng bếp ăn, 4 phòng ngủ, 1 wc, phòng tắm |
|
Mẫu nhà cấp 4 mái Nhật mặt tiền 7m này là lựa chọn lý tưởng cho những gia đình yêu thích kiến trúc hiện đại, tinh tế và tiện nghi. Với thiết kế thông minh, tận dụng tối đa không gian sử dụng và ánh sáng tự nhiên, công trình không chỉ mang đến vẻ đẹp sang trọng mà còn đáp ứng đầy đủ nhu cầu sinh hoạt hàng ngày của mọi thành viên trong gia đình. Đây là một trong những mẫu nhà đẹp đang được nhiều gia chủ săn đón nhờ sự hài hòa giữa thẩm mỹ và công năng.
Nếu các công trình tân cổ điển thường chú trọng vào những đường nét phào chỉ tinh xảo và hệ vòm uyển chuyển để tạo điểm nhấn, thì phong cách hiện đại lại đề cao hình khối mạnh mẽ kết hợp cùng các vật liệu ốp lát sang trọng nhằm mang đến tổng thể hài hòa và trẻ trung. Mới đây, Maxhome đã hoàn thiện bộ hồ sơ thiết kế cho mẫu nhà cấp 4 mái Nhật mang phong cách hiện đại, thể hiện rõ sự tinh giản trong đường nét nhưng vẫn đảm bảo tính thẩm mỹ và công năng vượt trội.

Công trình nhà cấp 4 mái Nhật này sở hữu chiều cao tổng thể khoảng 7,5m cùng mặt tiền rộng 7m, tạo nên tỷ lệ hài hòa và giúp kiến trúc trở nên thanh thoát, cân đối hơn. Ngôi nhà sử dụng gam màu trắng làm chủ đạo, kết hợp điểm nhấn màu xanh than ở phần mái và một số chi tiết trang trí, tạo cảm giác hiện đại nhưng vẫn rất trang nhã. Hệ gạch ốp gồm gạch thẻ bố trí ở các mảng tường và đá chẻ ốp chân tường góp phần tăng tính thẩm mỹ, đồng thời bảo vệ công trình trước tác động của thời tiết, giúp ngôi nhà luôn bền đẹp theo thời gian.

Với phong cách nhà vườn, Maxhome tận dụng tối đa ánh sáng tự nhiên bằng việc bố trí nhiều ô cửa sổ xung quanh ngôi nhà. Cửa chính được chế tác từ thép vân gỗ sang trọng, vừa bền bỉ vừa tạo điểm nhấn thẩm mỹ, trong khi hệ cửa sổ và cửa đi còn lại sử dụng nhôm hệ Xingfa kết hợp kính cường lực, mang lại tầm nhìn rộng, thoáng đãng và cảm giác gần gũi với thiên nhiên. Thiết kế này không chỉ tăng cường ánh sáng, thông gió mà còn góp phần làm nổi bật vẻ đẹp hiện đại và thanh lịch của toàn bộ công trình.

Hệ mái Nhật của công trình được thiết kế với độ dốc vừa phải, kết hợp các rãnh thoát nước thông minh nhằm hạn chế nước mưa tạt vào trong nhà. Điểm đặc biệt của ngôi nhà là việc bố trí thêm tầng áp mái, giúp nâng cao tổng thể độ cao của công trình, đồng thời cải thiện hiệu quả lưu thông và điều hòa không khí bên trong. Thiết kế này không chỉ mang lại vẻ thanh thoát, hiện đại cho ngoại thất mà còn tối ưu hóa không gian sử dụng, góp phần tăng sự thoáng mát cho nhà cấp 4 mái Nhật.

Khi thực hiện bản vẽ thiết kế, Maxhome bố trí đầy đủ mọi góc nhìn, bao gồm cả chi tiết hệ thống cổng nhằm giúp khách hàng dễ dàng theo dõi và thi công từng hạng mục một cách chính xác. Thiết kế chi tiết này không chỉ đảm bảo tính thẩm mỹ và công năng của công trình mà còn hỗ trợ quá trình thi công diễn ra thuận lợi, tiết kiệm thời gian và hạn chế sai sót.

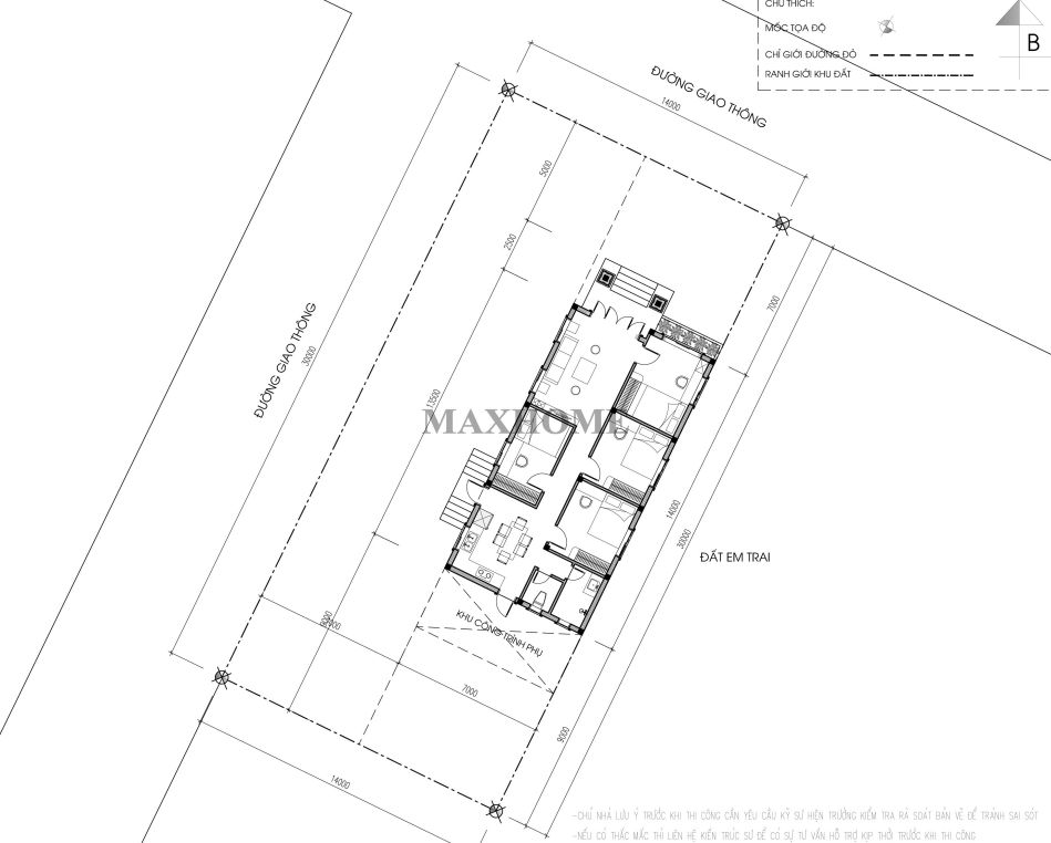
Công trình nhà mái Nhật mặt tiền 7m được xây dựng trên khuôn viên đất hiện trạng rộng 420m², trong đó diện tích dành cho xây dựng là lô đất có kích thước 7 x 16m, tương đương tổng diện tích xây dựng khoảng 112m². Việc phân chia diện tích hợp lý này không chỉ tối ưu hóa không gian sống mà còn tạo điều kiện cho sân vườn, lối đi và các khu vực chức năng khác, mang lại sự cân đối và hài hòa cho toàn bộ công trình.

Từ sảnh chính bước vào là không gian phòng khách rộng rãi, được bố trí thông thoáng giúp đón sáng và gió tự nhiên. Tiếp nối khu vực này là hệ thống 4 phòng ngủ được sắp xếp khoa học xung quanh nhà, tạo sự riêng tư và thuận tiện cho từng thành viên. Khu vực bếp ăn được đặt tách biệt ở cuối nhà nhằm hạn chế ám mùi vào không gian sinh hoạt chung, đồng thời có thêm một cửa phụ mở ra bên hông giúp việc di chuyển, nấu nướng và thoát khí trở nên dễ dàng hơn. Cuối nhà là 1 nhà vệ sinh chung và 1 phòng tắm độc lập, đảm bảo tiện nghi cho quá trình sử dụng hằng ngày.












