Bản vẽ nhà cấp 4 tân cổ điển trắng tinh khôi, nền nã và sang trọng | MH06052
| Chủ đầu tư: Anh Trần Tùng Khánh | Số tầng: 1 |
| Địa chỉ: Cẩm Xuyên, Hà Tĩnh | Diện tích xây dựng: 9,9 x 17,1m |
| Loại hình: Nhà mái Nhật tân cổ điển | Tổng diện tích: 113m2 |
| Công năng:
Phòng khách, phòng thờ, phòng bếp, 3 phòng ngủ, 2 wc, sân ướt |
|
Trong những ngày khởi đầu của năm mới 2026, giữa không khí hân hoan và đầy hy vọng, Maxhome rất vui mừng được chia sẻ tới quý khách hàng một tác phẩm kiến trúc đầy tâm huyết vừa được bàn giao cho gia đình anh Khánh tại Hà Tĩnh. Đây là một mẫu thiết kế mang tính biểu tượng cho sự giao thoa giữa nét hoài cổ quý phái và sự phóng khoáng của thời đại, một bản thiết kế nhà cấp 4 tân cổ điển trắng tinh khôi, nền nã và sang trọng.
Ngay từ khi những nét vẽ đầu tiên được phác thảo, căn nhà cấp 4 tân cổ điển đã hiện lên với một vẻ đẹp thanh thoát, không quá phô trương nhưng vẫn đủ để khiến bất cứ ai đi ngang qua cũng phải trầm trồ khen ngợi bởi sự tinh tế trong từng đường kim mũi chỉ của kiến trúc. Điểm nhấn đầu tiên và cũng là linh hồn của ngôi nhà chính là sắc trắng tinh khôi bao phủ toàn bộ diện tường tạo nên một cảm giác sạch sẽ, nhẹ nhàng và vô cùng quyền quý.

Trên nền trắng ấy, đội ngũ thiết kế Maxhome đã khéo léo điểm xuyết hệ thống phào chỉ và phù điêu được đắp vẽ tỉ mỉ. Quan sát kỹ bản vẽ mặt đứng, chúng ta thấy sự xuất hiện của những đường kẻ chỉ lõm âm tường với kích thước 30x15mm chạy ngang đều đặn giúp diện tường bớt đi sự đơn điệu và tăng thêm chiều sâu thị giác. Sự sang trọng còn đến từ hệ cột trụ vuông vức ở sảnh chính với phần đầu cột và chân cột được trang trí hoa văn cách điệu kết hợp cùng mái vòm bán nguyệt mềm mại tại sảnh phụ vững chãi và duyên dáng.

Về thông số kỹ thuật, ngôi nhà cấp 4 tân cổ điển của gia đình anh Khánh được tính toán cực kỳ khoa học để tối ưu hóa không gian sống trên một mặt sàn. Với tổng chiều dài công trình lên tới 17,1m và chiều rộng mặt tiền gần 10m, căn nhà cấp 4 này sở hữu một diện tích lý tưởng để bố trí các khu vực chức năng. Cốt nền được đẩy cao 750mm so với sân, tương ứng với hệ bậc tam cấp 5 bậc được ốp đá tự nhiên sang trọng giúp ngôi nhà trông bề thế, cao ráo hơn và còn đảm bảo việc thoát nước, chống ẩm mốc tối đa vào mùa mưa bão.


Công trình lắp đặt hệ thống cửa sổ nhôm kính Xingfa màu đen tuyền nổi bật trên nền tường trắng cùng với các ô kính lớn giúp đón trọn ánh sáng tự nhiên vào mọi ngóc ngách trong nhà. Các chi tiết trang trí như phào mái hay phào lồi kích thước 100x50mm được tính toán tỉ lệ vàng tạo nên sự hài hòa tuyệt đối. Phần chân tường được ốp gạch chẻ màu ghi sẫm vừa có tác dụng tạo điểm nhấn thị giác và bảo vệ lớp sơn trắng khỏi các tác động bẩn từ môi trường, giữ cho công trình luôn bền đẹp như mới theo thời gian.

Phần mái Nhật với độ dốc lớn sử dụng ngói màu xanh ghi đậm có tương phản hoàn hảo với sắc trắng của tường, đồng thời giúp công trình đạt đến sự cân bằng về màu sắc theo đúng quy luật âm dương trong phong thủy. Sự nền nã trong màu sắc, sự sang trọng trong đường nét và sự khoa học trong thông số kỹ thuật đã tạo nên một tổng thể hoàn mỹ. Maxhome tin rằng, đây sẽ là một gợi ý tuyệt vời cho những ai đang tìm kiếm một không gian sống yên bình, tiện nghi nhưng vẫn toát lên vẻ cao sang, quyền quý.

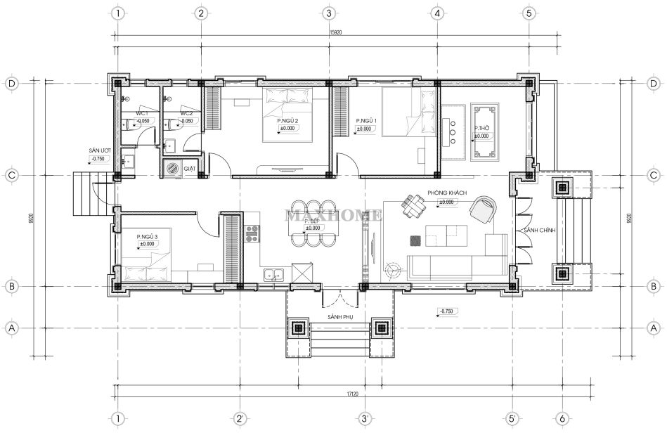
Bản vẽ mặt bằng định vị tiết lộ một không gian sống của căn nhà cấp 4 tân cổ điển được quy hoạch vô cùng khoa học và tiện nghi trên cùng một mặt sàn. Từ sảnh chính đi vào là khu vực phòng khách rộng rãi, nơi được đặt bộ sofa chữ L lớn đối diện với hệ kệ tivi để mang đến không gian đón tiếp khách sang trọng và ấm cúng. Tiếp nối với phòng khách là không gian phòng thờ được đặt ở vị trí trang trọng nhìn ra mặt tiền của ngôi nhà để đảm bảo yếu tố phong thủy. Trung tâm của ngôi nhà là khu vực phòng bếp bài trí bàn ăn 6 chỗ ngồi được thiết kế mở để tạo sự thông thoáng nhưng vẫn đảm bảo tính riêng tư nhờ hệ sảnh phụ dẫn trực tiếp ra bên ngoài, giúp việc di chuyển và lưu thông không khí khi nấu nướng trở nên dễ dàng hơn.


Hành lang giao thông chạy dọc ngôi nhà dẫn lối đến khu vực nghỉ ngơi của gia đình với 3 phòng ngủ được bố trí hợp lý để đảm bảo sự yên tĩnh tối đa. Phòng ngủ 01 và phòng ngủ 02 nằm liền kề nhau với diện tích tương đồng, trong khi phòng ngủ 03 được đặt đối diện khu vực bếp, tất cả đều sở hữu cửa sổ lớn để tận dụng ánh sáng tự nhiên. Ở phía cuối nhà, Maxhome đã bố trí khu vực vệ sinh chung gồm 2 nhà vệ sinh cùng khu vực giặt phơi và sân ướt riêng biệt phía sau. Việc tách biệt khu vực vệ sinh và sân ướt giúp không gian sinh hoạt chính luôn khô ráo, sạch sẽ đồng thời đáp ứng trọn vẹn nhu cầu sinh hoạt của một gia đình đông thành viên tại Hà Tĩnh.











