Bật mí mẫu nhà cấp 4 mái Nhật 4 phòng ngủ đang gây sốt tại Thanh Hóa | MH05406
| Chủ đầu tư: Anh Nguyễn Đức Quyền | Số tầng: 1 |
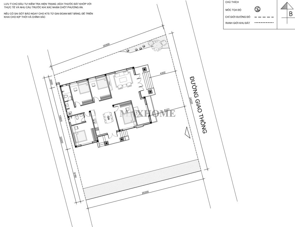
| Địa chỉ: Quảng Chính, Thanh Hoá | Diện tích xây dựng: 11,7 x 15,4m |
| Loại hình: Nhà mái Nhật hiện đại | Tổng diện tích: 150m2 |
| Công năng:
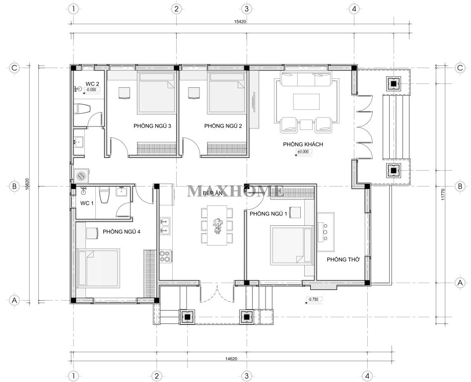
Phòng khách, phòng thờ, phòng bếp ăn, 4 phòng ngủ, 2 wc |
|
Giữa nhịp sống hiện đại, những mẫu nhà cấp 4 mái Nhật vẫn luôn chiếm được cảm tình nhờ vẻ đẹp tinh tế, sang trọng và phù hợp với khí hậu Việt Nam. Trong đó, mẫu nhà cấp 4 mái Nhật 4 phòng ngủ tại Thanh Hóa do Maxhome thiết kế và thi công đang “gây sốt” trên các diễn đàn kiến trúc nhờ cách bố trí khoa học, không gian sống tiện nghi và tính thẩm mỹ cao.
Dưới đây là bản vẽ nhà cấp 4 quen thuộc đối với nhiều khách hàng của Maxhome, được xem là “mẫu nhà quốc dân” nhờ thiết kế mang phong cách hiện đại, tinh tế và phù hợp với xu hướng kiến trúc ngày nay. Kiểu nhà này không chỉ ghi điểm bởi vẻ đẹp trẻ trung, tối giản mà còn bởi chi phí xây dựng hợp lý, giúp chủ đầu tư dễ dàng hiện thực hóa ngôi nhà mơ ước của mình. So với phong cách tân cổ điển, mẫu nhà hiện đại có thiết kế gọn gàng hơn, thi công nhanh chóng và linh hoạt trong việc bố trí công năng, đáp ứng tốt nhu cầu sử dụng của các gia đình Việt hiện nay.

Màu sắc là một trong những yếu tố quan trọng góp phần tạo nên vẻ đẹp tổng thể cho ngôi nhà. Ở mẫu nhà cấp 4 mái Nhật này, gam màu trắng chủ đạo mang đến cảm giác tinh tế, trang nhã và rộng rãi hơn cho không gian. Bên cạnh đó, kiến trúc sư đã khéo léo phối hợp thêm sắc xanh ghi ở các mảng tường mặt tiền, tạo điểm nhấn hài hòa và hiện đại. Đặc biệt, việc sử dụng các vật liệu trang trí như gạch thẻ và đá chẻ tại khu vực cột ống khói giả không chỉ tăng thêm chiều sâu thẩm mỹ mà còn giúp công trình trở nên sang trọng, bền bỉ và nổi bật giữa cảnh quan xung quanh.

Ngoài ra, ngôi nhà cấp 4 mái Nhật còn được tô điểm bởi các đường kẻ chỉ âm tinh tế chạy dọc quanh tường, tạo nên hiệu ứng thị giác độc đáo và tăng thêm chiều sâu cho mặt đứng công trình. Chi tiết thiết kế này tuy nhỏ nhưng góp phần làm nổi bật vẻ đẹp hiện đại, giúp các mảng tường bớt đơn điệu và thể hiện sự tỉ mỉ, chăm chút trong từng đường nét kiến trúc.

Từ góc nhìn trên cao, có thể dễ dàng nhận thấy ngôi nhà cấp 4 mái Nhật sở hữu một sảnh phụ bên hông rộng rãi, thuận tiện cho việc di chuyển và đón gió tự nhiên. Bao quanh ngôi nhà là hệ thống bồn hoa được bố trí dọc theo các lối đi, mang lại vẻ đẹp sinh động và gần gũi với thiên nhiên. Đây cũng là một trong những yếu tố đặc trưng của nhà vườn – nơi không gian xanh luôn được ưu tiên, giúp gia chủ tận hưởng bầu không khí trong lành, thư giãn và hòa mình vào cảnh quan thiên nhiên xung quanh.

Bao quanh ngôi nhà cấp 4 mái Nhật là hệ thống cổng và tường rào được thiết kế kiên cố, đảm bảo tính an toàn nhưng vẫn giữ được sự thông thoáng và thẩm mỹ. Phần tường bao sử dụng bê tông kết hợp với gạch bông gió, tạo nên hiệu ứng ánh sáng và gió tự nhiên, giúp không gian luôn mát mẻ, dễ chịu. Cửa cổng được làm từ sắt hộp sơn tĩnh điện, vừa bền bỉ trước tác động của thời tiết, vừa mang lại vẻ đẹp hiện đại và sang trọng, góp phần hoàn thiện tổng thể kiến trúc hài hòa của ngôi nhà.

Công trình nhà cấp 4 mái Nhật được xây dựng theo hướng Đông – hướng đón ánh sáng tự nhiên buổi sáng, mang lại nguồn năng lượng tích cực và giúp không gian bên trong luôn thoáng đãng, mát mẻ. Ngôi nhà có kích thước 11,7 x 15,4m, với tổng diện tích sử dụng khoảng 150m², được bố trí khoa học và tối ưu công năng. Diện tích này phù hợp với những gia đình từ 3 đến 5 thành viên, vừa đảm bảo sự tiện nghi trong sinh hoạt, vừa tạo cảm giác rộng rãi và thoải mái trong từng không gian sống.

Từ cửa chính bước vào, không gian đầu tiên là phòng khách rộng rãi – nơi đón tiếp khách và sinh hoạt chung của gia đình, được thiết kế thoáng đãng với hệ cửa lớn giúp lấy sáng tự nhiên hiệu quả. Tiếp nối là khu vực phòng thờ trang nghiêm, đặt ở vị trí trung tâm của ngôi nhà, thể hiện sự tôn kính và gìn giữ nét văn hóa truyền thống của gia đình Việt.
Kế đến là phòng bếp kết hợp khu vực ăn uống, được bố trí khoa học và có lối đi thông ra sảnh phụ bên hông, thuận tiện cho việc nấu nướng và di chuyển. Xung quanh là 4 phòng ngủ được sắp xếp hợp lý nhằm đảm bảo sự riêng tư và thoải mái cho từng thành viên. Đặc biệt, phòng ngủ số 04 được thiết kế với nhà vệ sinh khép kín tiện nghi, trong khi nhà vệ sinh chung được bố trí ở cuối nhà, tạo sự thuận tiện trong quá trình sử dụng hàng ngày.












