Biệt thự 1 tầng tân cổ điển mái Thái sang trọng, đẳng cấp dẫn đầu xu hướng | MH05974
| Chủ đầu tư: Chú Nguyễn Văn Nghiệm | Số tầng: 1 |
| Địa chỉ: Thanh Miện, Hải Phòng | Diện tích xây dựng: 10 x 23,5m |
| Loại hình: Biệt thự mái Thái tân cổ điển | Tổng diện tích: 155m2 |
| Công năng:
Phòng khách, phòng thờ, phòng bếp, 3 phòng ngủ, 3 wc, kho |
|
Biệt thự 1 tầng mái Thái phong cách tân cổ điển luôn tạo sức hút mạnh mẽ nhờ vẻ đẹp thanh lịch, sang trọng và giá trị bền vững theo thời gian. Sự hòa quyện tinh tế giữa hệ mái Thái bề thế, các đường nét kiến trúc cổ điển tinh tế và hơi thở hiện đại đã kiến tạo nên không gian sống đẳng cấp, phản ánh rõ gu thẩm mỹ và vị thế của gia chủ. Hiểu được mong muốn đó, Maxhome đã triển khai phương án thiết kế biệt thự dành riêng cho gia đình chú Nghiệm tại Hải Phòng, hứa hẹn mang đến một công trình nổi bật nhất trog khu vực.
Biệt thự mái Thái 1 tầng tân cổ điển được bố trí hài hòa giữa khuôn viên xanh mát mang lại bầu không khí trong lành cho gia chủ. Kiến trúc biệt thự không chỉ gây ấn tượng bởi vẻ đẹp tinh tế, sang trọng mà còn được tính toán kỹ lưỡng theo các nguyên tắc phong thủy nhằm đem đến sự may mắn và thịnh vượng. Đồng thời, công năng được thiết kế thông minh, tối ưu, phù hợp với nhịp sống hiện đại nhưng vẫn giữ được nét ấm cúng truyền thống.

Mặt tiền biệt thự gây ấn tượng mạnh với hệ trụ cột vuông vức, vững chãi kết hợp mái sảnh uốn cong mềm mại, tạo nên sự cân bằng hài hòa giữa nét khỏe khoắn và tinh tế. Tâm điểm khu vực sảnh là chiếc đèn chùm pha lê lộng lẫy, tỏa ánh sáng ấm áp, góp phần tôn lên vẻ sang trọng và đẳng cấp cho công trình.
Gam màu chủ đạo trắng – vàng kem được sử dụng khéo léo, vừa làm nổi bật các chi tiết phào chỉ tinh xảo, vừa mang lại cảm giác thanh thoát, trang nhã. Sự kết hợp tinh tế giữa màu mái nâu đỏ trầm ấm và các mảng nhấn trung tính giúp tổng thể kiến trúc trở nên hài hòa, bền dáng theo thời gian. Tất cả tạo nên một diện mạo biệt thự 1 tầng tân cổ điển sang trọng, cuốn hút và giàu giá trị thẩm mỹ.

Hệ bậc tam cấp được thiết kế cao ráo, cân đối, góp phần tôn lên vẻ bề thế và uy nghi cho tổng thể công trình biệt thự. Các bậc được ốp đá tự nhiên cao cấp với gam màu sang trọng, không chỉ tạo điểm nhấn thẩm mỹ mà còn giúp bảo vệ kết cấu trước tác động của thời tiết và quá trình sử dụng lâu dài. Bề mặt đá được xử lý chống trơn trượt, đảm bảo an toàn khi di chuyển, đặc biệt trong điều kiện mưa ẩm. Sự kết hợp hài hòa giữa bậc tam cấp, hệ trụ cột và sảnh chính đã tạo nên một không gian đón tiếp trang trọng, nâng tầm giá trị kiến trúc cho ngôi biệt thự.

Các kiến trúc sư đặc biệt chú trọng giải pháp không gian mở nhằm đưa ánh sáng tự nhiên lan tỏa khắp ngôi nhà, đồng thời tạo sự kết nối hài hòa giữa không gian sống và cảnh quan xung quanh.
Cửa chính được thiết kế bằng gỗ pano kính sang trọng, vừa đảm bảo tính thẩm mỹ vừa tăng khả năng lấy sáng. Hệ cửa còn lại sử dụng khung gỗ kết hợp kính cường lực cao cấp, nổi bật với độ bền cao, khả năng cách âm, cách nhiệt hiệu quả, mang lại sự yên tĩnh và tiện nghi cho không gian sinh hoạt.

Mái Thái được thiết kế vừa đảm bảo khả năng thoát nước nhanh, chống nóng tối ưu, thích ứng tốt với điều kiện khí hậu Việt Nam, vừa giữ được sự cân đối, hài hòa theo quan niệm phong thủy Á Đông.
Đặc biệt, để tạo điểm nhấn nổi bật cho mái, KTS đã khéo léo thiết kế những ô cửa thoáng mái vòm, bao quanh bởi những đường phào chỉ tinh mỹ, không chỉ tăng thêm vẻ đẹp cuốn hút cho biệt thự mà còn giúp tối ưu hóa ánh sáng tự nhiên, mang lại không gian sống thoáng đãng, dễ chịu.

Không gian xanh được bố trí hài hòa bao quanh biệt thự 1 tầng mái Thái phong cách tân cổ điển, góp phần nâng cao giá trị thẩm mỹ và mang đến nguồn sinh khí dồi dào cho toàn bộ công trình.
Sự đan xen khéo léo giữa cây xanh và kiến trúc giúp không gian sống trở nên trong lành, thư thái, tạo cảm giác gần gũi với thiên nhiên. Khu vực sân được lát gạch chống trơn với gam màu trang nhã, ôm trọn khối nhà, vừa thuận tiện cho việc di chuyển, vừa tôn lên vẻ đẹp bề thế và chỉn chu của tổng thể kiến trúc.

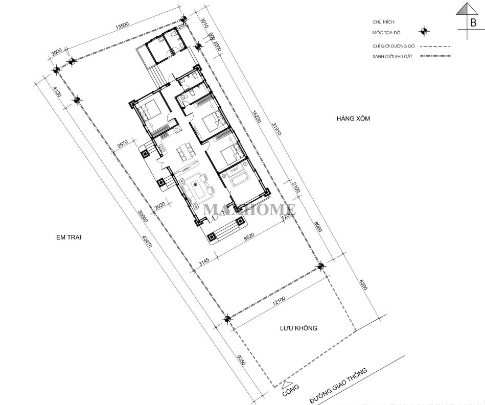
Công trình được xây dựng theo hướng Đông Bắc, sở hữu mặt bằng kích thước 10 x 23,5 m với tổng diện tích sử dụng khoảng 155 m², mang lại không gian sống rộng rãi và tiện nghi cho gia đình. Các khu vực chức năng được tổ chức khoa học, bố trí hài hòa, đảm bảo sự thuận tiện trong sinh hoạt hằng ngày. Nhờ đó, ngôi nhà không chỉ đáp ứng đầy đủ công năng sử dụng mà còn tạo nên môi trường sống thoải mái, lý tưởng cho các thành viên.

Bước qua sảnh chính, bạn sẽ được chào đón bởi không gian phòng khách sang trọng, nơi thể hiện rõ nét gu thẩm mỹ tinh tế và sự hiếu khách của gia chủ. Với vị trí trung tâm, phòng khách không chỉ là nơi tiếp đón khách quý mà còn là điểm nhấn quan trọng trong tổng thể thiết kế nội thất. Liên thông với phòng khách là phòng thờ được bố trí trang trọng, sử dụng vách ngăn CNC hiện đại để đảm bảo sự yên tĩnh và tính tôn nghiêm, đồng thời tạo sự phân chia hợp lý với các không gian khác.

Từ sảnh phụ dẫn thẳng đến phòng bếp ăn tiện nghi, ấm cúng. Ba phòng ngủ được bố trí hợp lý xung quanh nhà, phòng nào cũng có cửa sổ thoáng mát giúp thu hút ánh sáng tự nhiên và không khí trong lành; trong đó có phòng ngủ 02 thiết kế khép kín. Ngoài ra còn 1 phòng pho và 2 nhà vệ sinh chung, được sắp xếp khoa học, đáp ứng nhu cầu sinh hoạt hàng ngày của gia đình.











