Biệt thự mái Nhật 2 tầng tân cổ điển đẳng cấp, công năng hoàn hảo | MH05953
| Chủ đầu tư: Anh Nguyễn Đình Võ | Số tầng: 2 |
| Địa chỉ: Hùng Châu, Nghệ An | Diện tích xây dựng: 11,7 x 16,9m |
| Loại hình: Biệt thự mái Nhật tân cổ điển | Tổng diện tích: 238m2 |
Công năng:
|
|
Mẫu biệt thự mái Nhật 2 tầng tân cổ điển do Maxhome thiết kế là sự kết hợp tinh tế giữa vẻ đẹp thanh lịch của kiến trúc tân cổ điển và nét hiện đại, bề thế của hệ mái Nhật. Công trình gây ấn tượng bởi bố cục cân đối, đường nét mềm mại cùng tỷ lệ kiến trúc hài hòa, mang đến diện mạo sang trọng và đẳng cấp. Không chỉ chú trọng yếu tố thẩm mỹ, thiết kế còn được tối ưu công năng sử dụng, đảm bảo không gian sống tiện nghi, thông thoáng và phù hợp với điều kiện khí hậu Việt Nam, đáp ứng trọn vẹn nhu cầu của các gia đình yêu thích phong cách sống đẳng cấp, bền vững theo thời gian.
Mẫu biệt thự mái Nhật 2 tầng vốn mang nét kiến trúc quen thuộc, tuy nhiên khi được đội ngũ kiến trúc sư Maxhome thiết kế đã trở nên khác biệt và tạo nên dấu ấn riêng đầy cuốn hút. Điểm nổi bật của công trình nằm ở hệ phào chỉ và hoa văn trang trí được xử lý tinh tế, độc đáo, vừa tôn lên vẻ đẹp tân cổ điển sang trọng, vừa đảm bảo sự hài hòa, thanh thoát trong tổng thể kiến trúc. Sự kết hợp khéo léo này giúp công trình không chỉ bề thế về hình thức mà còn thể hiện rõ gu thẩm mỹ và đẳng cấp của gia chủ.

Các họa tiết hoa văn trên công trình được đắp vẽ tỉ mỉ, cẩn trọng trong từng chi tiết, thể hiện rõ tay nghề và sự đầu tư của gia chủ. Bên cạnh đó, hệ cột vuông vắn được tạo hình sắc sảo, tỷ lệ chuẩn mực, góp phần tôn lên vẻ đẹp bề thế, vững chãi cho tổng thể kiến trúc. Sự kết hợp hài hòa giữa hoa văn trang trí tinh tế và kết cấu cột chắc chắn không chỉ nâng cao giá trị thẩm mỹ mà còn khẳng định phong cách tân cổ điển sang trọng, đẳng cấp của công trình.

Mặc dù được thiết kế theo phong cách tân cổ điển, công trình vẫn giữ được sự tinh giản cần thiết, không lạm dụng các chi tiết trang trí cầu kỳ. Tổng thể kiến trúc được bao phủ bởi gam màu trắng sứ làm chủ đạo, mang đến vẻ đẹp thanh lịch, trang nhã và sang trọng. Màu sắc này không chỉ giúp tôn lên các đường phào chỉ, hoa văn một cách nổi bật mà còn tạo cảm giác không gian rộng rãi, sáng thoáng, đồng thời phù hợp với điều kiện khí hậu Việt Nam và xu hướng thẩm mỹ hiện đại.

Từ góc nhìn bên hông, khu vực sảnh phụ hiện lên rõ nét với thiết kế được chăm chút kỹ lưỡng, mang phong thái sang trọng và đồng bộ với sảnh chính. Các chi tiết kiến trúc được xử lý tinh tế, hài hòa với tổng thể công trình, không chỉ tạo thuận lợi cho việc di chuyển, phân luồng giao thông nội bộ mà còn góp phần hoàn thiện diện mạo bề thế, khẳng định đẳng cấp và giá trị thẩm mỹ của công trình ở mọi góc quan sát và chân công trình cũng được ốp đá chẻ làm tôn cao biệt

Từ góc nhìn trên cao, có thể quan sát rõ khoảng sân phía trước rộng rãi, đủ diện tích để đỗ ô tô một cách thuận tiện. Khu vực sân được lát gạch phẳng phiu, sạch sẽ, giúp hạn chế bám bẩn, dễ dàng vệ sinh và đảm bảo an toàn khi di chuyển. Không gian này không chỉ đáp ứng nhu cầu để xe mà còn có thể tận dụng cho các hoạt động sinh hoạt ngoài trời, góp phần nâng cao tiện ích và giá trị sử dụng tổng thể của công trình.

Cổng của biệt thự mái Nhật 2 tầng tân cổ điển được chế tác từ chất liệu sắt sơn tĩnh điện cao cấp, mang lại độ bền vượt trội, khả năng chống gỉ sét và thích ứng tốt với điều kiện thời tiết. Thiết kế cổng nổi bật với các hoa văn uốn lượn tinh xảo, đường nét mềm mại nhưng vẫn toát lên vẻ vững chãi, bề thế, hài hòa với tổng thể kiến trúc tân cổ điển của công trình. Không chỉ đảm bảo yếu tố an ninh, hệ cổng còn góp phần tôn lên vẻ sang trọng, khẳng định đẳng cấp và gu thẩm mỹ của gia chủ ngay từ cái nhìn đầu tiên.

Mặt bằng định vị công trình thể hiện rõ khuôn viên đất xây dựng biệt thự mái Nhật với kích thước 11,7 × 16,9m, bố cục tổng thể được sắp xếp khoa học, cân đối giữa khối nhà và không gian sân vườn xung quanh. Với quy mô hai tầng, tổng diện tích sử dụng của công trình khoảng 238m², đáp ứng đầy đủ nhu cầu về không gian sinh hoạt, nghỉ ngơi và tiện ích, đồng thời đảm bảo sự thông thoáng, riêng tư và phù hợp với đặc trưng kiến trúc biệt thự hiện đại kết hợp tân cổ điển.

Từ cửa chính bước vào là không gian phòng khách rộng rãi, được bố trí thoáng đãng, thuận tiện cho sinh hoạt và tiếp đón khách. Đối diện phòng khách là khu vực phòng thờ trang nghiêm, đặt tại vị trí phù hợp phong thủy, đảm bảo sự tôn kính và yên tĩnh. Tiếp nối phía trong là khu bếp kết hợp phòng ăn với diện tích khoảng 26,5m², được thiết kế thông thoáng, đáp ứng tốt nhu cầu sinh hoạt chung của gia đình. Cuối nhà bố trí một phòng ngủ riêng tư, phù hợp cho người lớn tuổi hoặc khách lưu trú. Khu vực cửa hậu được sắp xếp phòng tắm và nhà vệ sinh chung, đảm bảo sự tiện lợi trong quá trình sử dụng và giúp không gian luôn gọn gàng, khoa học.

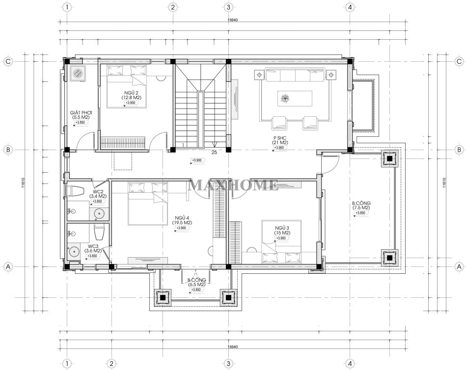
Mặt bằng tầng 2 được bố trí hợp lý, đáp ứng nhu cầu sinh hoạt và nghỉ ngơi của gia đình. Không gian phòng sinh hoạt chung được đặt ở vị trí trung tâm, tạo nơi kết nối, thư giãn cho các thành viên. Tầng này gồm ba phòng ngủ có diện tích phù hợp, trong đó phòng ngủ số 04 được thiết kế nhà vệ sinh khép kín, mang lại sự riêng tư và tiện nghi. Hai phòng ngủ còn lại sử dụng một nhà vệ sinh chung, được bố trí khoa học, thuận tiện trong sinh hoạt hằng ngày. Ngoài ra, khu vực giặt phơi được sắp xếp về cuối nhà, đảm bảo sự kín đáo, thông thoáng và không ảnh hưởng đến không gian nghỉ ngơi.












