Biệt thự mái Nhật tân cổ 5 phòng ngủ đẹp cho đại gia đình sinh sống | MH05125
| Chủ đầu tư: Anh Nguyễn Văn Minh | Số tầng: 2 |
| Địa chỉ: Kon Rẫy, Kon Tum | Diện tích xây dựng: 11,5 x 17m |
| Loại hình: Biệt thự mái Nhật tân cổ điển | Tổng diện tích: 313m2 |
Công năng:
|
|
Mẫu biệt thự mái Nhật tân cổ của gia đình anh Minh tại Kon Tum sở hữu diện tích hai mặt sàn lên tới 313m2, căn biệt thự không chỉ là nơi che mưa che nắng mà còn là biểu tượng cho sự thịnh vượng, là tổ ấm sum vầy lý tưởng cho một đại gia đình nhiều thế hệ. Mời bạn tham khảo mẫu biệt thự hot năm 2026 này nhé!
Ngắm nhìn tổng thể, ngôi biệt thự mái Nhật tân cổ hiện lên đầy nổi bật giữa không gian cao nguyên nắng gió. Gam màu trắng chủ đạo bao phủ toàn bộ công trình mang lại cảm giác thanh khiết và trang nhã nhưng không kém phần uy nghi. Điểm xuyết trên nền trắng ấy là sắc xanh than trầm mặc của hệ mái Nhật và màu nâu ấm áp của cửa gỗ đại hội mang tới một bản phối màu sắc hài hòa và tinh tế.

Hệ mái Nhật được thiết kế với độ dốc vừa phải với các lớp mái chồng xếp lên nhau một cách nhịp nhàng giúp thoát nước nhanh và chống nóng hiệu quả. Ngoài ra, hệ mái Nhật uy nghi, khang trang còn đóng vai trò như một chiếc vương miện khổng lồ, che chở và bảo vệ toàn bộ công trình lớn trước những tác động của thời tiết.

Điểm nhấn ấn tượng nhất của ngôi biệt thự mái Nhật tân cổ nằm ở khu vực sảnh chính. Đứng trước cửa nhà, bạn sẽ không khỏi choáng ngợp trước hệ cột sảnh vuông vắn, vững chãi, kiên cố và bề thế như này. Phía trên, vòm sảnh chính được uốn cong mềm mại, đây là một nét đặc trưng không thể thiếu của phong cách tân cổ điển giúp giảm bớt sự góc cạnh và tăng thêm vẻ duyên dáng cho lối vào.

Dưới trần mái, hệ thống đèn LED âm trần được bố trí khéo léo tỏa ra ánh sáng vàng ấm áp khi màn đêm buông xuống khiến ngôi nhà trở nên lung linh và lộng lẫy như một cung điện thu nhỏ. Lối dẫn vào nhà là hệ bậc tam cấp cao ráo lát gạch Granite đen bóng bẩy. Sự đối lập giữa sắc đen của đá và màu trắng của tường không chỉ tạo hiệu ứng thị giác mạnh mẽ mà còn giúp công trình trông thanh thoát, cao ráo hơn hẳn so với mặt sân.

Nếu hệ cột tạo nên sự vững chãi thì các chi tiết phào chỉ lại chính là linh hồn tạo nên vẻ sang trọng cho ngôi biệt thự mái Nhật tân cổ này. Maxhome đã cực kỳ tỉ mỉ khi thiết kế các đường phào cửa đi và phào cửa sổ điển hình. Những đường gờ nổi nhẹ nhàng bao quanh khung cửa không quá cầu kỳ nhưng đủ để tạo chiều sâu và sự khác biệt cho các diện tường phẳng.

Lên đến tầng 2, không gian mở ra với hệ ban công thoáng đãng lắp đặt hệ lan can sắt nghệ thuật với những hoa văn uốn lượn tinh xảo đã tạo nên một góc nhìn đầy chất thơ. Trụ lan can được đắp vẽ chắc chắn, đảm bảo an toàn nhưng vẫn giữ được nét thanh lịch vốn có của kiến trúc tân cổ điển. Ngoài ra, những ô cửa sổ kính lớn được bố trí đều khắp các mặt của căn biệt thự mái Nhật tân cổ không chỉ giúp đón trọn ánh sáng tự nhiên mà còn tạo sự kết nối vô hình giữa không gian sống bên trong và cảnh quan thiên nhiên bên ngoài.


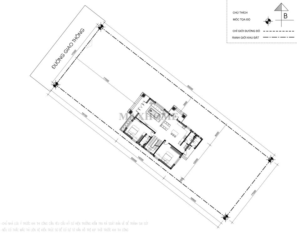
Căn biệt thự mái Nhật tân cổ điển của anh Minh được đặt trên một khuôn viên đất hình chữ nhật rộng lớn với chiều dài 50m và chiều rộng 17m. Công trình chính được xây dựng lùi về phía sau tạo ra một khoảng sân trước vô cùng thông thoáng có chiều dài lên tới 17m, rất thuận tiện cho việc đỗ xe và thiết kế cảnh quan sân vườn. Khoảng cách từ hông nhà đến ranh giới đất được tính toán kỹ lưỡng với các thông số lần lượt là 3,9m, giúp ngôi nhà có sự tách biệt cần thiết với không gian xung quanh để đảm bảo tính riêng tư và lưu thông không khí tối ưu.


Mặt bằng tầng 1 của căn biệt thự mái Nhật tân cổ được thiết kế với kích thước 11,5x17m tập trung vào các không gian sinh hoạt chung rộng lớn và tiện nghi. Từ sảnh chính bước vào là phòng khách sang trọng rộng 30m2 kết nối gián tiếp với khu vực phòng bếp và phòng ăn có diện tích lên đến 33m2 tạo nên một không gian mở xuyên suốt rất thuận tiện cho các buổi tụ họp gia đình. Tầng này cũng bố trí 2 phòng ngủ thuận tiện 3 nhà vệ sinh được phân bổ khoa học, phía sau có thêm khu vực giặt phơi riêng biệt, đảm bảo mọi nhu cầu sinh hoạt thiết yếu đều được đáp ứng ngay tại tầng 1.


Tiến lên tầng 2, không gian được phân chia tinh tế để ưu tiên cho việc nghỉ ngơi và thờ tự với sự xuất hiện của phòng thờ trang nghiêm rộng 15m2 nằm ở vị trí trung tâm hướng ra phía mặt tiền. Phía sau là khu vực sinh hoạt chung rộng 11m2 đóng vai trò là nơi gắn kết các thành viên trước khi bước vào 3 phòng ngủ riêng biệt. Điểm đặc biệt của tầng này chính là sân chơi với diện tích cực kỳ rộng rãi, mang đến không gian thư giãn ngoài trời lý tưởng để ngắm nhìn toàn cảnh khu vực xung quanh từ nhiều phía.












