Biệt thự nhà phố 3 tầng nghỉ dưỡng đẳng cấp toạ lạc tại Đồng Nai | MH05397
| Chủ đầu tư: Chú Vòong Khiêm | Số tầng: 3 |
| Địa chỉ: Định Quán, Đồng Nai | Diện tích xây dựng: 9,2 x 14,4m |
| Loại hình: Nhà mái bằng hiện đại | Tổng diện tích: 314m2 |
Công năng:
|
|
Giới thiệu với bạn đọc của Maxhome về bộ hồ sơ nhà đẹp của chú Khiêm – một chủ đầu tư có gu thẩm mỹ tinh tế ở Đồng Nai, chúng tôi đã gửi tới một siêu phẩm biệt thự nhà phố 3 tầng đầy ấn tượng với sự giao thoa hoàn hảo giữa nét khỏe khoắn của kiến trúc hiện đại và sự mềm mại, thư thái của một không gian nghỉ dưỡng thực thụ.
Ngắm nhìn từ xa, căn biệt thự nhà phố 3 tầng hiện lên như một tác phẩm nghệ thuật khối hộp xếp chồng lên nhau một cách tài tình. Với chiều cao tổng thể 11,65m, ngôi nhà phố sở hữu diện mạo thanh thoát nhưng không kém phần uy nghi, ngoài ra Maxhome cũng xử lý cao độ của nền nhà nâng cao 450mm so với mặt sân để tạo thành hệ bậc thềm tam cấp mở rộng hình chữ L ôm trọn lấy mặt tiền và một phần bên hông. Cách thiết kế này không chỉ giúp ngôi nhà trông cao ráo hơn mà còn tạo ra một khoảng đệm sang trọng và dẫn lối khách quý bước vào không gian bên trong.

Sự tinh tế của Maxhome còn thể hiện ở cách phối màu sắc, thay vì sử dụng những gam màu rực rỡ thì mẫu nhà đẹp đã chọn tông trắng tinh khôi làm chủ đạo, đan xen cùng sắc xám trung tính và màu gỗ ấm áp. Tại sảnh chính, bề mặt tường được ốp gạch xám vân mây đầy cá tính. Những đường vân tự nhiên trên nền đá không chỉ mang lại cảm giác sạch sẽ, bền bỉ mà còn tạo nên điểm nhấn thị giác mạnh mẽ và khẳng định đẳng cấp của gia chủ ngay từ cái nhìn đầu tiên.

Để biến một căn nhà phố 3 tầng thành nơi nghỉ dưỡng đúng nghĩa, việc tận dụng ánh sáng tự nhiên là yếu tố tiên quyết. Toàn bộ hệ thống cửa của căn biệt thự nhà phố 3 tầng đều sử dụng khung nhôm kết hợp kính cường lực diện tích lớn giúp gia đình chú Khiêm có thể tận hưởng ánh nắng ban mai hay ngắm nhìn cơn mưa chiều ngay từ phòng khách hay phòng ngủ.

Đặc biệt, khu vực ban công tại các tầng cũng được trang bị kính cường lực với tay vịn inox đen chắc chắn. Một chi tiết đắt giá mà chúng ta có thể nhận thấy qua phối cảnh chính là phần bo góc ban công chữ L được uốn cong mềm mại, sự thay đổi nhỏ này đã phá vỡ những đường thẳng thô cứng thường thấy trong kiến trúc hiện đại, mang lại vẻ đẹp uyển chuyển và thanh lịch hơn cho tổng thể công trình.

Nếu ban ngày căn biệt thự nhà phố 3 tầng này mang vẻ thanh lịch, hiện đại thì khi hoàng hôn buông xuống sẽ trở nên lung linh và lộng lẫy lạ kỳ. Hệ vách tường nhô ra phía bên trái được ốp nhựa giả gỗ cao cấp đồng bộ hoàn toàn với phần trần ngoài trời giúp tạo nên một cảm giác ấm cúng và gần gũi.

Dưới các khoảng trần này, hệ thống đèn LED chiếu sáng được lắp đặt âm trần, trải dài và chạy dọc xung quanh các ban công. Ánh sáng vàng dịu nhẹ hắt xuống các mảng tường đá và kính tạo nên hiệu ứng thị giác huyền ảo. Điểm nhấn ấn tượng nhất nằm ở tầng 3 được lắp hệ mái che thép hộp sơn tĩnh điện kết hợp nhựa giả gỗ ngoài trời. Tại đây, đèn LED được bố trí theo hình chữ nhật lớn trên trần cung cấp ánh sáng và làm nổi bật không gian sân thượng vui chơi cho nhà chú Khiêm.

Việc sử dụng nhựa giả gỗ cho các vị trí ngoài trời là một lựa chọn thông minh của Maxhome giúp đảm bảo tính thẩm mỹ bền vững trước thời tiết khắc nghiệt của miền Đông Nam Bộ và mang lại cảm giác thư thái như đang ở trong một resort cao cấp. Đây chính là nơi để các thành viên trong gia đình trút bỏ những âu lo của công việc, trở về với sự yên bình và tái tạo năng lượng.

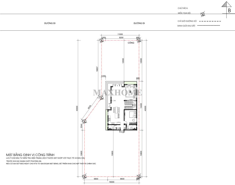
Sự đẳng cấp của căn nhà phố 3 tầng này không chỉ nằm ở vẻ ngoài hào nhoáng mà còn bắt đầu từ tư duy quy hoạch thông minh trên bản vẽ mặt bằng định vị. Với kích thước xây dựng 9,2×14,4m, công trình được đặt một cách tinh tế trên khuôn viên đất rộng lớn tại Đồng Nai, lùi khối nhà sâu hơn so với cổng chính để tạo ra một khoảng sân trước rộng rãi. Khoảng đệm xanh này không chỉ giúp ngăn cách khói bụi và tiếng ồn từ đường lớn mà còn tạo ra tầm nhìn thoáng đạt để phô diễn trọn vẹn vẻ đẹp kiến trúc.


Tiến vào bên trong, tầng 1 của mẫu nhà phố 3 tầng hiện lên như một không gian kết nối gia đình đầy khoáng đạt với lối thiết kế mở liên hoàn. Phòng khách sang trọng được đặt gần ngay vị trí mặt tiền và đón trọn ánh sáng tự nhiên qua những hệ cửa kính lớn. Khu vực bếp được trang bị bàn đảo hiện đại cùng bộ bàn ăn lớn hứa hẹn những bữa cơm ấm cúng cho cả gia đình chú Khiêm. Đặc biệt, một phòng ngủ kín đáo được bố trí ở góc nhà với cửa sổ nhìn ra sân kết hợp cùng hệ thống nhà vệ sinh tiện nghi và thoải mái cho người sử dụng.

Di chuyển lên tầng 2, chúng ta bước vào chốn nghỉ ngơi riêng tư và tôn nghiêm được đặt nằm ngay cạnh cầu thang để kết nối các thành viên trước khi trở về không gian cá nhân. Vị trí trang trọng nhất của ngôi nhà phố 3 tầng được dành cho phòng thờ hướng ra mặt tiền đảm bảo sự tĩnh lặng và yếu tố phong thủy sâu sắc. Tiếp theo là hệ thống 3 phòng ngủ được bố trí khoa học xung quanh sảnh tầng, mỗi căn phòng đều sở hữu cửa sổ đón gió và ánh sáng, riêng phòng ngủ phía mặt tiền còn có ban công riêng. Để tối ưu hóa sinh hoạt, khu vực vệ sinh chung được thiết kế đồng trục với tầng 1 rất thuận tiện cho việc đi điện, nước sau này.

Điểm nhấn đỉnh cao, khẳng định chất sống nghỉ dưỡng của căn nhà phố 3 tầng chính là không gian tầng 3 với các tiện ích bổ ích. Ngay tại sảnh thang, một phòng gym rộng rãi được bố trí để gia chủ có thể rèn luyện sức khỏe hàng ngày trong không gian thoáng đãng. Bên cạnh đó, 1 phòng ngủ linh hoạt được thêm vào để sẵn sàng đón tiếp những vị khách quý ghé thăm và nghỉ lại. Tuy nhiên, điều ấn tượng nhất chính là khu vực sân thượng chiếm diện tích lớn với góc nhìn bao quát toàn cảnh xung quanh. Với thiết kế ban công bo góc cong mềm mại và hệ mái che nghệ thuật kết hợp ánh đèn LED lung linh, đây chính là thiên đường thư giãn để cả gia đình tổ chức những bữa tiệc BBQ ngoài trời hoặc cùng nhau ngồi ngắm sao trời giữa không gian yên bình của vùng đất Đồng Nai.











