Biệt thự vườn 1 tầng đẹp như cổ tích bước vào kiến trúc Việt | MH06028
| Chủ đầu tư: Anh Đỗ Văn Tới | Số tầng: 1 |
| Địa chỉ: Quảng Trực, Tuy Đức, Đắk Nông | Diện tích xây dựng: 11 x 22,9m |
| Loại hình: Biệt thự mái Nhật tân cổ điển | Tổng diện tích: 168m2 |
| Công năng:
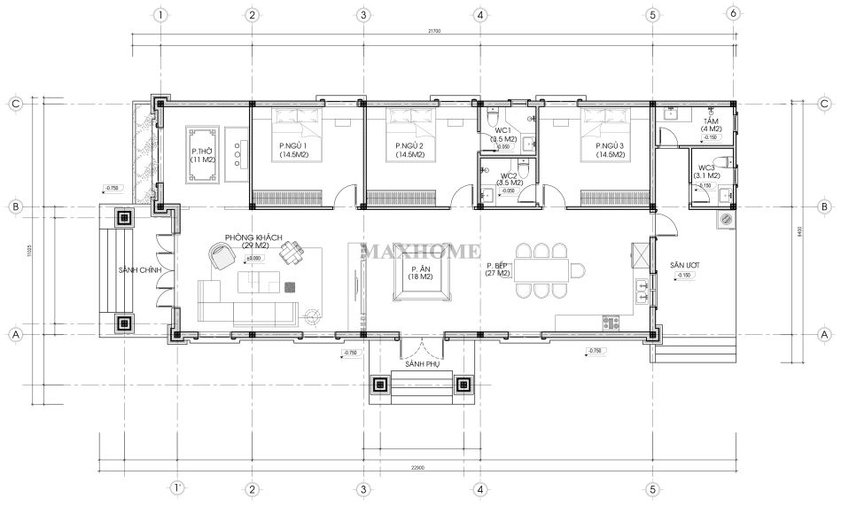
Phòng khách, phòng thờ, phòng bếp, phòng ăn, 3 phòng ngủ, 1 phòng tắm, 3 wc, sân ướt |
|
Chào đón những tia nắng ban mai rực rỡ của vùng đất Đắk Nông hùng vĩ giữa bạt ngàn sắc xanh của đại ngàn, một siêu phẩm kiến trúc hiện lên đầy mê hoặc như bước ra từ những trang văn thơ lãng mạn xuất hiện là mẫu biệt thự vườn 1 tầng đẹp của gia đình anh Tới. Căn biệt thự này sẽ là nơi để cả gia đình anh trở về sau những giờ làm việc mệt mỏi và còn là một tác phẩm nghệ thuật, một sự giao thoa hoàn hảo giữa hơi thở tân cổ điển sang trọng và nét bình yên, khoáng đạt của phong cách nhà vườn Việt Nam.
Bất cứ ai cũng phải ngỡ ngàng trước vẻ ngoài vừa thanh thoát vừa bề thế của công trình biệt thự vườn 1 tầng đẹp này, nơi mà mọi chi tiết dù là nhỏ nhất cũng được chau chuốt để tạo nên một tổng thể hài hòa đến lạ kỳ, định nghĩa lại khái niệm nhà ở quê theo một đẳng cấp hoàn toàn mới.
Bước chân vào không gian sảnh chính, bạn sẽ bị thuyết phục bởi sự quyền quý qua hệ cột trụ vuông vức được thiết kế theo tỉ lệ chuẩn mực của kiến trúc tân cổ điển. Những đường phào chỉ dọc thân cột thanh mảnh nhưng sắc nét kết hợp cùng phần chân cột được sơn giả đá vân hoàng gia màu vàng nâu giúp bảo vệ kết cấu và tạo nên điểm nhấn thẩm mỹ đầy ấn tượng cho mặt tiền.

Đặc biệt, phần vòm cong nhẹ nhàng tại sảnh chính chính là chi tiết đắt giá giúp căn biệt thự vườn mềm mại hơn và mang dáng dấp của những tòa dinh thự châu Âu thu nhỏ. Cánh cửa chính được gia chủ ưu ái lựa chọn chất liệu gỗ tự nhiên khối lớn với những đường chạm khắc tinh xảo không chỉ đảm bảo tính an toàn, bảo mật mà còn khẳng định vị thế và gu thẩm mỹ đẳng cấp của gia chủ ngay từ ngưỡng cửa.

Để tối ưu hóa trải nghiệm sống thượng lưu đúng chất một căn biệt thự vườn 1 tầng đẹp, hệ thống cửa sổ xung quanh nhà được sử dụng chất liệu nhôm kính Xingfa hệ cao cấp với những tấm kính cường lực khổ lớn. Việc bố trí mật độ cửa sổ khoa học giúp lấy sáng tối đa, điều hòa không khí và mang lại tầm nhìn tuyệt đẹp ra khu vườn xanh mướt bên ngoài giúp gia chủ tận hưởng thiên nhiên ngay khi ngồi trong phòng khách. Để bảo vệ công trình bền bỉ theo thời gian, phần chân tường được ốp bằng đá rối tự nhiên tông xám, một lựa chọn thông minh giúp ngăn chặn tuyệt đối tình trạng rêu mốc và bụi bẩn bám vào mùa mưa đồng thời tạo nên vẻ đẹp mộc mạc nhưng vô cùng bền vững.

Đặc biệt, hệ ngũ cấp dẫn vào nhà được lát đá Granite đen vân mây sang trọng giúp tôn cao cốt nền công trình để tránh hắt mưa và tạo nên sự bề thế, cao ráo cho tổng thể kiến trúc biệt thự vườn 1 tầng đẹp. Đây chính là minh chứng cho thấy sự đầu tư bài bản, đáp ứng đầy đủ tiêu chí sang trọng – tiện nghi – gần gũi mà bất cứ gia chủ nào ở quê cũng hằng ao ước.

Tọa lạc trên một khuôn viên đất rộng rãi, ngôi biệt thự vườn 1 tầng đẹp chọn cho mình lối kiến trúc mái Nhật đa tầng đầy kiêu hãnh với độ dốc được tính toán chuẩn xác theo tỉ lệ vàng. Hệ mái này sử dụng dòng ngói sóng màu xanh than cao cấp chỉ giúp thoát nước mưa cực nhanh trong mùa mưa Tây Nguyên đặc thù mà còn sở hữu khả năng cách nhiệt tuyệt vời, giữ cho nhiệt độ bên trong luôn ôn hòa. Những khối mái lớn nhỏ đan xen, chồng lớp lên nhau tạo nên một nhịp điệu kiến trúc uyển chuyển làm xóa tan đi sự đơn điệu thường thấy của các mẫu nhà cấp 4 truyền thống.


Biệt thự vườn 1 tầng đẹp của anh Tới được quy hoạch bài bản trên khuôn viên đất hình chữ nhật có kích thước 13,5x40m tạo nên một không gian sống biệt lập và thoáng đãng. Lối tiếp cận chính từ cổng được thiết kế tinh tế với sân gạch chống trơn và các khoảng lùi bên hông dao động từ 1m đến 2,4m tuân thủ chỉ giới xây dựng để đảm bảo sự thông thoáng cho hệ thống cửa sổ đón gió dọc theo thân nhà.

Mặt bằng nội thất được Maxhome tối ưu hóa theo phong cách không gian mở, kết nối xuyên suốt các khu vực sinh hoạt chung để tạo cảm giác rộng rãi và đẳng cấp. Từ sảnh chính bước vào là phòng khách rộng 29m2 liên thông trực tiếp với khu vực phòng ăn 18m2 và phòng bếp 27m2, tạo nên một trục công năng dài và thoáng đãng ngay trung tâm ngôi nhà. Khu vực nghỉ ngơi được bố trí khoa học về một phía với 3 phòng ngủ có diện tích đồng nhất 14,5m2 mỗi phòng và phòng thờ 11m2 được đặt tại vị trí trang nghiêm hướng ra mặt tiền. Hệ thống vệ sinh được phân bổ gồm 3 nhà vệ sinh và khu vực sân ướt, phòng tắm riêng biệt phía sau giúp đáp ứng trọn vẹn nhu cầu tiện nghi cho gia đình đông thành viên.











