Chiêm ngưỡng nhà vườn mái Thái 4 phòng ngủ đẹp sang trọng bề thế tại Đồng Nai | MH05569
| Chủ đầu tư: Anh Hoàng Văn Tùng | Số tầng: 1 |
| Địa chỉ: Thống Nhất, Đồng Nai | Diện tích xây dựng: 12,5 x 24,6m |
| Loại hình: Nhà mái Thái tân cổ điển | Tổng diện tích: 210m2 |
| Công năng:
Phòng khách, phòng thờ, phòng bếp, 4 phòng ngủ, 1 phòng tắm, 2 wc |
|
Mẫu nhà vườn mái Thái 4 phòng ngủ của gia đình anh Tùng tại Đồng Nai là sự hòa quyện tinh tế giữa nét kiến trúc sang trọng và không gian sống tiện nghi, hiện đại. Với thiết kế ngoại thất cuốn hút, tỉ mỉ trong từng đường nét cùng cảnh quan sân vườn bố trí hài hòa, công trình không chỉ khẳng định gu thẩm mỹ đẳng cấp mà còn thể hiện rõ dấu ấn riêng biệt của gia chủ. Kính mời quý bạn đọc cùng chiêm ngưỡng và khám phá chi tiết công trình ấn tượng này trong bài viết dưới đây.
Ngôi nhà vườn mái Thái mang phong cách tân cổ điển được kiến tạo với sự cân đối hoàn hảo giữa hình khối kiến trúc tinh mỹ và cảnh quan xanh mát bao quanh. Công trình không chỉ mở ra một chốn an cư lý tưởng, chan hòa cùng thiên nhiên mà còn toát lên vẻ đẹp chuẩn mực của nghệ thuật thiết kế. Mỗi chi tiết đều được chăm chút kỹ lưỡng, vừa đảm bảo tính thẩm mỹ, vừa phù hợp phong thủy, đồng thời tối ưu công năng cho cuộc sống tiện nghi và bền vững.

Mẫu nhà đẹp nổi bật với gam trắng kem tinh tế, kết hợp khéo léo cùng sắc vàng nhạt của lớp sơn giả đá trên hệ cột, mái Thái xanh thanh nhã, khung nhôm Xingfa đen sang trọng và đá tự nhiên ghi xám đầy điểm nhấn.
Sự lựa chọn màu sắc không chỉ phù hợp bản mệnh gia chủ mà còn góp phần làm nổi bật đường nét kiến trúc, đồng thời hài hòa yếu tố phong thủy, mang lại may mắn và bình an. Chính sự phối hợp tinh tế giữa bảng màu và chi tiết hoa văn được trau chuốt tỉ mỉ đã tạo nên vẻ đẹp thanh thoát, đậm chất tân cổ điển.

Phần mặt tiền gây ấn tượng với hệ trụ cột vuông vững chãi kết hợp mái sảnh uốn cong mềm mại, điểm xuyết bởi chiếc đèn chùm pha lê lấp lánh, toát lên vẻ sang trọng đầy cuốn hút.
Khối chân đế được tôn cao 750mm so với nền đất, ốp đá tự nhiên gam ghi xám, vừa giúp tổng thể công trình thêm cao ráo, bề thế vừa mang lại cảm giác chắc chắn, kiên cố ngay từ nền móng. Lối vào chính nổi bật với bậc tam cấp năm bậc, ốp đá Granite đen viền vàng tinh xảo, tạo nên điểm nhấn sang trọng và ấn tượng ngay từ bước chân đầu tiên.

Các kiến trúc sư đã đặc biệt chú trọng đến việc thiết kế không gian mở, giúp ngôi nhà luôn ngập tràn ánh sáng và gắn kết hài hòa với thiên nhiên xung quanh. Toàn bộ cửa sử dụng chất liệu nhôm kính Xingfa cao cấp, nổi bật với độ bền cao, khả năng cách âm, cách nhiệt hiệu quả.
Đặc biệt, để tạo điểm nhấn nổi bật cho mái Thái, KTS đã khéo léo thiết kế những ô cửa thoáng mái vòm, bao quanh bởi những đường phào chỉ tinh mỹ, không chỉ tăng thêm vẻ đẹp cho ngôi nhà vườn tân cổ điển mà còn giúp tối ưu hóa ánh sáng tự nhiên, mang lại không gian sống thoáng đãng, dễ chịu.


Bao quanh ngôi nhà cấp 4 mái Thái là những mảng xanh thiên nhiên mát dịu và khoảng sân vườn rộng rãi mang lại cảm giác thư giãn như đang sống giữa một khu nghỉ dưỡng – nơi mỗi thành viên đều cảm nhận được sự an yên, gắn kết và bình yên trong từng khoảnh khắc.

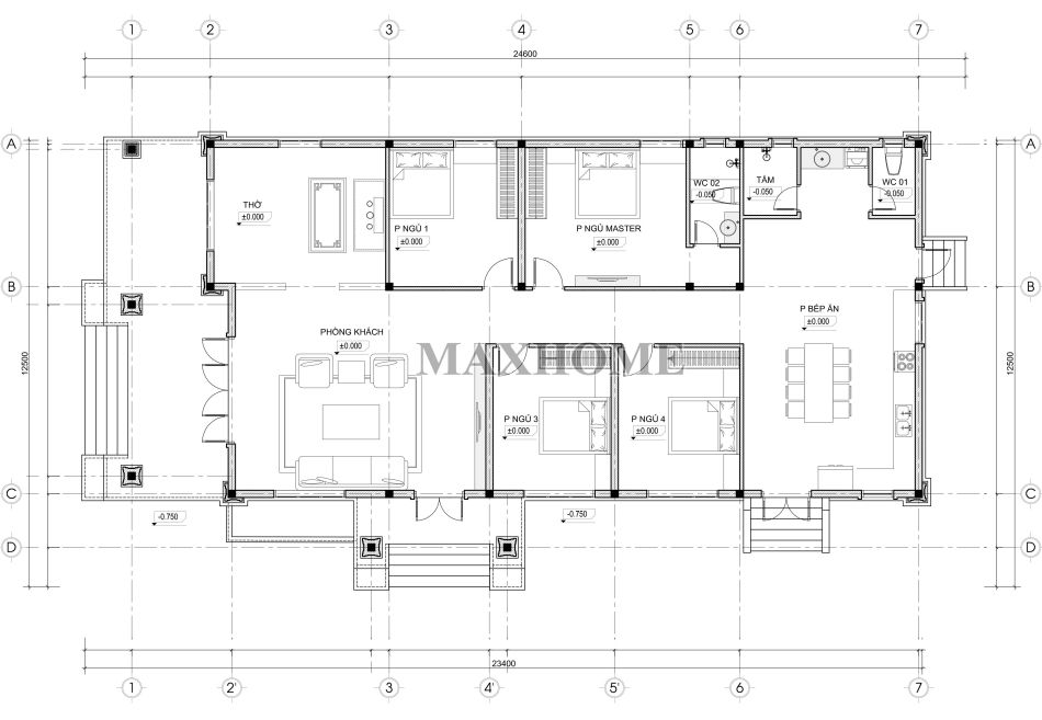
Dựa vào mặt bằng định vị, ngôi nhà vườn mái Thái tân cổ điển được thiết kế với kích thước 12,5 x 24,6m, tổng diện tích sử dụng khoảng 210m², mang đến không gian sống rộng rãi và tiện nghi với 4 phòng ngủ. Các khu vực chức năng được bố trí hài hòa, khoa học, đảm bảo sự thoải mái tối đa cho cả gia đình, đồng thời tạo nên một môi trường sống lý tưởng, tiện lợi và đầy đủ công năng.

Bước qua sảnh chính, bạn sẽ được chào đón bởi không gian phòng khách sang trọng, nơi thể hiện rõ nét gu thẩm mỹ tinh tế và sự hiếu khách của gia chủ. Liên thông với phòng khách là phòng thờ được bố trí trang trọng, sử dụng vách ngăn CNC hiện đại để đảm bảo sự yên tĩnh và tính tôn nghiêm, đồng thời tạo sự phân chia hợp lý với các không gian khác.
Từ sảnh phụ dẫn thẳng đến phòng bếp ăn tiện nghi, ấm cúng. 4 phòng ngủ được bố trí hợp lý xung quanh nhà, phòng nào cũng có cửa sổ thoáng mát giúp thu hút ánh sáng tự nhiên và không khí trong lành, trong đó có phòng ngủ master thiết kế khép kín. Cuối nhà là 1 phòng tắm và 1 WC chung, được sắp xếp khoa học để đáp ứng nhu cầu sinh hoạt hàng ngày của gia đình.











