Choáng ngợp mẫu nhà 2 tầng 1 tum hiện đại phối màu cực sang | MH05886
| Chủ đầu tư: Anh Vũ Công Tiến | Số tầng: 2 tầng 1 tum |
| Địa chỉ: Chương Mỹ, Hà Nội | Diện tích xây dựng: 7,3 × 14,9m |
| Loại hình: Nhà mái bằng hiện đại | Tổng diện tích: 205m2 |
Công năng:
|
|
Trong những năm gần đây, nhà 2 tầng 1 tum hiện đại đang trở thành lựa chọn hàng đầu của nhiều gia đình Việt nhờ thiết kế linh hoạt, tối ưu không gian và tính thẩm mỹ cao. Điểm nhấn nổi bật của mẫu nhà này không chỉ nằm ở hình khối kiến trúc khỏe khoắn mà còn ở cách phối màu tinh tế, sang trọng, giúp công trình trở nên nổi bật và đẳng cấp hơn hẳn. Mời bạn cùng tham khảo mẫu nhà đẹp dưới đây nhé!
Trong quá trình thiết kế công trình, kiến trúc sư cần đưa ra nhiều phương án và ý tưởng để trao đổi kỹ lưỡng với gia chủ, từ phong cách kiến trúc, cách bố trí công năng, lựa chọn loại mái cho đến bài toán chi phí đầu tư. Sau khi cân nhắc tổng thể giữa thẩm mỹ, công năng và ngân sách, gia chủ đã quyết định lựa chọn mẫu nhà 2 tầng 1 tum theo phong cách hiện đại để xây dựng tổ ấm tiện nghi, phù hợp với gia đình mình.

Công trình sử dụng gam màu trắng làm màu sắc chủ đạo, mang lại cảm giác hiện đại, tinh tế và dễ dàng phối hợp với các vật liệu hoàn thiện khác. Ở khu vực tầng 1, kiến trúc sư lựa chọn gạch granite ốp lát, không chỉ tạo điểm nhấn sang trọng cho mặt tiền mà còn đảm bảo độ bền, khả năng chống bám bẩn và dễ vệ sinh. Lên đến tầng 2, vật liệu gạch giả gỗ được sử dụng nhằm tăng thêm sự ấm áp, cân bằng giữa nét hiện đại và cảm giác gần gũi. Riêng tầng tum được nhấn nhá bằng sơn màu ghi, tạo điểm dừng thị giác tinh tế, giúp tổng thể công trình trở nên hài hòa, có chiều sâu và tránh sự đơn điệu trong phối màu.

Mẫu nhà 2 tầng 1 tum này được thiết kế tinh tế trong việc đưa không gian xanh vào các khu vực ban công, góp phần tạo cảm giác thoáng đãng và gần gũi với thiên nhiên. Các mảng cây xanh được bố trí hợp lý không chỉ giúp điều hòa khí hậu mà còn làm mềm kiến trúc tổng thể. Toàn bộ lan can ban công sử dụng kính cường lực trong suốt, vừa đảm bảo an toàn khi sử dụng, vừa giữ được tầm nhìn rộng mở, giúp công trình trông hiện đại, thanh thoát và sang trọng hơn.

Từ góc nhìn bên hông, mẫu nhà 2 tầng 1 tum hiện đại càng thể hiện rõ sự tinh tế trong cách xử lý hình khối và vật liệu. Các mảng tường được phân chia mạch lạc, kết hợp hài hòa giữa gam màu trung tính và vật liệu ốp hiện đại, tạo chiều sâu và cảm giác vững chắc cho công trình.

Mẫu nhà 2 tầng 1 tum được thiết kế theo phong cách hiện đại với hệ mái bằng gọn gàng, tạo hình khối vuông vức và khỏe khoắn. Tại khu vực tầng tum, kiến trúc sư bố trí hệ lam sắt sơn tĩnh điện, thiết kế đua ra theo lối cách tân, vừa tăng giá trị thẩm mỹ vừa giúp che nắng, giảm bức xạ nhiệt cho không gian bên dưới. Giải pháp này không chỉ làm nổi bật kiến trúc tổng thể mà còn góp phần hoàn thiện công năng sử dụng, mang lại sự thông thoáng và nét cá tính riêng cho ngôi nhà.

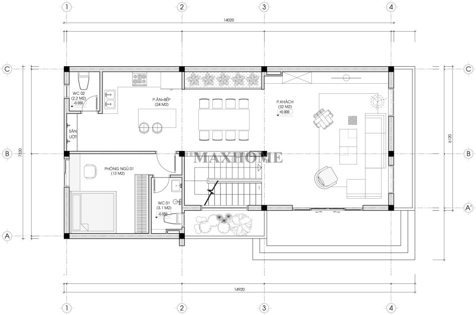
Mặt bằng định vị cho thấy khuôn viên đất xây dựng khá rộng rãi, tạo điều kiện thuận lợi cho việc bố trí công trình và không gian xung quanh. Trong đó, gia chủ lựa chọn diện tích xây dựng với kích thước khoảng 7,3 × 14,9m, được quy hoạch gọn gàng và hợp lý. Nhờ cách tổ chức mặt bằng khoa học, công trình đạt tổng diện tích sử dụng ước tính khoảng 205m², đáp ứng tốt nhu cầu sinh hoạt tiện nghi, thoải mái cho gia đình, đồng thời vẫn đảm bảo sự thông thoáng và hài hòa với tổng thể khu đất.

Từ cửa chính bước vào là không gian phòng khách rộng rãi với diện tích khoảng 32m², được bố trí thoáng đãng, phù hợp cho sinh hoạt chung và tiếp đón khách. Tiếp nối liền kề phía trong là khu vực bếp kết hợp phòng ăn, thiết kế mở giúp không gian luôn thông suốt và thuận tiện trong quá trình sử dụng. Cuối nhà được bố trí một nhà vệ sinh chung, phục vụ nhu cầu sinh hoạt hằng ngày. Đối diện khu vực này là một phòng ngủ riêng tư, được trang bị nhà vệ sinh khép kín bên trong, mang lại sự tiện nghi và thoải mái cho người sử dụng.

Tầng 2 được bố trí với 3 phòng ngủ, đáp ứng nhu cầu sinh hoạt riêng tư cho các thành viên trong gia đình. Trong đó, phòng ngủ số 02 và phòng ngủ số 03 được sắp xếp liền kề, cùng sử dụng một nhà vệ sinh chung, thuận tiện cho sinh hoạt hằng ngày. Riêng phòng ngủ số 04 được thiết kế theo dạng phòng master, sở hữu diện tích rộng rãi hơn, tích hợp khu vực thay đồ riêng cùng nhà vệ sinh khép kín bên trong, mang lại sự tiện nghi, thoải mái và không gian nghỉ ngơi lý tưởng cho gia chủ.

Tầng tum được bố trí thành khu vực giặt – sấy rộng rãi, thuận tiện cho sinh hoạt hằng ngày và đảm bảo sự gọn gàng cho không gian bên trong ngôi nhà. Bên cạnh đó là khu vực sân thượng và sân phơi thoáng đãng, tận dụng tốt ánh nắng và gió tự nhiên, đồng thời có thể linh hoạt sử dụng làm nơi thư giãn, trồng cây xanh hoặc bố trí tiểu cảnh, góp phần nâng cao chất lượng không gian sống.












