Đi tiếp vào phía trong là không gian bếp và phòng ăn hiện đại, tiện nghi, được kết nối linh hoạt với sảnh phụ thông thoáng. Hai phòng ngủ được bố trí đối xứng hai bên cầu thang. Trong đó, phòng ngủ 1 có nhà vệ sinh khép kín dành cho ông bà. Bên cạnh đó còn có một nhà vệ sinh chung đặt ở vị trí hợp lý, đáp ứng nhu cầu sinh hoạt hàng ngày một cách thuận tiện.
Choáng ngợp với mẫu biệt thự 2 tầng mái Nhật đẹp xuất sắc | MH05774
| Chủ đầu tư: Chú Tường Duy Đức | Số tầng: 2 |
| Địa chỉ: Khoái Châu, Hưng Yên | Diện tích xây dựng: 11,5 x 16,5m |
| Loại hình: Biệt thự 2 tầng mái Nhật | Tổng diện tích: 235m2 |
Công năng:
|
|
Biệt thự 2 tầng mái Nhật luôn mang sức hút riêng nhờ vẻ đẹp tinh tế, thanh lịch và cân đối. Trong những năm gần đây, phong cách này trở thành lựa chọn ưu tiên của nhiều gia chủ bởi khả năng kết hợp hài hòa giữa thẩm mỹ Á Đông và sự tiện nghi của kiến trúc hiện đại. Mời quý bạn đọc cùng chiêm ngưỡng phối cảnh 3D mẫu biệt thự 2 tầng mái Nhật của gia đình chú Đức do Maxhome thiết kế để cảm nhận được sự bề thế, sang trọng và chuẩn mực trong từng chi tiết.
Căn biệt thự mái Nhật 2 tầng nổi bật với tỉ lệ hài hòa giữa các khối nhà, tạo nên bố cục vững chãi và cân đối. Mặt tiền rộng mở, được xử lý theo hướng đối xứng, đem lại cảm giác trang nghiêm và tinh tế. Phần chân tường ốp đá tự nhiên làm tăng độ bền và giảm sự đơn điệu cho tổng thể. Cửa chính bằng gỗ tạo điểm nhấn mạnh mẽ ở trung tâm, vừa ấm áp vừa thể hiện sự sang trọng của kiến trúc truyền thống.

Màu sắc ngoại thất được chọn theo gam trung tính để giữ vẻ sang trọng và bền vững theo thời gian. Sắc trắng chủ đạo mang lại cảm giác tinh khiết và tạo phông nền thanh lịch, giúp các vật liệu trang trí khác nổi bật rõ nét.
Hệ cửa kính khung nhôm màu ghi đậm góp phần làm mặt tiền sinh động và cân đối. Ánh sáng phản chiếu trên bề mặt kính tạo chiều sâu tự nhiên, giúp tổng thể mềm mại hơn. Các ô cửa được bố trí hợp lý để đón sáng và gió trời, giữ cho không gian bên trong luôn thoáng đãng và giàu sinh khí.

Sự xuất hiện của các mảng tường phào chỉ nhẹ giúp công trình biệt thự 2 tầng mái Nhật trở nên mềm mại hơn. Kiến trúc tân cổ điển được thể hiện qua cách phối hợp hài hòa giữa hệ cột vuông và cột tròn, tạo điểm nhấn vững chắc mà vẫn tinh tế.
Cách xử lý này mang lại sự chuyển nhịp nhẹ nhàng giữa các khối nhà, tăng chiều sâu và giảm cảm giác nặng nề của những mảng tường lớn. Nhờ đó, căn biệt thự giữ được vẻ sang trọng chuẩn mực, phù hợp với những gia chủ yêu thích phong cách tinh tế và thanh lịch.

Ban công tầng hai được thiết kế thoáng với lan can kính, tạo cảm giác rộng mở và hiện đại. Các khu vực này vừa là nơi thư giãn vừa giúp căn nhà đón nắng gió tự nhiên. Khi kết hợp với cây xanh trang trí, không gian trở nên mềm mại và gần gũi với thiên nhiên hơn. Cách bố trí lan can kính cũng giúp đường nét biệt thự trở nên liền mạch và thanh thoát.
Không gian xanh đóng vai trò quan trọng trong thiết kế biệt thự 2 tầng mái Nhật. Cây xanh được bố trí xen kẽ ở nhiều vị trí, từ bồn cây dưới cửa sổ đến các cây cảnh trên ban công. Sự kết hợp giữa cây xanh, ánh sáng tự nhiên và các vật liệu ngoại thất cao cấp tạo nên bầu không khí thư thái và dễ chịu.

Một trong những yếu tố làm nên vẻ đẹp thu hút của biệt thự 2 tầng là hệ mái Nhật có độ dốc nhẹ, xếp lớp tinh gọn và thanh thoát. Sự kết hợp giữa mái rộng và đường viền sắc nét giúp công trình nổi bật khi nhìn từ xa. Màu mái xanh than mang sắc thái trầm tĩnh, tạo cảm giác vững chãi và sang trọng.
Kiến trúc mái Nhật luôn mang lại vẻ thanh lịch nhờ sự tối giản chi tiết và sự tinh tế trong tỉ lệ mái. Khi kết hợp với hệ cột trắng và mảng tường phẳng, tổng thể biệt thự toát lên nét thẩm mỹ cao cấp và chuẩn mực.

Phong cách biệt thự 2 tầng mái Nhật luôn tạo cảm giác ấm áp và bền bỉ. Từng đường nét được chăm chút để thể hiện sự tinh tế và sang trọng. Những yếu tố kiến trúc đặc trưng như mái rộng, cột lớn và gam màu nhẹ giúp công trình cân bằng giữa truyền thống và hiện đại. Mỗi góc nhìn đều cho thấy sự tỉ mỉ của các KTS trong thiết kế.
Với hình khối chắc khỏe, mặt tiền trang trọng và hệ mái đầy cá tính, biệt thự 2 tầng mái Nhật mang đến vẻ đẹp thanh thoát và bề thế. Kiến trúc này phù hợp với những gia chủ mong muốn không gian sống sang trọng, tiện nghi và đậm chất nghỉ dưỡng.

Sau khi tiếp nhận yêu cầu và mong muốn của gia đình chú Đức, Maxhome đã nhanh chóng về khảo sát thực trạng khu đất và đưa ra phương án thiết kế cho biệt thự mái Nhật 2 tầng như sau.
Công trình có cửa chính nằm ở hướng Đông Bắc, kích thước 11,5 x 16,5m, tổng diện tích sử dụng là 235m2, phía trước và bên sảnh phụ rộng rãi dành không gian cho khu vực để xe và sân vườn tiểu cảnh đẹp mắt, thoáng mát.

Bước qua sảnh chính, phòng khách hiện ra với không gian rộng rãi, thoáng đãng và được bố trí ở vị trí trung tâm – vừa là nơi đón tiếp khách quý, vừa thể hiện gu thẩm mỹ của gia chủ. Liền kề bên phải là khu vực phòng thờ trang nghiêm, được thiết kế riêng biệt, đảm bảo sự tôn kính và phong thủy hài hòa.

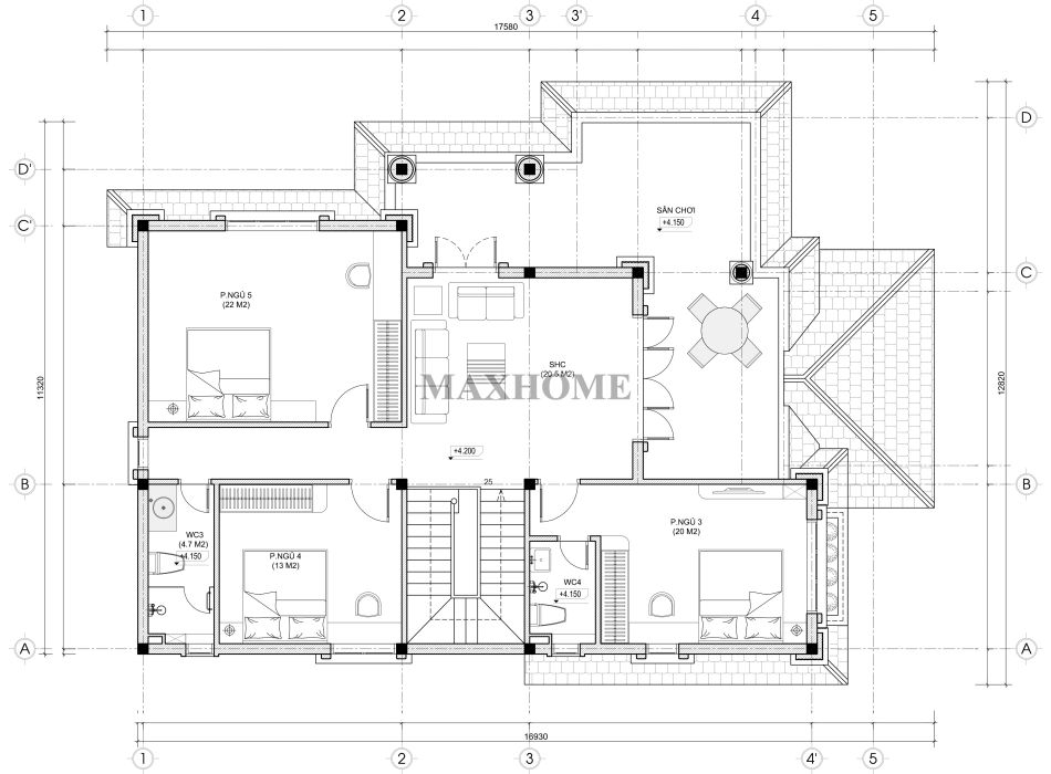
Tầng 2 được bố trí khoa học với không gian sinh hoạt chung làm trung tâm, nơi các thành viên trong gia đình có thể quây quần, trò chuyện và sẻ chia sau một ngày dài. Khu vực này sở hữu ban công rộng thoáng, lý tưởng để hít thở không khí trong lành, tổ chức các hoạt động giải trí ngoài trời.
Ba phòng ngủ rộng rãi được thiết kế theo sở thích và nhu cầu riêng của từng thành viên, mang đến sự thoải mái trong từng không gian nghỉ ngơi. Phòng ngủ 03 thiết kế tương đồng phòng ngủ 01. Ngoài ra, một nhà vệ sinh chung được đặt cùng trục với tầng 1 nhằm tối ưu hệ thống cấp thoát nước, góp phần nâng cao hiệu quả sử dụng.











