Chủ nhà chịu chơi nhận ngay full hồ sơ bản vẽ nhà 2 tầng mái Thái siêu đẹp | MH04797
| Chủ đầu tư: Anh Nguyễn Văn Bắc | Số tầng: 2 |
| Địa chỉ: Đại Áng, Thanh Trì, Hà Nội | Diện tích xây dựng: 7 x 11,3m |
| Loại hình: Nhà mái Thái tân cổ điển | Tổng diện tích: 146m2 |
Công năng:
|
|
Trong khi nhiều người còn băn khoăn lựa chọn phong cách thiết kế, anh Bắc đã quyết định mạnh tay đầu tư một mẫu nhà 2 tầng mái Thái vừa sang trọng vừa tiện nghi vừa bền vững theo thời gian. Nhờ sự đồng hành của Maxhome, công trình không chỉ là nơi an cư lý tưởng mà còn trở thành điểm nhấn kiến trúc nổi bật khiến bất kỳ ai đi ngang qua cũng khó có thể rời mắt.
Mẫu nhà 2 tầng mái Thái của anh Bắc ở Hà Nội do Maxhome thiết kế đã ngay lập tức gây ấn tượng mạnh bởi vẻ đẹp kiêu sa và sang trọng. Không chỉ đơn thuần là một công trình nhà ở, ngôi nhà còn toát lên khí chất đẳng cấp của gia chủ bằng cách thể hiện sự tinh tế trong từng chi tiết. Ngay từ hình ảnh đầu tiên của bản vẽ, mẫu nhà đẹp đã nổi bật với gam màu trắng chủ đạo kết hợp hệ mái Thái màu xanh than, mang đến cảm giác vừa thanh thoát vừa bề thế. Các chi tiết phào chỉ nhẹ nhàng cùng với hệ cột trụ vuông đã khéo léo tạo nên một tổng thể vững chãi nhưng vẫn đầy tính thẩm mỹ. Đây chính là một trong những yếu tố khiến mẫu nhà 2 tầng mái Thái này trở thành tâm điểm chú ý.

Một điểm nhấn nổi bật khác nằm ở ban công tầng 2 được thiết kế với lan can sắt nghệ thuật sơn tĩnh điện mang vẻ đẹp cổ điển và còn giúp đảm bảo độ bền bỉ theo thời gian. Khu vực ban công nối dài bao trọn mặt tiền 7m được gia chủ tận dụng để trang trí cây xanh, tạo nên không gian sống gần gũi thiên nhiên. Tiếp đó, cửa gỗ kết hợp kính cường lực tại sảnh chính rất trang trọng và lịch sự, các ô cửa khác sử dụng khung nhôm sơn giả gỗ đồng điều giúp tăng tính thẩm mỹ và đón trọn ánh sáng tự nhiên cho không gian bên trong luôn thoáng đãng và rộng mở.


Ở mặt bên và mặt sau công trình, đội ngũ thiết kế Maxhome cũng không quên chăm chút từng đường nét. Sự đồng bộ trong thiết kế giúp ngôi nhà có tính thẩm mỹ cao ngay cả khi nhìn từ phía sau. Đặc biệt, phần tường được giữ gam màu sáng tạo nên hiệu ứng thị giác sạch sẽ và tinh tế. Đây là điều giúp mẫu nhà 2 tầng mái Thái của anh Bắc không bị lỗi thời mà vẫn luôn giữ được giá trị bền vững theo năm tháng.

Từ góc nhìn trên cao xuống, bạn có thể dễ dàng nhận thấy hệ mái Thái đóng vai trò quan trọng trong việc tạo nên vẻ đẹp bề thế và sang trọng cho ngôi nhà. Hệ mái cao 3,45m sở hữu độ dốc lớn giúp thoát nước mưa nhanh chóng đồng thời góp phần điều hòa nhiệt độ bên trong, giữ cho không gian luôn mát mẻ vào mùa hè và ấm áp khi đông về.

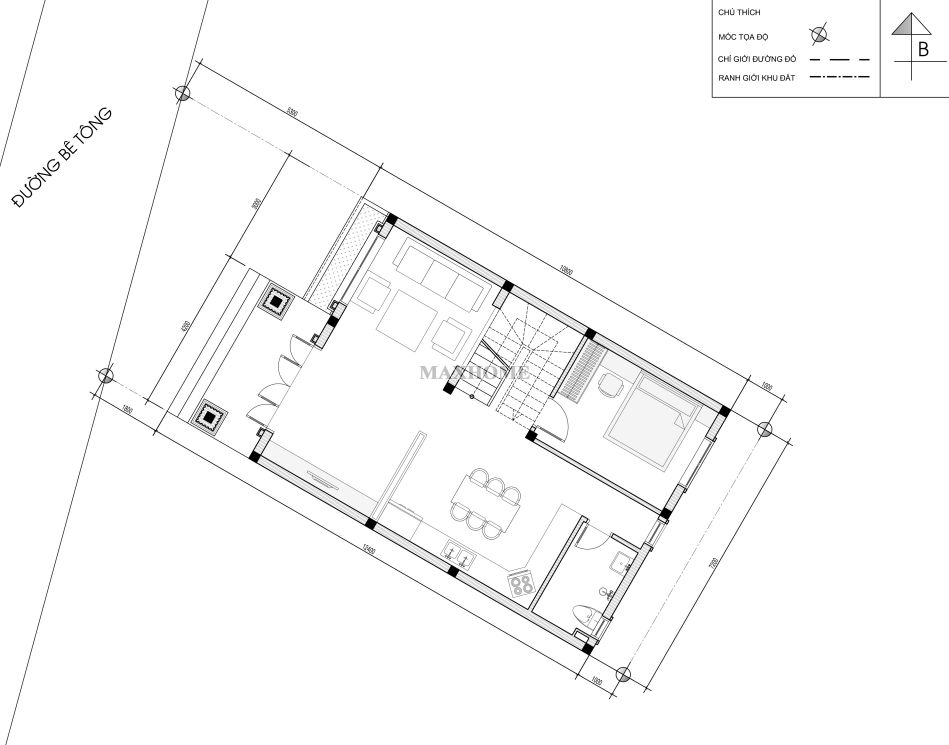
Kết hợp với hai hình ảnh 3D và mặt bằng định vị công trình, có thể thấy khoảng sân phía trước được thiết kế không quá rộng rãi nhưng vẫn thoải mái để xe. Mảnh đất nhà anh Bắc cũng có độ góc chéo nhưng công trình vẫn được xây dựng vuông vắn và tiện nghi. Xung quanh là cổng sắt kiên cố và tường rào chắc chắn đã tạo nên tổng thể hài hòa, đáp ứng đầy đủ cả tính an toàn lẫn thẩm mỹ. Nhờ vậy, mẫu nhà 2 tầng mái Thái không chỉ đẹp khi nhìn từ ngoài vào mà còn mang đến cho gia chủ một cuộc sống tiện nghi, an tâm. Đây cũng chính là tinh thần mà Maxhome luôn theo đuổi để mỗi công trình không chỉ dừng lại ở kiến trúc mà còn phải mang đến giá trị sống lâu dài cho từng gia đình.


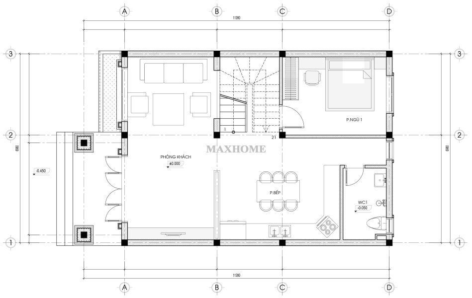
Tầng 1 của ngôi nhà bắt đầu với đại sảnh lớn ngay sau cửa chính, tiếp đến là phòng khách rộng để tiếp đón bạn bè và là không gian sinh hoạt chung ấm áp của cả gia đình. Phía sau vách lam gỗ là là khu vực bếp kết hợp ăn uống được bố trí khoa học giúp việc nấu nướng và thưởng thức bữa cơm trở nên tiện lợi hơn. Góc cuối nhà là một phòng ngủ kín đáo và yên tĩnh và nhà vệ sinh chung, đảm bảo sự riêng tư và phục vụ đầy đủ nhu cầu sinh hoạt hằng ngày cho gia đình anh Bắc.


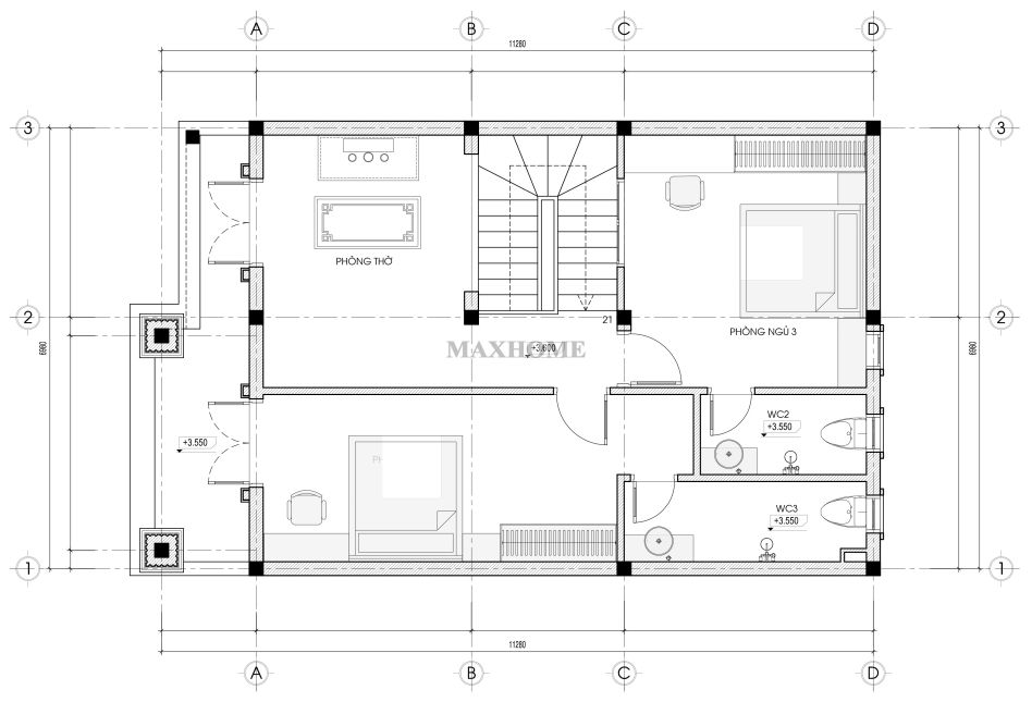
Đi qua 21 bậc cầu thang để tiến tới tầng 2, nơi đây được thiết kế chú trọng đến sự riêng tư và không gian tâm linh của gia chủ. Phòng thờ đặt ở vị trí trung tâm phía trước rất trang nghiêm và có thể mở ra ban công để đón gió cùng ánh sáng tự nhiên. Hai phòng ngủ được sắp xếp hợp lý ở hai góc, mỗi phòng đều rộng thoáng và có cửa sổ hướng ra ngoài, đảm bảo sự thông gió và ánh sáng cho từng không gian nghỉ ngơi. Ngoài ra, tầng này còn có hai nhà vệ sinh giúp các thành viên sử dụng thuận tiện mà không lo bất tiện vào giờ cao điểm.

Với sự sắp xếp cân đối, mặt tiền ngôi nhà đẹp mang đến cái nhìn đầy cuốn hút khiến bất kỳ ai cũng phải trầm trồ khi ngắm nhìn. Có thể nói, Maxhome đã nâng tầm giá trị thẩm mỹ cho công trình nhà anh Bắc, đưa mẫu nhà 2 tầng mái Thái trở thành hình mẫu lý tưởng cho nhiều gia đình tại Hà Nội.











