Chủ nhà ưng ý bản thiết kế nhà 2 tầng mái Nhật ngay từ cái nhìn đầu tiên | MH05773
| Chủ đầu tư: Anh Trần Văn Hanh | Số tầng: 2 |
| Địa chỉ: Chính Lý, Lý Nhân, Hà Nam | Diện tích xây dựng: 11,2 x 15,2m |
| Loại hình: Nhà mái Nhật hiện đại | Tổng diện tích: 220m2 |
Công năng:
|
|
Ngay từ khoảnh khắc bản thiết kế hoàn thiện, anh Hanh ở Hà Nam đã biết mình tìm được mẫu nhà 2 tầng mái Nhật đúng mong muốn. Đội ngũ thiết kế đã tạo nên một mẫu nhà hợp thẩm mỹ gia đình cũng như thể hiện đúng tinh thần hiện đại, trẻ trung và tiện dụng mà Maxhome hướng đến trong từng chi tiết. Đây cũng là lý do mẫu nhà này được nhiều người gọi vui là mẫu nhà quốc dân nhờ vẻ ngoài hài hòa, sang mà vẫn gần gũi.
Ngôi nhà 2 tầng mái Nhật của anh Hanh có diện tích một mặt sàn 110m2 rất gọn gàng và thanh thoát. Maxhome chọn phong cách hiện đại cho ngoại thất kết hợp màu sắc và vật liệu một cách có chủ đích để tạo nên sự cân bằng giữa nhẹ nhàng và cá tính. Tone màu sơn trắng chủ đạo làm nền cho toàn bộ công trình giúp không gian sáng và rộng hơn, xen kẽ trên diện tường là các mảng xanh dịu tạo điểm nhấn chắc chắn nhưng không hề nặng nề. Hai màu này khi đứng cạnh nhau đã tạo ra một tổng thể trẻ trung và sạch sẽ, nhìn là thấy cảm giác dễ chịu.

Sự tinh tế còn thể hiện ở lớp gạch thẻ ốp ngoại thất màu xám ghi vì gam màu này khá trung tính, không quá nổi nên cũng không phá vỡ tổng thể nhưng lại đủ để tạo chiều sâu và sự mạnh mẽ cho công trình. Nhờ đó, ngôi nhà 2 tầng mái Nhật càng toát lên vẻ hiện đại rõ rệt mà không cần quá nhiều chi tiết trang trí. Chỉ cần vài mảng xám ghi điểm trên tường đã đủ khiến ngoại thất trở nên có hồn hơn.

Một chi tiết được nhiều người chú ý khi đến xem thiết kế nhà anh Hanh là hệ chỉ kẻ tường rộng 30mm và cách đều 420mm trên nền tường trắng, các đường chỉ tạo nên nhịp điệu nhẹ nhàng rất tinh tế. Khi có ánh sáng chiếu vào, những đường chỉ này tạo độ đổ bóng mềm giúp mảng tường không bị phẳng hay thiếu sức sống. Đây là kiểu xử lý đơn giản nhưng hiệu quả, thể hiện sự tính toán kỹ lưỡng của đội ngũ Maxhome trong việc tối ưu vẻ đẹp ngoại thất.

Để giữ dáng vẻ bề thế cho ngôi nhà, Maxhome bố trí các cột trụ cao ráo ở cả sảnh chính, sảnh phụ và khu vực ban công. Hệ cột không chỉ giúp ngôi nhà có sự chắc chắn mà còn khiến tổng thể thêm sang. Nhìn từ xa, hình khối công trình rõ ràng, mạnh mẽ và cân đối giúp mặt tiền luôn nổi bật mà vẫn giữ được sự hài hòa với tổng thể màu sắc và vật liệu.

Cửa chính của nhà 2 tầng mái Nhật được chọn loại gỗ Lim kết hợp kính an toàn 8.38mm. Gỗ Lim tạo sự chắc chắn và sang trọng và kính giúp lấy sáng tốt hơn để ngôi nhà không bị tối hay bí, đây là lựa chọn rất hợp lý cho phong cách hiện đại mà vẫn mang vẻ đẹp của truyền thống. Các cửa còn lại đều dùng khung nhôm kính đồng bộ để công trình gọn và sáng. Khi mở cửa, gió và ánh sáng tự nhiên dễ dàng lan khắp không gian, đây là điều mà nhiều gia đình rất thích vì giúp sinh hoạt thoải mái hơn.


Mẫu nhà đẹp được thiết kế với chiều cao thông thuỷ tầng 1 là 3,9m, tầng 2 cao 3,6m và hệ mái Nhật cao 3m. Maxhome giảm dần chiều cao theo tầng để tối ưu tải trọng công trình và đồng thời nhờ có tỉ lệ này mà tạo ra cảm giác ngôi nhà vừa vặn, không quá cao nhưng vẫn đủ độ rộng và thoáng. Ngoài ra, hệ mái Nhật xếp lớp ngói xanh than là điểm khiến công trình khác biệt, nổi bật trên nền trắng và tạo sự cá tính, hiện đại. Trên mái còn có ô cửa kính lập là kích thước 800 x 400mm nhỏ xinh nhưng lại giúp mái nhà có thêm điểm nhấn thông thoáng.


Ngôi nhà 2 tầng mái Nhật của anh Hanh nằm gọn về một phía của mảnh đất rộng 660m2 nên khoảng sân phía trước và hai bên còn rất thoáng. Nhờ lợi thế diện tích lớn mà công trình dễ dàng phô diễn hết vẻ đẹp của kiến trúc mà không bị che khuất hay bí bách. Khoảng trống xung quanh cũng giúp gia đình có không gian trồng cây, để xe, làm sân chơi hoặc tổ chức sinh hoạt ngoài trời thoải mái hơn.

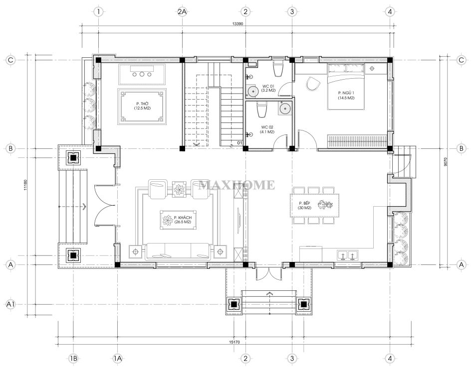
Tầng 1 được bố trí hợp lý với phòng khách 26,5m2 nằm ngay vị trí trung tâm rất sang trọng với bộ bàn ghế sofa lớn. Phòng thờ 12,5m2 được đặt riêng một góc trang nghiêm giúp thuận tiện thờ cúng mà vẫn giữ được sự yên tĩnh. Tiếp đến là khu vực bếp rộng rãi 30m2 bên trong là nơi cả gia đình anh Hanh quây quần mỗi ngày. Cuối cùng là 1 phòng ngủ và khu vực vệ sinh chung để ai cũng sử dụng dễ dàng mà không phải di chuyển xa.

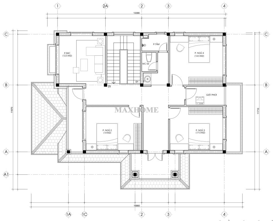
Tầng 2 là không gian sinh hoạt chung ấm cúng để gia đình anh Hanh có thể trò chuyện, xem phim hoặc nghỉ ngơi sau một ngày bận rộn. Ba phòng ngủ được chia đều và đủ riêng tư cho từng thành viên và ai cũng có góc nhỏ của riêng mình. Ngoài ra, tầng này có 1 nhà vệ sinh và 1 phòng tắm tách biệt giúp việc sử dụng tiện hơn. Cuối nhà là khu giặt phơi kín đáo nhưng vẫn đủ nắng gió để quần áo nhanh khô và luôn sạch sẽ.
Nếu bạn đang tìm một mẫu nhà hiện đại, sang nhẹ và phù hợp cả thành thị lẫn nông thôn thì thiết kế nhà 2 tầng mái Nhật này chắc chắn là gợi ý đáng tham khảo trong năm nay!











