Cực phẩm biệt thự mái Nhật tân cổ điển 5 phòng ngủ đẹp lộng lẫy kiêu sa | MH05738
| Chủ đầu tư: Anh Đặng Hồng Long | Số tầng: 2 |
| Địa chỉ: Xuân Lãng, Phú Thọ | Diện tích xây dựng: 12,5 x 11,9m |
| Loại hình: Biệt thự mái Nhật tân cổ điển | Tổng diện tích: 255m2 |
Công năng:
|
|
Trong xu hướng kiến trúc hiện đại, biệt thự ngày nay trở thành dấu ấn thể hiện gu thẩm mỹ và vị thế của chủ nhà chứ không chỉ đơn thuần là nơi ở. Mẫu biệt thự tân cổ điển mái Nhật mà Maxhome lên phương án cho gia đình anh Long ở Phú Thọ nổi bật nhờ đường nét chuẩn mực, không gian tiện nghi và khả năng tối ưu từng chi tiết sử dụng. Hệ thống cây xanh được bố trí khéo léo trong tổng thể, vừa mang lại điểm nhấn sinh động vừa nâng tầm giá trị kiến trúc.
Ngay từ cái nhìn đầu tiên, biệt thự tân cổ điển mái Nhật 5 phòng ngủ gây ấn tượng mạnh nhờ tỷ lệ chuẩn, nét kiến tạo thanh lịch và vẻ uy nghi thể hiện đẳng cấp của gia chủ. Tổng thể kiến trúc được sắp xếp có chủ đích, từng mảng tường, cột và phào chỉ đều được xử lý tinh gọn để giữ được khí chất sang trọng đặc trưng của phong cách tân cổ. Sự kết hợp giữa hình khối cổ điển và mái Nhật hiện đại giúp không gian trở nên thoáng đãng và tràn đầy sự tinh tế.

Mặt tiền biệt thự nổi bật với hệ cột tròn đôi kiên cố, đầu cột được chạm phào chỉ tinh xảo và mái sảnh vòm uốn cong mềm mại, tạo nên vẻ đẹp hài hòa và sang trọng ngay từ góc nhìn đầu tiên. Từng đường nét được xử lý tiết chế nhưng chuẩn xác, đủ để khắc họa tinh thần tân cổ điển mà vẫn giữ cho công trình sự nhẹ nhàng và thanh thoát.
Lan can ban công bằng sắt mỹ thuật uốn lượn, điểm xuyết chi tiết mạ vàng và kết hợp cùng hệ cửa sổ vòm tạo nên điểm nhấn nghệ thuật nổi bật, nâng tầm giá trị thẩm mỹ và mang lại sức hút bền vững cho tổng thể kiến trúc.

Cửa chính được làm bằng gỗ tự nhiên cao cấp, thiết kế bề thế cùng hoa văn chạm khắc tinh tế, toát lên vẻ uy nghi, sang trọng. Các không gian khác trong biệt thự được trang bị cửa sổ và cửa đi bằng khung nhôm Xingfa kết hợp kính cường lực trong suốt, mang lại tầm nhìn thoáng rộng, tận dụng tối đa ánh sáng tự nhiên và kết nối hài hòa giữa nội thất bên trong với cảnh quan bên ngoài.

Kiến trúc sư Maxhome đã tinh tế lựa chọn gam trắng chủ đạo làm nền, vừa thanh lịch vừa tôn lên vẻ bề thế của căn biệt thự. Gam trắng còn giúp làm nổi bật hệ mái xanh than, cửa gỗ nâu trầm ấm và chi tiết lan can sắt đen mạ vàng lấp lánh. Tất cả kết hợp nhuần nhuyễn, tạo nên một bản hòa tấu màu sắc sang trọng, đầy cuốn hút.
Hệ đèn ngoại thất được bố trí dọc tường, cột và bồn hoa làm không gian bừng sáng vào buổi tối, giúp biệt thự 2 tầng mái Nhật tân cổ điển trở thành tâm điểm rực rỡ của cả khu vực.

Không chỉ chú trọng đến kiến trúc, biệt thự còn được chăm chút kỹ lưỡng trong việc bố trí không gian xanh. Những chậu cảnh, cây xanh bố trí khéo léo tại ban công, sân vườn mang đến bầu không khí trong lành, gần gũi với thiên nhiên. Cây xanh không chỉ làm mềm mại các khối kiến trúc vuông vức, mà còn góp phần tạo nên không gian sống thư thái, an yên cho gia chủ sau những giờ làm việc căng thẳng.

Nhìn từ trên cao, hệ mái Nhật hiện lên đầy uy nghi và đẳng cấp, thể hiện rõ nét vẻ đẹp bề thế của kiến trúc biệt thự 2 tầng tân cổ điển. Với hình khối mái giật cấp tinh tế, xếp lớp hài hòa và các đường nét dứt khoát, mái ngói màu xanh than không chỉ tạo điểm nhấn thị giác ấn tượng mà còn tôn lên sự vững chãi, kiêu hãnh cho toàn bộ công trình.

Biệt thự được đặt tại vị trí hướng Đông Bắc, với kích thước xây dựng 12,5 x 11,9m và tổng diện tích sử dụng ấn tượng lên tới 255m². Sau khi khảo sát kỹ lưỡng hiện trạng khu đất, các kiến trúc sư đã khéo léo lên phương án quy hoạch không gian chức năng, tối ưu hóa diện tích và bố trí hài hòa các khu vực, đảm bảo mang lại sự tiện nghi, thoải mái vượt trội cho từng thành viên trong gia đình.

Phòng khách được đặt tại tầng 1, ở vị trí phong thủy đắc địa theo hướng Sinh Khí, Phục Vị, nằm gần cửa chính để tận dụng tối đa ánh sáng tự nhiên và gió mát, mang lại không gian sáng sủa và tràn đầy năng lượng. Liên thông với phòng khách về bên phải là phòng thờ trang nghiêm.
Đi tiếp vào trong là phòng bếp ăn, được trang bị bộ bàn ăn lớn đủ chỗ cho 6 – 8 người, cùng khu vực bếp nấu gọn gàng tiếp nối sảnh phụ giúp không khí lưu thông mát mẻ. Ngoài ra, tầng 1 còn được bố trí thêm một phòng ngủ khép kín đảm bảo riêng tư và một nhà vệ sinh chung đảm bảo đáp ứng đầy đủ nhu cầu sinh hoạt hàng ngày.

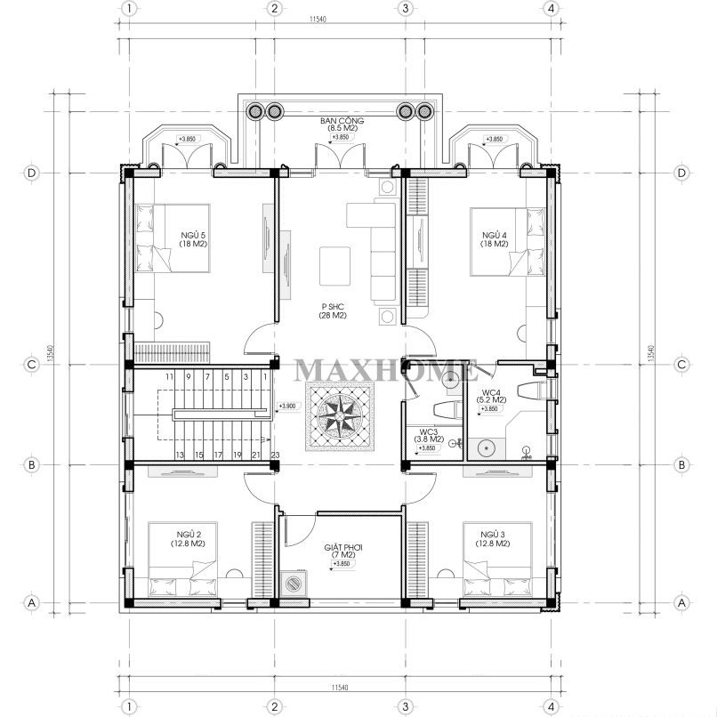
Bước lên tầng 2, không gian phòng sinh hoạt chung bố trí tại vị trí trung tâm, kết nối với ban công rộng thoáng, đón gió mát và sinh khí, nơi đây cũng trở thành khoảng sân chơi lý tưởng ngoài trời.
Bốn phòng ngủ được bố trí xung quanh nhà, diện tích rộng rãi, nội thất tiện nghi, mang đến sự thoải mái và những giấc ngủ trọn vẹn cho từng thành viên. Trong đó, phòng ngủ số 4 sở hữu vệ sinh khép kín, cùng với nhà vệ sinh chung và khu giặt phơi được sắp xếp hợp lý, vừa thuận tiện sử dụng vừa giữ trọn tính thẩm mỹ cho tổng thể.












