Cực phẩm nhà 2 tầng mái Nhật tân cổ điển có sân vườn rộng mênh mông | MH05579
| Chủ đầu tư: Anh Vũ Quang Huy | Số tầng: 2 |
| Địa chỉ: Phường Tự Lạn, Bắc Ninh | Diện tích xây dựng: 8,5 x 13,4m |
| Loại hình: Nhà mái Nhật tân cổ điển | Tổng diện tích: 226m2 |
Công năng:
|
|
Bạn sẽ phải trầm trồ trước vẻ đẹp của mẫu nhà 2 tầng mái Nhật tân cổ điển – một tuyệt tác kiến trúc kết hợp hoàn hảo giữa nét sang trọng cổ điển và tinh thần phóng khoáng hiện đại. Ngôi nhà sở hữu sân vườn siêu rộng được bố trí hài hòa, mang đến không gian sống đẳng cấp, xanh mát như resort nghỉ dưỡng. Đây chính là lựa chọn lý tưởng cho những ai yêu thích sự tinh tế, sang trọng và mong muốn tận hưởng trọn vẹn cuộc sống giữa thiên nhiên.
Mẫu nhà mái Nhật 2 tầng không chỉ nổi bật bởi bảng màu sang trọng, tinh tế mà còn gây ấn tượng mạnh với chất liệu cao cấp và đường nét thiết kế hài hòa. Được xây dựng theo phong cách kiến trúc tân cổ điển hiện đại, ngôi nhà là sự kết hợp hoàn hảo giữa vẻ đẹp thanh lịch và sự bền vững theo thời gian. Các chi tiết phào chỉ, hoa văn trang trí được tối giản tinh tế, loại bỏ sự cầu kỳ thường thấy trong lối cổ điển truyền thống, mang đến một tổng thể nhẹ nhàng, trang nhã mà vẫn toát lên nét quyền quý.

Nhìn tổng thể, mẫu nhà 2 tầng mái Nhật tân cổ điển mang dáng vẻ kiên cố, bề thế với hệ thống cột trụ vững chãi được bố trí khoa học. Phần mặt tiền được thiết kế cao ráo, thoáng đãng, khoe trọn những đường nét mềm mại của hoa văn và phào chỉ tinh xảo, góp phần tôn lên vẻ sang trọng cho công trình. Ở tầng 1, hệ trụ cột vuông khỏe khoắn kết hợp hài hòa với trụ tròn tầng 2 tạo nên sự cân đối, mềm mại cho toàn bộ kiến trúc. Từng chi tiết kết cấu đều được tính toán kỹ lưỡng và tuân thủ đúng chuẩn mực thiết kế, vừa đảm bảo độ bền vững và tuổi thọ cao, vừa thể hiện nét thanh thoát, uyển chuyển đặc trưng của phong cách tân cổ điển.

Mẫu nhà đẹp được khoác lên mình lớp sơn trắng kem tinh tế, giúp tôn lên vẻ sang trọng và làm nổi bật hệ lan can ban công bằng sắt sơn mỹ thuật cao cấp. Gam màu trắng kem không chỉ mang lại cảm giác nhẹ nhàng, thanh thoát mà còn giúp tổng thể công trình trở nên sáng và hài hòa hơn dưới mọi góc nhìn. Đặc biệt, với những công trình thực tế do Maxhome trực tiếp thiết kế và thi công, màu sơn được phối chuẩn xác và đồng nhất, bởi đây là dòng sơn cao cấp do chính Maxhome sản xuất, đảm bảo độ bền màu vượt trội và chất lượng thẩm mỹ cao theo thời gian.

Ngôi nhà 2 tầng mái Nhật tân cổ điển sử dụng hệ thống cửa kính cao cấp, vừa giúp đón ánh sáng tự nhiên tối đa vào không gian nội thất, vừa góp phần tăng vẻ sang trọng và thanh thoát cho ngoại thất. Chất liệu kính không chỉ giúp ngôi nhà trở nên hiện đại hơn mà còn mở ra tầm nhìn rộng thoáng ra khu sân vườn xanh mát, mang lại cảm giác gần gũi với thiên nhiên. Đặc biệt, hệ thống cửa được bố trí hợp lý trên các mặt tiền, giúp ngôi nhà luôn tràn ngập ánh sáng, lưu thông không khí tốt và tạo cảm giác thoải mái, dễ chịu cho mọi thành viên trong gia đình.

Sở hữu khuôn viên đất có vị trí vô cùng lý tưởng, đội ngũ kiến trúc sư của Maxhome đã nghiên cứu kỹ lưỡng hiện trạng và đưa ra phương án thiết kế nhà vườn hợp lý với kích thước 8,5 x 13,4m, tổng diện tích sử dụng khoảng 226m². Tỷ lệ bố cục công trình được tính toán khoa học, đảm bảo tối ưu công năng và thẩm mỹ, đồng thời tận dụng hiệu quả lợi thế cảnh quan xung quanh. Nhờ đó, ngôi nhà không chỉ mang vẻ đẹp hài hòa giữa kiến trúc và thiên nhiên mà còn tạo nên một không gian sống lý tưởng, thoáng đãng và đầy tiện nghi.


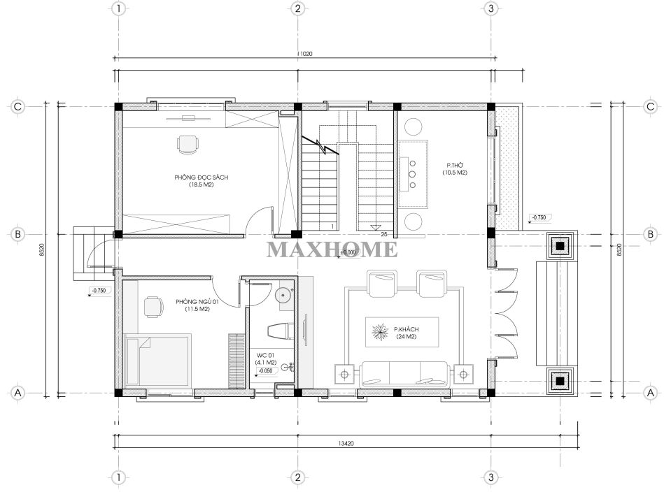
Từ sảnh chính bước vào, không gian đầu tiên là phòng khách rộng rãi, được bố trí sang trọng và thoáng đãng. Bên trái phòng khách là phòng thờ diện tích 10,5m², thiết kế trang nghiêm, hợp phong thủy, tạo sự cân đối cho tổng thể. Tiếp nối là phòng đọc sách yên tĩnh, nơi các thành viên có thể thư giãn, đọc sách hoặc làm việc. Phòng ngủ master được bố trí ở phía sau, đảm bảo sự riêng tư và yên tĩnh cho gia chủ. Cuối nhà có lối đi ra cửa hậu kết nối với khu bếp ăn được xây tách riêng, giúp không gian sinh hoạt chính luôn sạch sẽ, thông thoáng và tránh ảnh hưởng bởi mùi nấu nướng.

Tầng 2 được thiết kế với không gian sinh hoạt chung rộng rãi, là nơi các thành viên quây quần, trò chuyện và thư giãn sau một ngày làm việc. Phần diện tích còn lại là khu vực nghỉ ngơi riêng tư, gồm 3 phòng ngủ, mỗi phòng đều được bố trí nhà vệ sinh khép kín, đảm bảo sự tiện nghi và thoải mái tối đa. Đặc biệt, phòng ngủ số 03 và 04 sở hữu ban công hướng ra sân vườn, đón gió và ánh sáng tự nhiên, mang đến cảm giác thoáng đãng, dễ chịu.












