Đẳng cấp biệt thự tân cổ điển mái Mansard 6 phòng ngủ lộng lẫy, nguy nga | MH05654
| Chủ đầu tư: Anh Nguyễn Tài Đạt | Số tầng: 2 tầng 1 tum |
| Địa chỉ: Lương Tài, Bắc Ninh | Diện tích xây dựng: 13,8 x 8,5m |
| Loại hình: Biệt thự tân cổ điển mái Mansard | Tổng diện tích: 375m2 |
Công năng:
|
|
Siêu phẩm biệt thự 2 tầng 1 tum tân cổ điển mái Mansard 6 phòng ngủ của gia đình anh Đạt tại Bắc Ninh do Maxhome thiết kế sở hữu vẻ đẹp nguy nga và tráng lệ. Biệt thự không chỉ tái hiện một cách hoàn mỹ những tinh hoa đặc sắc của kiến trúc Pháp cổ điển mà còn khẳng định đẳng cấp, gu thẩm mỹ tinh tế và vị thế của gia chủ. Mời quý bạn đọc cùng chiêm ngưỡng vẻ đẹp lung linh và không gian sống đầy đẳng cấp của thiết kế này!
Ngay từ ánh nhìn đầu tiên, mặt tiền biệt thự tân cổ điển mái Mansard gây ấn tượng mạnh với bố cục đăng đối, chuẩn mực tân cổ điển. Từng khối trụ tròn, phào chỉ, vòm cửa sổ và lan can uốn cong đều được thiết kế tinh xảo, toát lên vẻ sang trọng mà vẫn thanh thoát, nhẹ nhàng. Mặt tiền được chia thành ba khối chính rõ ràng, trung tâm là tiền sảnh bề thế, hai bên cân xứng hài hòa – biểu tượng cho sự ổn định và thịnh vượng trong phong thủy kiến trúc.

Sảnh chính nổi bật với hệ cột đôi Corinth hoành tráng nâng đỡ phần mái hiên, được chạm khắc hoa văn tỉ mỉ. Từng chi tiết phù điêu, gờ chỉ, đường nét uốn lượn trên đầu cột đều thể hiện bàn tay tài hoa và óc sáng tạo của đội ngũ kiến trúc sư Maxhome.
Phần đầu hồi trang trí với họa tiết vương miện và phù điêu đắp nổi thể hiện quyền lực và vị thế gia chủ. Hệ thống đèn chùm, lan can con tiện, hoa văn chạm trổ tinh xảo đều được lựa chọn theo phong cách châu Âu. Khối mái vòm và các chi tiết trang trí bằng phù điêu đắp nổi tạo nên hiệu ứng thị giác mạnh mẽ, gợi cảm giác quyền quý và bề thế, góp phần nâng tầm giá trị thẩm mỹ cho căn biệt thự.

Gam màu chủ đạo của biệt thự là vàng kem nhẹ nhàng, điểm xuyết bởi các chi tiết mái, khung cửa đen ghi và nâu gỗ, tạo nên tổng thể hài hòa và quý phái. Màu vàng kem tượng trưng cho sự ấm áp, thịnh vượng, trong khi mái đen ghi giúp tôn lên chiều cao, nâu gỗ tạo nét sang trọng của công trình. Đây là sự phối hợp tinh tế, vừa tôn vinh giá trị thẩm mỹ, vừa thể hiện cá tính thanh lịch, quyền uy của gia chủ.
Vật liệu ngoại thất được lựa chọn kỹ lưỡng, đảm bảo tính bền vững và sang trọng lâu dài. Đá ốp mặt tiền mang sắc vàng hoàng gia được xử lý bề mặt bóng mịn, tăng khả năng chống thấm và chịu nhiệt. Các khung cửa nhôm kính cao cấp phối gỗ tự nhiên giúp tăng độ bền, đồng thời tạo sự tương phản nhẹ, tôn lên nét hiện đại trong tổng thể cổ điển.

Công trình được thiết kế theo tỷ lệ vàng, với khối đế vững chắc nâng đỡ phần thân và mái đồ sộ phía trên. Các mảng tường được phân lớp rõ ràng, có điểm nhấn nhịp điệu, tạo chiều sâu và cảm giác kiên cố cho tổng thể. Khối ban công uốn cong mềm mại ở tầng hai mang đến sự cân bằng cho khối kiến trúc, vừa giúp mặt tiền trở nên sinh động, vừa tạo không gian thư giãn đầy lãng mạn cho gia chủ.
Bậc tam cấp dẫn lên sảnh chính được ốp đá tự nhiên gam vàng hoàng kim, kết hợp cùng lan can và phù điêu cổ điển tạo nên không gian đón tiếp sang trọng như lối vào của một cung điện.

Điểm nhấn lớn nhất của công trình nằm ở hệ mái Mansard, đặc trưng của phong cách kiến trúc tân cổ điển Pháp. Mái được thiết kế cao, phủ ngói đen ghi sang trọng, kết hợp cùng phào chỉ vàng nhạt tinh tế tạo nên vẻ quý phái hiếm có. Hình khối mái được xử lý mềm mại với các đường cong nhẹ ở phần cửa sổ mái, vừa giúp tăng thẩm mỹ, vừa tạo không gian thông thoáng cho tầng tum phía trên.
Bên cạnh tính thẩm mỹ, hệ mái Mansard còn có tác dụng cách nhiệt, chống thấm và tận dụng được diện tích bên trong làm kho hoặc phòng ngủ phụ. Chính sự kết hợp giữa yếu tố kỹ thuật và nghệ thuật đã làm nên linh hồn của căn biệt thự, nơi mỗi chi tiết đều mang giá trị thẩm mỹ và công năng song hành.

Bao quanh là sân vườn được quy hoạch khoa học, mang đến bầu không khí trong lành và không gian nghỉ dưỡng lý tưởng. Những bồn cây xanh mướt được sắp đặt khéo léo hai bên lối sảnh, góp phần làm mềm mại hơn hình khối kiến trúc bề thế.
Mảng xanh trở thành lớp nền hoàn hảo, tôn lên vẻ đẹp tinh tế của phong cách tân cổ điển, đồng thời lan tỏa cảm giác an yên, thư thái – giá trị mà Maxhome luôn hướng tới trong mỗi thiết kế: sự hòa quyện giữa thẩm mỹ, công năng và cảm xúc.

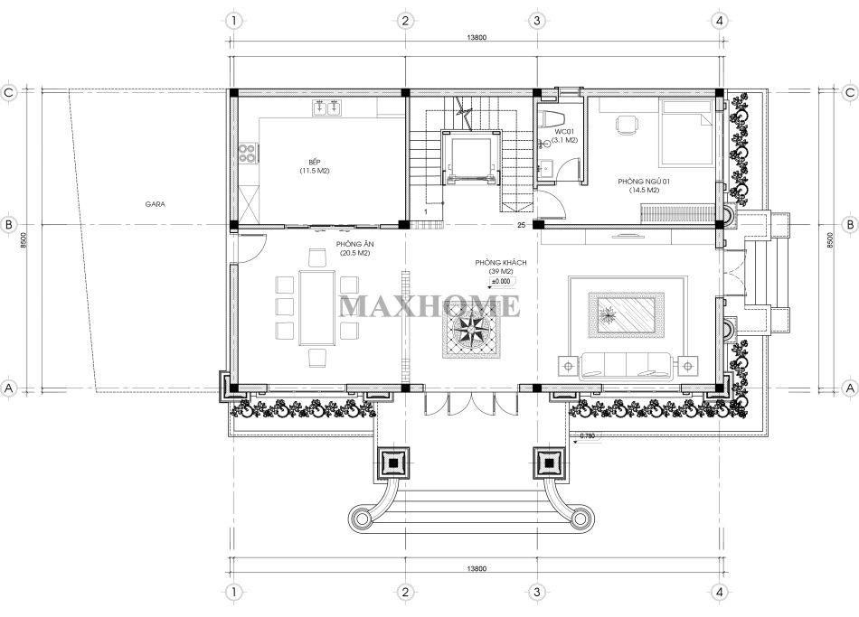
Biệt thự tân cổ điển mái Mansard được xây dựng trên khu đất có kích thước 13,8 x 8,5m, tổng diện tích sử dụng lên đến khoảng 375m², còn lại là cảnh quan sân vườn. Biệt thự có hướng chính nằm ở phía Tây Nam, là hướng phong thủy tốt, phù hợp với nhiều mệnh gia chủ và thế đất. Với lối thiết kế sang trọng, hài hòa giữa cổ điển và hiện đại, các kiến trúc sư đã khéo léo phân chia công năng từng tầng một cách tối ưu, đảm bảo cả yếu tố thẩm mỹ và sự tiện nghi trong sinh hoạt.

Bước vào từ sảnh chính không gian đầu tiên mở ra là phòng khách rộng lớn, thông thoáng, được kết nối liền mạch với sảnh phụ, mang đến sự thông gió và ánh sáng tự nhiên tối đa. Nội thất tại đây được bài trí theo phong cách sang trọng, chỉn chu, thể hiện rõ gu thẩm mỹ tinh tế và đẳng cấp của gia chủ.
Tiếp đến là khu vực bếp và phòng ăn được thiết kế mở, rất rộng và thoáng nhờ lối cửa bên hông giúp giảm mùi khi đun nấu và tăng tính tiện dụng. Tầng 1 còn bố trí 1 phòng ngủ khép kín dành cho ông bà.

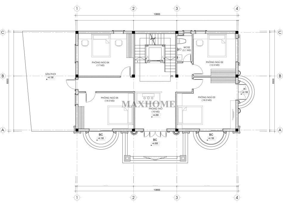
Không gian phòng thờ trang nghiêm đặt trên tầng 2, vị trí phong thủy tốt với hướng bàn thờ trùng với hướng chính của ngôi nhà. Căn phòng được thiết kế thanh tịnh với nội thất gỗ trầm ấm, bố trí gọn gàng, thể hiện lòng thành kính sâu sắc của gia chủ đối với ông bà tổ tiên, đồng thời giữ gìn giá trị truyền thống trong nếp sống hiện đại.
Xung quanh là 4 phòng ngủ rộng rãi, thông thoáng và tiện nghi, mang đến không gian nghỉ ngơi thoải mái, giúp các thành viên tận hưởng giấc ngủ trọn vẹn mỗi ngày, kèm theo đó là 1 nhà vệ sinh chung được bố trí khoa học, thuận tiện cho sinh hoạt.

Tầng tum của biệt thự tân cổ mái Mansard được bố trí khoa học với 1 phòng kho, 1 phòng ngủ và 1 nhà vệ sinh chung, đáp ứng trọn vẹn nhu cầu sinh hoạt. Nổi bật nhất là khu sân thượng rộng thoáng, là nơi lý tưởng để gia đình thư giãn, tận hưởng những phút giây “chill” giữa không gian trong lành cũng như tổ chức những buổi tiệc nướng ngoài trời.











