Đẳng cấp mẫu nhà 2 tầng quốc dân chưa bao giờ hết hot ở Maxhome | MH05475

Chủ đầu tư: Anh Nguyễn Văn Dũng Số tầng: 2
Địa chỉ: Tân Tiến, An Dương, Hải Phòng Diện tích xây dựng: 8,1 x 13,8m
Loại hình: Nhà mái Nhật hiện đại Tổng diện tích: 185m2
Công năng:
  • Tầng 1: Phòng khách, phòng bếp, 1 phòng ngủ, 1 wc
  • Tầng 2: Phòng thờ, 3 phòng ngủ, 1 wc, sân phơi

Chắc hẳn bạn nhìn mẫu nhà 2 tầng quốc dân dưới đây sẽ thấy thật quen thuộc vì xu hướng xây nhà mới hiện nay ở các vùng quê rất phổ biến kiểu nhà này. Công trình đẳng cấp này thuộc sở hữu của gia đình anh Dũng ở Hải Phòng và do Maxhome thiết kế, sau khi hoàn thiện bản thiết kế, bộ hồ sơ này đã được gửi đến tận tay gia đình anh và Maxhome nhận được sự phản hồi tích cực, ưng ý từ gia chủ.

Mặt tiền căn nhà 2 tầng quốc dân toát lên vẻ bề thế với hệ cột trụ vuông chắc chắn và ốp chân cột gạch trang trí màu xám tạo chiều sâu thẩm mỹ. Cửa chính bằng gỗ Lim Nam Phi tự nhiên nguyên khối kết hợp cùng hệ thống cửa sổ nhôm kính cao cấp giúp không gian luôn thông thoáng và tràn ngập ánh sáng tự nhiên. Đây cũng chính là chi tiết khẳng định sự sang trọng nhưng không kém phần gần gũi mà nhiều gia đình yêu thích ở mẫu nhà 2 tầng quốc dân.

dang-cap-mau-nha-2-tang-quoc-dan-chua-bao-gio-het-hot-o-maxhome-9

Khu vực ban công được thiết kế rộng rãi và lắp đặt lan can sắt sơn tĩnh điện bền đẹp theo thời gian giúp anh Dũng có thể tận dụng không gian này để trồng hoa, cây cảnh và mang thiên nhiên vào không gian sống. Đặc biệt, phần lam bê tông trắng lợp kính hiện đại tại tầng 2 vừa tạo điểm nhấn mới lạ vừa tăng sự thoáng sáng khiến mẫu thiết kế này trở thành lựa chọn hàng đầu trong danh sách nhà 2 tầng quốc dân hiện nay.

dang-cap-mau-nha-2-tang-quoc-dan-chua-bao-gio-het-hot-o-maxhome-10

Tiếp đến là hệ mái Nhật sang trọng với gam màu xanh than nổi bật trên nền sơn trắng giúp ngôi nhà 2 tầng thêm phần thanh thoát và tinh tế. Phần mái đua rộng giúp che chắn cho tường và đồng thời tăng tuổi thọ công trình, thiết kế tinh tế này thể hiện sự tính toán tỉ mỉ của đội ngũ Maxhome. Đặc biệt, phía sau mái còn được lắp đặt hệ thống năng lượng mặt trời giúp tiết kiệm điện năng và khẳng định phong cách sống hiện đại, bền vững.

Chính nhờ sự kết hợp hài hòa đó mà căn nhà anh Dũng nổi bật như một biểu tượng của xu hướng nhà 2 tầng quốc dân.

dang-cap-mau-nha-2-tang-quoc-dan-chua-bao-gio-het-hot-o-maxhome-11

dang-cap-mau-nha-2-tang-quoc-dan-chua-bao-gio-het-hot-o-maxhome-12

Nhìn vào ảnh mặt sau công trình, ta thấy mẫu nhà 2 tầng quốc dân do Maxhome thiết kế không chỉ đẹp ở mặt tiền mà còn được chăm chút kỹ lưỡng ở phía sau. Mặt sau ngôi nhà giữ đúng tinh thần hiện đại, vuông vắn với những mảng tường phẳng, sơn trắng kết hợp dải phân cách tầng tạo cảm giác thanh thoát. Ngoài ra, hệ thống cửa kính lớn trải dài giúp lấy sáng tối đa và mở ra không gian thoáng đãng cho các phòng phía trong.

dang-cap-mau-nha-2-tang-quoc-dan-chua-bao-gio-het-hot-o-maxhome-8

Nhìn từ trên cao, căn nhà 2 tầng mái Nhật khoác lên mình vẻ đẹp hài hòa, vuông vắn được bao quanh bởi hệ thống cổng tường kiên cố tạo nên một không gian sống an toàn và riêng tư. Khu sân rộng phía trước rất tiện lợi cho việc để xe hoặc tổ chức các hoạt động ngoài trời. Đây là một trong những chi tiết thực tế mà Maxhome luôn đặt lên hàng đầu khi triển khai các mẫu nhà 2 tầng quốc dân.

dang-cap-mau-nha-2-tang-quoc-dan-chua-bao-gio-het-hot-o-maxhome-13
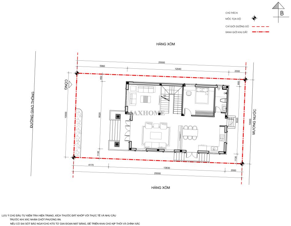
Mặt bằng định vị công trình
dang-cap-mau-nha-2-tang-quoc-dan-chua-bao-gio-het-hot-o-maxhome-14
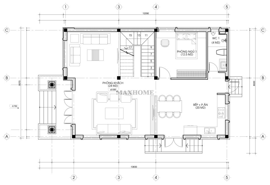
Mặt bằng bố trí công năng tầng 1

Ngay từ cửa chính bước vào là phòng khách 24m2 thoáng sáng, nơi tiếp đón khách và sum họp gia đình anh Dũng. Liền kề là phòng bếp kết hợp bàn ăn 20,5m2 được thiết kế mở và tạo sự kết nối thuận tiện trong sinh hoạt hằng ngày. Tầng này còn có 1 phòng ngủ riêng tư rộng 12,5m2 thích hợp cho ông bà để tiện cho việc đi lại trong nhà. Nhà vệ sinh chung 4m2 được sắp xếp gọn gàng ở cuối nhà giúp đảm bảo sự tiện lợi và kín đáo.

dang-cap-mau-nha-2-tang-quoc-dan-chua-bao-gio-het-hot-o-maxhome-15
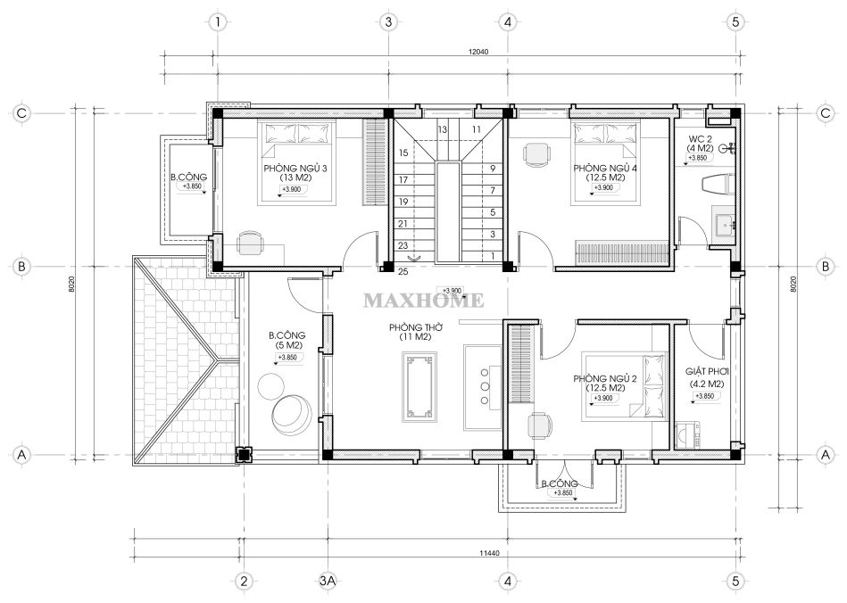
Mặt bằng bố trí công năng tầng 2

Tầng 2 là không gian nghỉ ngơi chính của gia đình anh Dũng với 3 phòng ngủ được phân chia hợp lý, đảm bảo sự riêng tư cho từng thành viên. Khu vực phòng thờ 11m2 được đặt ở vị trí trang trọng, yên tĩnh và hướng ra mặt tiền phía trước để thể hiện trọn vẹn nét đẹp truyền thống thờ cúng của gia đình. Ngoài ra, tầng này còn có 1 nhà vệ sinh chung cũng được thiết kế đồng trục với tầng 1. Điểm cộng lớn là sân phơi rộng 4,2m2 được bố trí thoáng đãng một góc nhỏ, đặt vừa máy giặt và khoảng trống để phơi đồ thoáng mát.

Yêu cầu tư vấn

    *Vui lòng để lại thông tin, nhân viên tư vấn sẽ liên hệ lại quý khách trong thời gian sớm nhất