Đỉnh cao thiết kế nhà 2 tầng 4 phòng ngủ toạ lạc tại Quảng Trị | MH05881
| Chủ đầu tư: Chị Phạm Thị Lan | Số tầng: 2 |
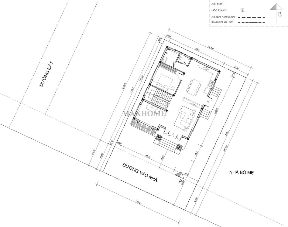
| Địa chỉ: Tùng Giang, Quảng Trị | Diện tích xây dựng: 8,5 x 13,4m |
| Loại hình: Nhà mái Nhật hiện đại | Tổng diện tích: 190m2 |
Công năng:
|
|
Maxhome vừa mới hoàn thiện hồ sơ thiết kế mẫu nhà 2 tầng 4 phòng ngủ với không gian sống tiện nghi cho gia đình chị Lan, đây cũng là một tác phẩm kiến trúc nghệ thuật khéo léo kết hợp giữa hơi thở hiện đại và các giải pháp kỹ thuật thích ứng với khí hậu khắc nghiệt của địa phương.
Maxhome lựa chọn tông màu trắng sứ làm chủ đạ, kết hợp hài hòa với màu sơn nâu cà phê tại các vị trí phân tầng và chân cột cho căn nhà 2 tầng 4 phòng ngủ. Sự tương phản này không chỉ giúp mẫu nhà đẹp trở nên nổi bật giữa không gian xung quanh mà còn tạo cảm giác sạch sẽ, sang trọng trường tồn với thời gian.

Tiếp đó, tại khu vực chân tường và các mảng tường trang trí đã được khéo léo sử dụng gạch ốp giả đá màu xám đậm và gạch inax. Việc sử dụng vật liệu đá ốp chân tường không chỉ mang tính thẩm mỹ mà còn là một giải pháp kỹ thuật quan trọng nhằm bảo vệ cấu trúc tường khỏi tình trạng rêu mốc, thấm dột do tiếp xúc trực tiếp với độ ẩm từ mặt đất. Ở khu vực tầng 2, một mảng gạch kính trang trí được bố trí tinh tế bên cạnh cửa phụ đi ra ban công vừa là điểm nhấn trang trí hiện đại vừa giúp lấy sáng tự nhiên tối đa cho không gian nội thất bên trong mà vẫn đảm bảo được sự riêng tư cần thiết.


Một điểm nhấn không thể bỏ qua trong thiết kế ngoại thất này chính là hệ thống cửa vì toàn bộ hệ cửa chính và cửa sổ đều sử dụng nhôm hệ cao cấp kết hợp với kính cường lực bản lớn. Cách tiếp cận này giúp căn nhà 2 tầng 4 phòng ngủ luôn ngập tràn ánh sáng tự nhiên và thông gió tốt. Khi đêm xuống, hệ thống đèn led downlight âm trần và đèn hắt tường được bố trí dọc theo các vị trí cột và sảnh sẽ tỏa ra ánh sáng vàng ấm áp, biến ngôi nhà 2 tầng đẹp của chị Lan thành một biệt thự nhỏ lung linh giữa lòng Quảng Trị.


Các khoảng ban công rộng rãi ở tầng 2 được trang trí bằng các bồn hoa và cây xanh tạo không gian thư giãn lý tưởng cho gia đình chị Lan và góp phần giảm bức xạ nhiệt, mang lại sự mát mẻ cho các phòng ngủ phía sau. Ngoài ra, hệ thống hàng rào nhà chị Lan cũng được thiết kế đồng bộ với các thanh nan sắt thông thoáng để đảm bảo an ninh mà không bị che khuất đi vẻ đẹp kiến trúc tuyệt mỹ của công trình bên trong.


Đặc biệt, phối cảnh ngoại thất của căn nhà 2 tầng 4 phòng ngủ này gây ấn tượng mạnh mẽ bởi sự bề thế của hệ mái Nhật màu xanh ghi lịch lãm. Đội ngũ thiết kế Maxhome đã sử dụng kỹ thuật lợp vì kèo và dán ngói để đảm bảo sự bền bỉ trước những mùa bão miền Trung ở tỉnh Quảng Trị. Nhìn từ xa, các lớp mái chồng xếp lên nhau tạo nên sự phân tầng rõ rệt kết hợp cùng hệ thống cột trụ vuông vức ở sảnh chính và ban công tầng 2 giúp ngôi nhà trông vô cùng kiên cố và vững chãi.


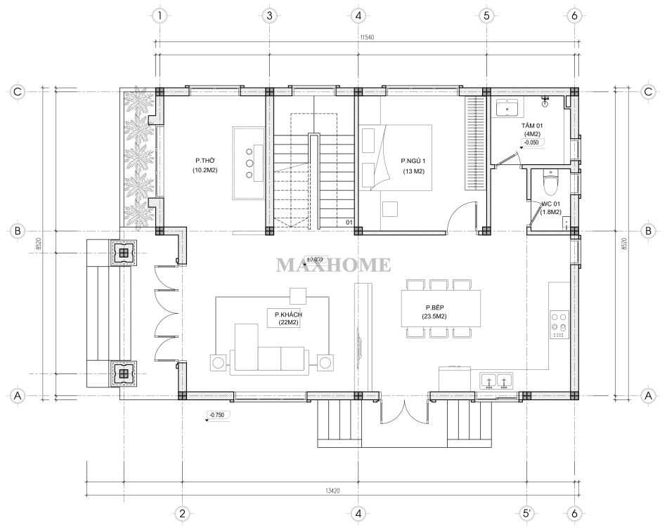
Bước chân qua bậc tam cấp uy nghi để tiến vào không gian tầng 1, bạn sẽ tới ngay phòng khách được thiết kế rộng 22m2 rất sang trọng nằm ngay sau cửa chính. Bên cạnh đó là phòng thờ 10,2m2 được đặt tại vị trí trang trọng nhất và hướng ra mặt tiền đón nhận sinh khí tươi tốt giúp gia đình chị Lan nhận nhiều tài lộc hơn.

Tiếp nối là khu vực bếp ăn tích hợp đầy đủ tiện nghi và sở hữu không gian rộng tới 23,5m2 có hệ tủ bếp lớn cùng bộ bàn ăn 6 chỗ ngồi. Tiếp theo là 1 phòng ngủ nhỏ nhắn 13m2 nhưng cực kỳ yên tĩnh với đầy đủ nội thất tiện nghi cơ bản để sinh hoạt. Điểm cộng lớn nhất cho sự tinh tế của Maxhome chính là việc tách biệt khu vực vệ sinh và phòng tắm riêng biệt giúp các thành viên trong gia đình chị Lan sử dụng vô cùng thuận tiện và thoải mái mà không phải chờ đợi nhau vào mỗi buổi sáng bận rộn.

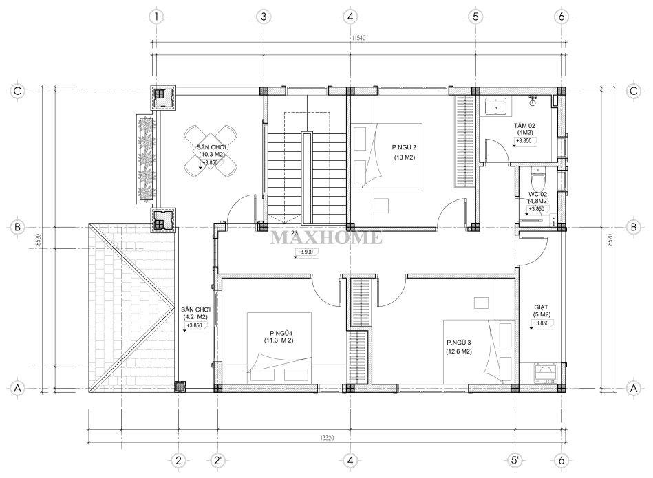
Nếu tầng 1 là nơi náo nhiệt với những buổi sum vầy thì tầng 2 lại mở ra một thiên đường nghỉ dưỡng riêng tư và đầy thư thái cho cả gia đình. Với cấu trúc gồm 3 phòng ngủ được phân bổ thông minh, mỗi thành viên đều sở hữu một không gian nhỏ tràn ngập ánh sáng tự nhiên từ hệ cửa sổ lớn giúp mang lại giấc ngủ ngon và nguồn năng lượng tích cực mỗi khi thức dậy. Tương tự như tầng dưới, hệ thống nhà vệ sinh và phòng tắm tiếp tục được thiết kế tách rời giúp đảm bảo vệ sinh cũng như tối ưu hóa công năng sử dụng cho một gia đình đông thành viên.
Đặc biệt nhất chính là khu vực sân chơi rộng rãi 10,3m2 được đặt một bộ bàn trà nhỏ để ngắm hoàng hôn Quảng Trị hay đơn giản là không gian cho con trẻ vui đùa trong gió mát. Đây chính là mảnh ghép hoàn hảo giúp ngôi nhà 2 tầng 4 phòng ngủ không chỉ là nơi để ở mà còn là nơi tận hưởng trọn vẹn từng khoảnh khắc hạnh phúc của cuộc sống.











