Gia chủ chịu chơi với mẫu nhà lô phố 2 tầng mái Thái tân cổ cực chất | MH03041
| Chủ đầu tư: Chú Đỗ Văn Khải | Số tầng: 2 |
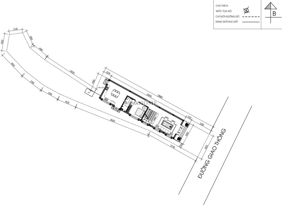
| Địa chỉ: Sông Thao, Cẩm Khê, Phú Thọ | Diện tích xây dựng: 5,5 x 23,4m |
| Loại hình: Nhà lô phố tân cổ điển | Tổng diện tích: 200m2 |
Công năng:
|
|
Dưới đây là một mẫu thiết kế nhà lô phố 2 tầng mái Thái vừa sang trọng vừa khác biệt giữa khu phố mà bạn có thể thử tham khảo. Công trình này thuộc sở hữu của gia đình chú Khải ở Phú Thọ do Maxhome thiết kế chắc chắn sẽ khiến bạn trầm trồ bởi phong cách tân cổ điển pha hiện đại cùng những đường nét chỉn chu, cân đối và màu sắc tinh tế.
Ngay từ cái nhìn đầu tiên, mặt tiền tầng 1 của mẫu nhà lô phố 2 tầng mái Thái được ốp đá đen vân mây trắng vô cùng sang trọng tạo nên nền tương phản hoàn hảo cho hệ cột vuông và cửa gỗ chính. Thiết kế bậc thềm 3 bậc cao 450mm giúp căn nhà cao ráo, tôn dáng mặt tiền hơn và hợp phong thủy. Hai cột vuông kiên cố được đặt đối xứng đỡ mái che sảnh tầng 1 giúp mang lại cảm giác vững chãi và bề thế.

Phần mái che sảnh tầng 1 cũng được lợp mái ngói đồng điệu với hệ mái chính, giúp tạo nên một chỉnh thể hài hòa và tinh tế từ chân đến đỉnh mái. Bên cạnh đó, màu sơn trắng chủ đạo kết hợp màu sơn xám ở chi tiết mái và điểm nhấn đen cùng nâu gỗ ở mặt tiền tầng 1 đã mang đến tổng thể vừa thanh lịch vừa quyền quý.

Cửa chính là điểm nhấn nổi bật với chất liệu gỗ Lim tự nhiên kết hợp pano kính mang nét cổ điển mà vẫn đảm bảo sự thông thoáng và hiện đại. Các ô cửa sổ, cửa phụ khác sử dụng nhôm kính đen khung mảnh làm tăng khả năng lấy sáng và tạo chiều sâu cho không gian mặt tiền. Chính sự kết hợp giữa vật liệu truyền thống và hiện đại này đã giúp căn nhà của chú Khải nổi bật giữa dãy phố, toát lên vẻ đẳng cấp nhưng không phô trương.

Điểm nhấn khiến mẫu nhà đẹp này khác biệt chính là hệ mái Thái cao 2,7m được Maxhome thiết kế tỉ mỉ. Phần mái không chỉ giúp ngôi nhà chống nóng, thoát nước tốt mà còn tạo nên vẻ thanh thoát, bề thế. Phía dưới là khu vực sảnh ban công được nhấn bằng chi tiết mái vòm và ô cửa sổ bán nguyệt – một biểu tượng đặc trưng của phong cách tân cổ điển vừa mềm mại vừa sang trọng.

Ban công tầng 2 sử dụng con tiện bê tông trắng đồng bộ với màu sơn nhà giúp tạo nên vẻ mềm mại và cổ điển. Phía sau lan can là cửa nhôm kính đen lớn mở ra không gian ban công thoáng đãng giúp đón gió và ánh sáng tự nhiên. Đây là nơi gia chủ có thể tận hưởng không khí trong lành buổi sáng hoặc thư giãn vào buổi tối. Thêm vào đó, các đường phào chỉ cũng được bố trí khéo léo tại cột, bệ cửa sổ, mái vòm và lan can giúp tạo chiều sâu và độ tinh xảo.

Không chỉ ngôi nhà lô phố 2 tầng mái Thái mà cả cổng và tường bao cũng được Maxhome đầu tư kỹ lưỡng. Cổng chính được làm từ sắt nghệ thuật sơn tĩnh điện màu đen, họa tiết uốn lượn cầu kỳ nhưng vẫn thanh thoát, phù hợp với phong cách tân cổ điển mà ngôi nhà hướng tới. Hai trụ cổng lớn cùng mái che đồng nhất với mái nhà tạo nên sự liên kết chặt chẽ về thẩm mỹ.

Ngôi nhà lô phố 2 tầng mái Thái của chú Khải được xây lệch sang một phía và tạo khoảng trống 1m bên hông. Maxhome đã tận dụng không gian này để bố trí nhiều ô cửa sổ dọc thân nhà giúp ánh sáng và không khí tự nhiên lưu thông tối đa, nhờ đó mà công trình dù nằm trong khu dân cư san sát nhưng vẫn luôn sáng sủa, thoáng mát và dễ chịu.

Với diện tích hai sàn lên đến 200m2 xây trên kích thước 5,5×23,4m, căn nhà phố 2 tầng được bố trí công năng dọc theo mảnh đất từ phòng khách đi ngang qua cầu thang, tới phòng ngủ có nhà vệ sinh khép kín và phòng bếp đặt ở cuối nhà. Căn phòng bếp này được ưu ái bố trí hai lối ra vào ngay bên cạnh là sảnh phụ và cửa đi ra phía sau, cộng thêm ô cửa sổ lớn nữa nên khi nấu nướng trong nhà sẽ không bị quá ám mùi thức ăn.

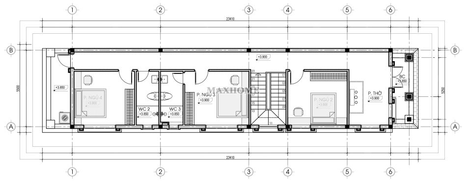
Tầng 2 bố trí 3 phòng ngủ dọc theo chiều hành lang và phòng thờ được đặt ngay phía trước hướng ra mặt tiền thể hiện sự tôn trọng trong không gian thờ cúng trang nghiêm này. Nhà vệ sinh trên khu vực tầng 2 cũng được bố trí hợp lý để mọi người tiện sử dụng trên tầng, cuối hành lang dẫn ra ban công phụ phía sau để giặt và phơi đồ.
Nếu bạn đang ấp ủ ý tưởng xây dựng một nhà lô phố 2 tầng mái Thái vừa đẹp vừa tiện nghi như này thì hãy liên hệ ngay với Maxhome để được tư vấn thiết kế trọn gói, chuẩn phong cách và tối ưu chi phí nhé!











