Gia đình đông người đừng bỏ lỡ mẫu nhà cấp 4 mái Nhật đơn giản 4 phòng ngủ | MH05884
| Chủ đầu tư: Chị Trịnh Thị Nhung | Số tầng: 1 |
| Địa chỉ: Minh Sơn, Triệu Sơn, Thanh Hoá | Diện tích xây dựng: 15 × 12,7m |
| Loại hình: Nhà mái Nhật hiện đại | Tổng diện tích: 176m2 |
| Công năng:
Phòng khách, phòng thờ, phòng bếp ăn, 4 phòng ngủ, 2 wc, phòng tắm |
|
Trong những năm gần đây, nhà cấp 4 mái Nhật đơn giản có 4 phòng ngủ đang trở thành lựa chọn hàng đầu của nhiều gia đình Việt, đặc biệt là các hộ gia đình đông người hoặc sống chung nhiều thế hệ. Chỉ với một mặt sàn, không gian sống được tối ưu trọn vẹn, vừa đảm bảo sự riêng tư cho từng thành viên, vừa mang lại cảm giác ấm cúng, tiện nghi và gần gũi với thiên nhiên.
Nhà cấp 4 mái Nhật đang là xu hướng được nhiều gia chủ lựa chọn nhờ thiết kế hiện đại, không gian sống yên bình và công năng tối ưu trên cùng một mặt sàn. Với kiến trúc hài hòa, phần mái Nhật có độ dốc vừa phải giúp thoát nước tốt, chống nóng hiệu quả, mẫu nhà này đặc biệt phù hợp với điều kiện khí hậu Việt Nam. Bên cạnh đó, các mẫu nhà cấp 4 mái Nhật đẹp dễ dàng bố trí công năng khoa học, thuận tiện cho sinh hoạt hằng ngày, phù hợp với gia đình trẻ, người lớn tuổi cũng như những ai yêu thích không gian sống tiện nghi.

Màu trắng kem được kiến trúc sư lựa chọn làm tông màu chủ đạo cho mẫu nhà cấp 4 mái Nhật, mang đến cảm giác thanh lịch, nhẹ nhàng và hiện đại. Sự kết hợp hài hòa với gam màu nâu tại các mảng tường nhấn cùng hệ đường kẻ chỉ âm tường giúp mặt tiền trở nên sinh động, có chiều sâu hơn mà vẫn giữ được nét tinh tế. Cách phối màu này không chỉ nâng cao giá trị thẩm mỹ tổng thể mà còn giúp công trình luôn bền màu, phù hợp với nhiều phong cách và điều kiện khí hậu tại Việt Nam.

Phần chân của công trình nhà cấp 4 mái Nhật được đôn cao hơn so với mặt sân, giúp hạn chế tối đa tình trạng ẩm thấp, ngập nước vào mùa mưa và tăng độ bền vững cho tổng thể công trình. Khu vực chân tường được ốp đá chẻ tự nhiên không chỉ có tác dụng bảo vệ bề mặt khỏi rêu mốc, bong tróc do tác động của thời tiết mà còn giúp việc vệ sinh, bảo dưỡng trở nên dễ dàng hơn. Đồng thời, vật liệu đá chẻ còn góp phần tạo điểm nhấn thẩm mỹ, mang lại cảm giác chắc chắn, sang trọng và hài hòa với kiến trúc mái Nhật đặc trưng.

Nhằm tối ưu nguồn ánh sáng tự nhiên và tạo cảm giác không gian luôn thông thoáng, mẫu nhà cấp 4 mái Nhật được thiết kế sử dụng toàn bộ hệ cửa kính khung nhôm Xingfa cao cấp. Giải pháp này giúp ánh sáng lan tỏa đều khắp các khu vực sinh hoạt, đồng thời mở rộng tầm nhìn, kết nối hài hòa giữa không gian trong nhà và cảnh quan bên ngoài. Bên cạnh tính thẩm mỹ hiện đại, cửa nhôm kính Xingfa còn nổi bật với độ bền cao, khả năng cách âm, cách nhiệt tốt, vận hành êm ái và dễ dàng vệ sinh, góp phần nâng cao chất lượng sống cho gia đình.

Từ góc nhìn trên cao, có thể dễ dàng cảm nhận được tổng thể mẫu nhà cấp 4 mái Nhật với khoảng sân vườn rộng rãi, được quy hoạch gọn gàng và khoa học. Khuôn viên xung quanh được bố trí nhiều tiểu cảnh xanh như cây cảnh, thảm cỏ và bồn hoa, mang lại cảm giác trong lành, gần gũi với thiên nhiên. Gia chủ còn khéo léo sắp xếp khu vực bàn trà ngoài trời, tạo không gian thư giãn lý tưởng để nghỉ ngơi, trò chuyện và tận hưởng những khoảnh khắc yên bình sau những giờ làm việc căng thẳng.

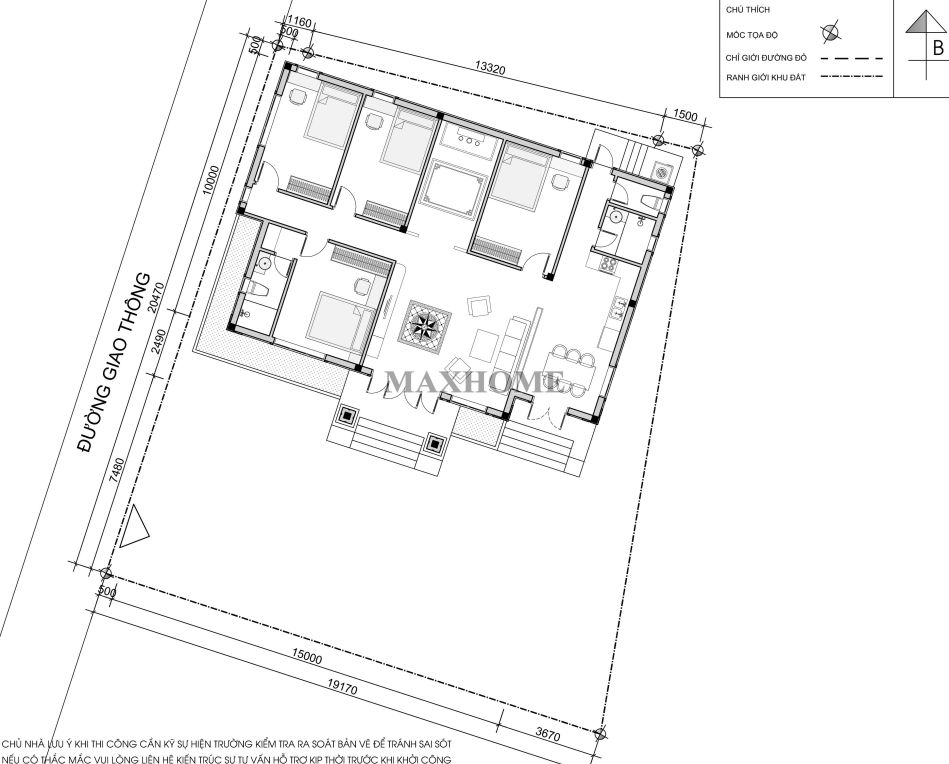
Mặt bằng định vị thể hiện rõ khuôn đất xây dựng của mẫu nhà cấp 4 mái Nhật, trong đó một bên công trình tiếp giáp trực tiếp với mặt đường giao thông bên hông, tạo điều kiện thuận lợi cho việc bố trí lối đi và thông gió tự nhiên. Khu đất có kích thước 15 × 12,7m, được quy hoạch vuông vắn, phù hợp cho việc tổ chức mặt bằng công năng khoa học. Tổng diện tích sử dụng thực tế của ngôi nhà vào khoảng 176m², đáp ứng tốt nhu cầu sinh hoạt thoải mái cho gia đình nhiều thế hệ.

Từ cửa chính bước vào là không gian phòng khách rộng rãi, được bố trí ở vị trí trung tâm, tạo cảm giác thông thoáng và thuận tiện cho sinh hoạt chung của gia đình. Đi sâu vào phía trong là khu vực phòng thờ có diện tích khoảng 10m², được sắp xếp trang nghiêm, đảm bảo sự yên tĩnh và tôn nghiêm cần thiết.

Khu vực bếp kết hợp phòng ăn được đặt về bên trái ngôi nhà, với diện tích khoảng 17m², bố trí gọn gàng, thuận tiện cho việc nấu nướng và quây quần trong các bữa ăn gia đình. Cuối nhà là khu vực phòng tắm và nhà vệ sinh chung, phục vụ nhu cầu sinh hoạt hằng ngày. Xung quanh không gian trung tâm là 4 phòng ngủ được thiết kế riêng tư, trong đó phòng ngủ số 04 có diện tích rộng rãi hơn nên được bố trí thêm nhà vệ sinh khép kín bên trong, mang lại sự tiện nghi và thoải mái cho gia chủ.











