Với những gia đình ít người, một ngôi nhà không cần quá rộng lớn hay cầu kỳ nhưng vẫn phải đảm bảo đầy đủ tiện nghi và sự thoải mái trong sinh hoạt hằng ngày. Chính vì vậy, mẫu nhà cấp 4 mái Nhật 2 phòng ngủ đơn giản đang ngày càng được ưa chuộng nhờ thiết kế gọn gàng, công năng hợp lý và chi phí xây dựng vừa phải.
Mẫu nhà cấp 4 mái Nhật với 2 phòng ngủ đặc biệt phù hợp cho những gia đình có ít thành viên, như vợ chồng trẻ hoặc gia đình có người lớn tuổi. Không cần diện tích quá lớn, điều quan trọng nhất là cách bố trí không gian hợp lý để mang lại sự thoải mái và thuận tiện trong sinh hoạt hằng ngày.
Thiết kế tập trung vào công năng vừa đủ, tối ưu từng khu vực sử dụng nhằm đảm bảo sự tiện nghi và riêng tư cần thiết. Bên cạnh đó, kiến trúc mái Nhật thanh thoát kết hợp không gian sống gần gũi thiên nhiên còn tạo nên cảm giác bình yên, ấm cúng – giá trị cốt lõi mà mỗi ngôi nhà nên mang lại cho các thành viên trong gia đình.

Công trình sử dụng tông trắng làm gam màu chủ đạo, mang đến cảm giác sáng sủa, sạch sẽ và giúp tổng thể ngôi nhà trông rộng rãi hơn. Để tạo điểm nhấn, kiến trúc sư khéo léo kết hợp sắc xanh ở một số mảng tường mặt tiền, vừa tăng tính thẩm mỹ vừa tạo sự tươi mới, hài hòa với không gian xung quanh. Bên cạnh đó, các vật liệu hoàn thiện hiện đại như gạch thẻ ốp trang trí được sử dụng tại những vị trí phù hợp, giúp bề mặt công trình thêm sinh động và có chiều sâu. Sự phối hợp giữa màu sắc tinh tế và vật liệu bền đẹp không chỉ nâng cao giá trị thẩm mỹ mà còn đảm bảo độ bền theo thời gian.

Mẫu nhà cấp 4 mái Nhật được thiết kế theo phong cách hiện đại với bố cục hình khối vuông vức, đường nét dứt khoát tạo nên tổng thể cân đối và vững chãi. Hệ cột chính sử dụng cột vuông khỏe khoắn, không chỉ đảm bảo kết cấu chịu lực mà còn góp phần tăng tính thẩm mỹ cho mặt tiền công trình. Khu vực sảnh được bố trí bậc tam cấp theo đúng tỷ lệ phong thủy, tượng trưng cho Thiên – Địa – Nhân, mang ý nghĩa may mắn và hanh thông cho gia chủ. Đồng thời, nền nhà được đôn cao so với mặt sân nhằm hạn chế tình trạng ngập nước, chống ẩm và giúp không gian bên trong luôn khô ráo, sạch sẽ, đặc biệt phù hợp với điều kiện khí hậu tại Việt Nam.

Dù là mẫu nhà cấp 4 mái Nhật nhỏ gọn với 2 phòng ngủ, kiến trúc sư vẫn khéo léo bố trí thêm lối đi bên hông nhằm tăng tính linh hoạt trong sinh hoạt và cải thiện sự thông thoáng cho toàn bộ không gian. Khoảng trống này không chỉ đóng vai trò là đường lưu thông phụ mà còn giúp công trình “thở” tốt hơn, tránh cảm giác bí bách thường gặp ở nhà một tầng.
Bên cạnh đó, hệ cửa sổ và cửa phụ được mở về phía hông nhà để tận dụng tối đa nguồn sáng và gió tự nhiên. Nhờ giải pháp thiết kế này, các khu vực bên trong luôn sáng sủa, tiết kiệm điện năng vào ban ngày và tạo cảm giác rộng rãi hơn so với diện tích thực tế.

Phần mái Nhật của ngôi nhà cấp 4 này được tính toán kỹ lưỡng về độ dốc nhằm đảm bảo tính thẩm mỹ và khả năng thoát nước hiệu quả. Độ đua mái được thiết kế cân đối, vừa tạo sự thanh thoát cho tổng thể kiến trúc, vừa giúp che chắn tốt cho khu vực tường và cửa, hạn chế tác động trực tiếp của nắng mưa. Nhờ kết cấu mái có độ nghiêng hợp lý, nước mưa được thoát nhanh, giảm nguy cơ thấm dột và tăng tuổi thọ công trình. Bên cạnh đó, mái Nhật còn có ưu điểm ít phải bảo trì, phù hợp với nhu cầu sử dụng lâu dài, mang lại sự an tâm cho gia chủ trong quá trình sinh sống.


Mẫu nhà cấp 4 mái Nhật được đầu tư hệ thống cổng và tường bao kiên cố, tạo nên diện mạo bề thế ngay từ bên ngoài. Khu vực cổng chính nổi bật với hai trụ cột vuông vững chãi, vừa đảm bảo kết cấu chắc chắn vừa tăng tính thẩm mỹ cho mặt tiền. Cánh cổng sử dụng sắt hộp sơn tĩnh điện cao cấp, có khả năng chống gỉ sét, bền màu theo thời gian và phù hợp với điều kiện thời tiết khắc nghiệt. Phần tường bao được xây dựng bằng bê tông chắc chắn, kết hợp các khoảng thoáng được bố trí hợp lý nhằm tăng sự thông gió và tạo cảm giác nhẹ nhàng, không quá kín bưng.

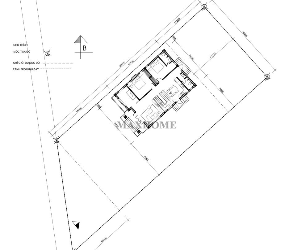
Dưới đây là hình ảnh mặt bằng định vị của mẫu nhà cấp 4 mái Nhật, cho thấy công trình được triển khai với kích thước xây dựng 9 x 14,8m. Với quy mô này, tổng diện tích sử dụng của ngôi nhà đạt khoảng 108m², đáp ứng tốt nhu cầu sinh hoạt cho gia đình ít thành viên. Bản vẽ định vị thể hiện rõ cách bố trí công trình trên khu đất, đảm bảo khoảng lùi hợp lý cho sân trước và lối đi xung quanh. Nhờ sự tính toán kỹ lưỡng về tỷ lệ xây dựng, ngôi nhà không chỉ cân đối về mặt kiến trúc mà còn đảm bảo sự thông thoáng, thuận tiện trong quá trình sử dụng lâu dài.

Với phương án bố trí toàn bộ công năng trên cùng một mặt sàn, việc di chuyển và sinh hoạt hằng ngày trở nên thuận tiện, đặc biệt phù hợp với gia đình có người lớn tuổi hoặc trẻ nhỏ. Từ cửa chính bước vào là không gian phòng khách được thiết kế thông thoáng, đóng vai trò trung tâm kết nối các khu vực chức năng. Tiếp đến là khu vực cầu thang dẫn lên tầng mái được sắp xếp gọn gàng để không ảnh hưởng đến diện tích sử dụng chung.
Phía sau là phòng bếp và khu vực ăn uống được bố trí liền kề, đảm bảo sự ấm cúng và thuận tiện trong quá trình sử dụng. Nhà vệ sinh chung đặt cạnh bên ở vị trí hợp lý, dễ tiếp cận nhưng vẫn đảm bảo sự kín đáo. Khu vực thờ cúng được bố trí ở phía trước nhà, tại vị trí trang trọng và yên tĩnh, thể hiện sự tôn nghiêm theo truyền thống của người Việt. Hai phòng ngủ được sắp xếp cạnh nhau nhằm tối ưu diện tích, trong đó phòng ngủ 02 được thiết kế thêm nhà vệ sinh khép kín bên trong, mang lại sự riêng tư và tiện nghi cho người sử dụng. Tổng thể mặt bằng được tính toán khoa học, đảm bảo sự hài hòa giữa công năng và yếu tố phong thủy.












