Giao bản vẽ nhà cấp 4 tân cổ siêu đẹp tới tận tay chủ nhà ở Sóc Trăng | MH05679
| Chủ đầu tư: Chú Quách Kim Chi | Số tầng: 1 |
| Địa chỉ: Thuận Hưng, Mỹ Tú, Sóc Trăng | Diện tích xây dựng: 9 x 14,8m |
| Loại hình: Nhà mái Nhật tân cổ điển | Tổng diện tích: 137m2 |
| Công năng:
Phòng khách, phòng thờ, phòng bếp, 3 phòng ngủ, 1 phòng tắm, 1 wc |
|
Maxhome vừa dừng chân tại vùng đất Sóc Trăng để bàn giao hồ sơ thiết kế cho gia đình chú Chi. Mẫu nhà cấp 4 tân cổ này là công trình nhà ở kết tinh giữa vẻ đẹp quý phái của kiến trúc cổ điển châu Âu và sự thanh thoát, tiện nghi của phong cách hiện đại. Đây đều là tâm huyết của đội ngũ thiết kế Maxhome trong việc xử lý từng đường nét hình khối và màu sắc kết hợp nhu cầu của chủ nhà để ra phương án tốt nhất.
Mẫu nhà cấp 4 tân cổ này có khu vực sảnh chính được thiết kế vô cùng kỳ công và bề thế. Cặp trụ cột vuông to bản nâng đỡ hệ mái sảnh tạo cảm giác vững chãi và được trang trí bằng những đường chỉ dọc tinh xảo, một nét đặc trưng không thể thiếu của ngôn ngữ kiến trúc tân cổ điển. Vòm bán nguyệt tại sảnh chính được uốn cong mềm mại giúp giảm bớt sự thô cứng của các hình khối vuông vức rất thanh thoát và quyến rũ.

Hệ bậc tam cấp được ốp đá Granite vân mây đen bóng sang trọng giúp nâng cao cốt nền nhà 750mm so với sân vườn để tránh ẩm mốc mà còn thể hiện sự hiếu khách của gia chủ ngay từ lối vào đầu tiên. Tại các vị trí đầu cột, Maxhome đã khéo léo lắp đặt hệ đèn tường mang phong cách cổ điển, hứa hẹn sẽ mang đến một không gian lung linh, huyền ảo khi màn đêm buông xuống.

Bên cạnh những đường nét phào chỉ tỉ mỉ, ngôi nhà cấp 4 tân cổ tại Sóc Trăng còn gây ấn tượng bởi cách sử dụng vật liệu xây dựng hiện đại một cách thông minh. Toàn bộ hệ thống cửa chính và cửa sổ được sử dụng nhôm hệ Xingfa kết hợp với kính cường lực cao cấp. Việc sử dụng diện tích kính lớn không chỉ giúp đón trọn ánh sáng tự nhiên vào mọi ngóc ngách trong nhà mà còn tạo ra những góc nhìn đẹp mắt ra phía sân vườn, giúp con người xích lại gần hơn với thiên nhiên. Ngoài ra, ở phía dưới chân tường của ngôi nhà cấp 4 được ốp đá rối màu xám đậm đóng vai trò bảo vệ lớp tường gạch bên trong khỏi tác động của thời tiết, chống thấm, chống rêu mốc và tạo nên một cái đế vững chãi, khỏe khoắn cho toàn bộ công trình.


Quan sát từ trên cao, ngôi nhà cấp 4 tân cổ của gia đình chú Chi hiện lên rực rỡ với hệ mái Nhật màu xám đậm sang trọng, hệ mái được thiết kế theo dạng đa tầng, có độ dốc vừa phải giúp thoát nước mưa nhanh chóng và tạo ra một lớp đệm không khí cách nhiệt hoàn hảo cho không gian nội thất bên dưới. Những đỉnh mái được điểm xuyết bởi các cột thu lôi kim loại thanh mảnh vừa đảm bảo an toàn kỹ thuật vừa tăng thêm vẻ uy nghi cho tổng thể công trình. Sự kết hợp giữa tông màu trắng sứ chủ đạo của diện tường và sắc trầm của mái ngói tạo nên một hiệu ứng thị giác tương phản mạnh mẽ nhưng vẫn vô cùng hài hòa, giúp mẫu nhà đẹp luôn nổi bật giữa không gian xanh mướt của vùng quê Sóc Trăng.

Để hoàn thiện vẻ đẹp của một công trình đẳng cấp, Maxhome không quên chăm chút cho hệ thống tường rào và cổng chính. Hàng rào được thiết kế theo lối mở với các nan sắt mỹ thuật sơn tĩnh điện đen giúp không gian bên trong luôn thông thoáng mà vẫn đảm bảo tính bảo mật và riêng tư cần thiết. Các trụ rào trắng tinh khôi được thiết kế đồng nhất với kiến trúc nhà chính mang tới một tổng thể khép kín và bề thế. Cánh cổng chính bằng gỗ kết hợp kim loại với những đường nét khỏe khoắn chính là mảnh ghép cuối cùng biến ngôi nhà chú Chi trở thành một dinh thự thu nhỏ giữa lòng Sóc Trăng.

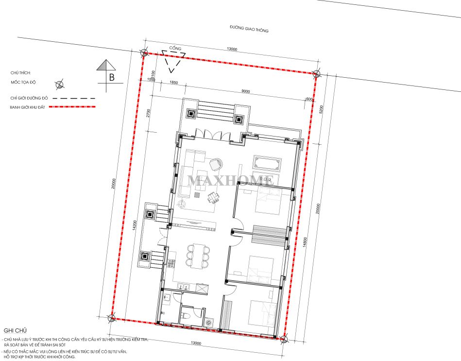
Dựa trên bản vẽ mặt bằng định vị, ngôi nhà cấp 4 tân cổ của gia đình chú Chi được quy hoạch cực kỳ khoa học trên khuôn viên đất rộng khoảng 13x20m. Với kích thước xây dựng nhà 9×14,8m, Maxhome đã khéo léo đặt công trình lùi về phía sau, ưu tiên khoảng sân trước rộng rãi để làm gara và khu vực vui chơi giúp ngôi nhà có khoảng lùi cần thiết để phô diễn trọn vẹn vẻ đẹp của hệ mái Nhật và sảnh chính bề thế.

Về mặt công năng bên trong, mẫu nhà cấp 4 tân cổ này gây ấn tượng mạnh bởi cách phân chia không gian thông minh và đáp ứng hoàn hảo nhu cầu sinh hoạt của gia đình của chú Chi. Trục sinh hoạt chung được thiết kế mở với phòng khách rộng 29m2 liên thông với khu vực bếp 21,5m2 tạo nên một không gian rộng lớn, thoáng đãng ngay từ khi bước qua cửa chính. Phòng thờ 12,8m2 được đặt ở vị trí tôn nghiêm nhất hướng ra mặt tiền theo đúng phong thủy truyền thống, trong khi dãy 3 phòng ngủ có đồng diện tích 14,5m2 được bố trí kín đáo dọc theo một phía của ngôi nhà để đảm bảo sự yên tĩnh và riêng tư tuyệt đối.











