Giới thiệu mẫu nhà 2 tầng mái Nhật vừa ở vừa kinh doanh tiện lợi | MH05555
| Chủ đầu tư: Anh Lê Anh Tú | Số tầng: 2 |
| Địa chỉ: Thượng Bằng La, Lào Cai | Diện tích xây dựng: 9,4 x 20,5m |
| Loại hình: Nhà mái Nhật hiện đại | Tổng diện tích: 250m2 |
Công năng:
|
|
Trong bối cảnh nhu cầu kết hợp nhà ở với kinh doanh ngày càng phổ biến, những mẫu nhà 2 tầng mái Nhật đang trở thành lựa chọn lý tưởng cho nhiều gia đình. Không chỉ mang vẻ đẹp hiện đại, thanh thoát, mẫu nhà đẹp này còn tối ưu công năng sử dụng, đáp ứng trọn vẹn nhu cầu sinh hoạt và buôn bán ngay tại nhà. Thiết kế tinh tế, mặt tiền sang trọng cùng không gian bố trí khoa học giúp mẫu nhà này vừa tạo nên tổ ấm tiện nghi, vừa mở ra cơ hội kinh doanh thuận lợi, khẳng định gu thẩm mỹ cũng như tầm nhìn của gia chủ.
Mẫu nhà 2 tầng mái Nhật được thiết kế theo phong cách hiện đại, đáp ứng nhu cầu vừa ở vừa kinh doanh. Tầng 1 được dành riêng cho không gian buôn bán nên mặt tiền được ốp đá Granite cao cấp, tạo vẻ sang trọng và bền bỉ theo thời gian. Chất liệu đá không chỉ nâng tầm thẩm mỹ mà còn giúp khu vực kinh doanh trở nên nổi bật, thu hút ánh nhìn và khẳng định sự chuyên nghiệp của gia chủ.

Ngôi nhà 2 tầng mái Nhật được kiến trúc sư Maxhome cùng gia chủ thống nhất lựa chọn gam màu trắng tinh khôi làm chủ đạo, qua đó tôn lên vẻ nổi bật của phần mái Nhật lợp ngói xanh sang trọng. Trên nền trắng ấy, những đường kẻ chỉ chạy quanh mảng tường vừa tạo điểm nhấn tinh tế, vừa giúp tổng thể công trình trở nên hài hòa và cuốn hút hơn. Sự kết hợp màu sắc khéo léo này không chỉ mang lại nét hiện đại mà còn khẳng định gu thẩm mỹ tinh tế của gia chủ.

Cửa chính của ngôi nhà 2 tầng mái Nhật được lắp đặt hệ thống cửa cuốn hiện đại, vừa đảm bảo an toàn vừa thuận tiện cho việc kinh doanh. Các hệ cửa còn lại sử dụng nhôm Xingfa cao cấp kết hợp kính cường lực trong suốt, giúp không gian bên trong luôn tràn ngập ánh sáng tự nhiên và tạo cảm giác thoáng đãng. Thiết kế này không chỉ mở rộng tầm nhìn ra khuôn viên bên ngoài mà còn mang đến sự kết nối hài hòa giữa nội thất và cảnh quan, góp phần nâng cao giá trị thẩm mỹ cũng như tiện nghi cho ngôi nhà.

Phía sau ngôi nhà 2 tầng mái Nhật được thiết kế một khoảng không gian thoáng rộng, tạo sự lưu thông không khí và mang lại sự thoải mái cho sinh hoạt hằng ngày. Khu vực này được lắp đặt hệ thống song sắt sơn tĩnh điện chắc chắn, vừa đảm bảo độ bền, chống gỉ sét, vừa an toàn trong quá trình sử dụng. Đây cũng là vị trí lý tưởng để bố trí khu phơi phóng quần áo, giúp đồ giặt nhanh khô, gọn gàng và giữ cho không gian sống phía trong luôn sạch sẽ, ngăn nắp.

Từ góc nhìn trên cao, dễ dàng nhận thấy tầng 2 được thiết kế một khoảng ban công rộng rãi, thoáng đãng. Tại đây, gia chủ có thể bố trí bộ bàn trà nhỏ xinh để thưởng thức cà phê, ngắm cảnh hay thư giãn cùng người thân. Ban công được bao quanh bởi lan can sắt sơn mỹ thuật tinh tế, vừa đảm bảo an toàn vừa góp phần tôn lên nét thẩm mỹ sang trọng cho tổng thể ngôi nhà. Đây thực sự là không gian lý tưởng để tận hưởng những giây phút nghỉ ngơi yên bình giữa đời sống đô thị.

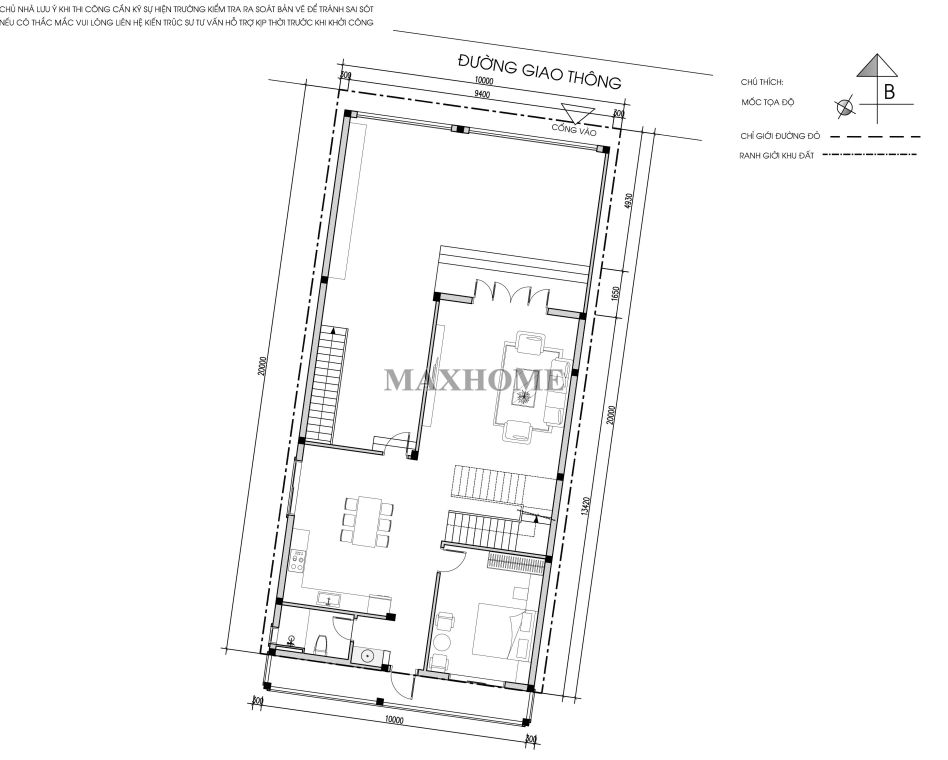
Công trình nhà 2 tầng mái Nhật được xây dựng gần trục đường chính, thuận tiện cho việc kinh doanh và giao thương. Ngôi nhà sở hữu diện tích mặt tiền 9,4m và chiều sâu 20,5m, mang lại sự cân đối về hình khối kiến trúc. Với tổng diện tích sử dụng khoảng 250m², công trình không chỉ đảm bảo đầy đủ công năng sinh hoạt cho gia đình mà còn tối ưu không gian dành riêng cho hoạt động kinh doanh, tạo nên một tổ ấm hiện đại, tiện ích và phù hợp với nhu cầu thực tế.

Khu vực phía trước ngôi nhà được bố trí làm không gian kinh doanh tiện lợi, đáp ứng nhu cầu buôn bán của gia chủ. Bước vào sảnh chính là phòng khách rộng rãi, thiết kế sang trọng, là nơi tiếp đón khách và sinh hoạt chung của cả gia đình. Liền kề đó là phòng bếp kết hợp phòng ăn thoáng mát, được bố trí cửa sổ bên hông giúp lưu thông không khí và đón ánh sáng tự nhiên. Cuối nhà là một phòng ngủ yên tĩnh, đảm bảo sự riêng tư, cùng với một nhà vệ sinh chung thuận tiện cho việc sử dụng hằng ngày.

Tầng 2 được bố trí hợp lý với một phòng thờ trang nghiêm đặt ở vị trí yên tĩnh, thuận lợi cho việc thờ cúng tổ tiên. Bao quanh là 3 phòng ngủ dành cho các thành viên trong gia đình, mỗi phòng đều có cửa sổ thông thoáng để đón gió và ánh sáng tự nhiên, mang lại cảm giác thoải mái khi nghỉ ngơi. Cuối tầng là một nhà vệ sinh chung, được thiết kế đầy đủ tiện nghi để phục vụ nhu cầu sinh hoạt hằng ngày của cả gia đình.












