Gợi ý thiết kế nhà 2 tầng 1 tum mái bằng đẹp, phù hợp mọi diện tích đất | MH05529
| Chủ đầu tư: Anh Trịnh Văn Lương | Số tầng: 2 tầng 1 tum |
| Địa chỉ: Phường Tứ Minh, TP. Hải Phòng | Diện tích xây dựng: 8,3 x 13,8m |
| Loại hình: Nhà mái bằng hiện đại | Tổng diện tích: 230m2 |
Công năng:
|
|
Những năm gần đây, mẫu nhà 2 tầng 1 tum mái bằng đẹp đang trở thành lựa chọn hàng đầu của nhiều gia chủ yêu thích phong cách hiện đại. Với đường nét vuông vức, bố cục gọn gàng cùng thiết kế tối giản mà tinh tế, mẫu nhà này không chỉ mang đến vẻ đẹp sang trọng mà còn tối ưu tối đa công năng sử dụng. Mời bạn cùng tham khảo mẫu nhà đẹp dưới đây nhé!
Nhà hiện đại hiện nay đang trở thành lựa chọn hàng đầu của nhiều gia chủ nhờ thiết kế đơn giản, tối ưu không gian và phù hợp với đặc điểm của các khu đất tại khu vực trung tâm. Với lợi thế về diện tích mặt tiền vừa phải, kiểu nhà này dễ dàng đáp ứng nhu cầu sinh hoạt của các gia đình hiện đại, đồng thời vẫn đảm bảo tính thẩm mỹ và công năng sử dụng. Bên cạnh đó, nhà phố còn có khả năng linh hoạt trong thiết kế – từ phong cách hiện đại, tân cổ điển cho đến tối giản – giúp gia chủ dễ dàng thể hiện cá tính và gu thẩm mỹ riêng.

Ngôi nhà 2 tầng 1 tum được thiết kế với gam màu trắng làm chủ đạo, mang đến vẻ đẹp tinh tế và hiện đại. Màu trắng không chỉ giúp không gian trở nên sáng sủa, thoáng đãng hơn mà còn dễ dàng kết hợp với nhiều vật liệu và màu sắc khác. Nổi bật trong tổng thể là phần trần được ốp gỗ nhựa sang trọng, tạo điểm nhấn ấm cúng và tự nhiên. Bên cạnh đó, tầng 2 được phối thêm gam màu ghi trang nhã, giúp cân bằng tổng thể màu sắc, tạo chiều sâu và tăng thêm nét thanh lịch cho ngôi nhà.

Ngôi nhà 2 tầng 1 tum được thiết kế với bậc tam cấp, giúp công trình trở nên cao ráo và bề thế hơn so với mặt đường, đồng thời tạo cảm giác sang trọng ngay từ phần sảnh chính. Toàn bộ chân tường được ốp đá chẻ tự nhiên, không chỉ tăng tính thẩm mỹ mà còn giúp bảo vệ tường khỏi bụi bẩn, rêu mốc và tác động của thời tiết. Nhờ đó, ngôi nhà luôn giữ được vẻ sạch sẽ, bền đẹp theo thời gian và dễ dàng trong việc vệ sinh, bảo dưỡng.

Toàn bộ ngôi nhà 2 tầng 1 tum được thiết kế tận dụng tối đa hệ thống cửa sổ, giúp không gian luôn thông thoáng và tràn ngập ánh sáng tự nhiên. Các khung cửa được làm từ nhôm hệ Xingfa cao cấp, kết hợp với kính cường lực dày, mang lại độ bền vượt trội, khả năng cách âm – cách nhiệt tốt và tính thẩm mỹ cao. Sự kết hợp này không chỉ tạo điểm nhấn hiện đại cho ngoại thất mà còn góp phần nâng cao chất lượng không gian sống, giúp gia chủ luôn cảm nhận được sự thoải mái và gần gũi với thiên nhiên.

Nhà 2 tầng 1 tum được thiết kế với một ban công lớn mang phong cách mở, giúp không gian luôn thoáng đãng và đón nhận được nhiều ánh sáng tự nhiên. Khu vực này không chỉ hỗ trợ lưu thông không khí, mang lại sự mát mẻ và thoải mái cho các thành viên trong gia đình, mà còn là nơi lý tưởng để thư giãn, ngắm cảnh hoặc trồng cây xanh.

Ngôi nhà sử dụng hệ mái bằng hiện đại, toàn bộ bề mặt được xử lý chống thấm kỹ lưỡng bằng các vật liệu chuyên dụng, đảm bảo khả năng chống dột và thoát nước hiệu quả trong mọi điều kiện thời tiết. Hệ thống thoát nước được bố trí khoa học, giúp ngăn tình trạng ứ đọng nước mưa, bảo vệ kết cấu công trình bền vững theo thời gian. Nhờ vậy, gia chủ có thể hoàn toàn yên tâm về độ an toàn, độ bền cũng như tính thẩm mỹ của ngôi nhà.

Cổng của ngôi nhà 2 tầng 1 tum được thiết kế theo phong cách hiện đại, đồng bộ với tổng thể kiến trúc của công trình. Cánh cổng làm từ sắt sơn tĩnh điện chắc chắn, có độ bền cao, kết hợp với các nan gỗ trang trí ở giữa, tạo điểm nhấn sang trọng và ấm áp. Phần tường bao được xây bằng bê tông kiên cố, vừa đảm bảo tính an toàn, riêng tư cho gia đình, vừa góp phần tôn lên vẻ đẹp bề thế và tinh tế cho không gian mặt tiền của ngôi nhà.

Dựa trên bản vẽ mặt bằng định vị, có thể nhận thấy khuôn viên đất được quy hoạch vuông vắn và hợp lý, tối ưu cho việc xây dựng. Ngôi nhà 2 tầng 1 tum được thiết kế với kích thước 8,3 x 13,8m, tạo nên một không gian rộng rãi và cân đối. Tổng diện tích sử dụng khoảng 230m², đáp ứng đầy đủ nhu cầu sinh hoạt của gia đình nhiều thế hệ.

Từ cửa chính bước vào là không gian phòng khách rộng rãi, tràn ngập ánh sáng tự nhiên nhờ hệ thống cửa chính lớn kết hợp với cửa phụ bên hông, tạo cảm giác thông thoáng và dễ chịu. Khu vực bếp – ăn được bố trí ở cuối nhà, thiết kế theo dạng tủ bếp chữ L tiện nghi, giúp tối ưu diện tích và mang lại sự gọn gàng, hiện đại cho không gian nấu nướng. Ngoài ra, tầng 1 còn có một phòng ngủ được thiết kế khép kín, đảm bảo sự riêng tư và thuận tiện cho người sử dụng. Cuối nhà là nhà vệ sinh chung, được sắp xếp hợp lý, thuận tiện cho việc sinh hoạt hằng ngày của các thành viên trong gia đình.

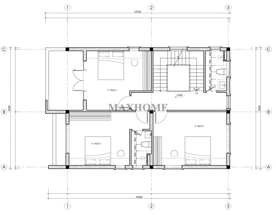
Tầng 2 được bố trí làm không gian nghỉ ngơi riêng tư với tổng cộng 3 phòng ngủ, mang lại sự thoải mái và tiện nghi cho các thành viên trong gia đình. Trong đó, phòng ngủ số 02 được thiết kế có nhà vệ sinh khép kín bên trong, đặt trùng với vị trí hộp gen kỹ thuật của khu vệ sinh tầng 1 để đảm bảo tính thẩm mỹ và thuận tiện trong lắp đặt hệ thống cấp thoát nước. Ngoài ra, một nhà vệ sinh chung được bố trí hợp lý ở cuối hành lang, ngay cạnh khu vực cầu thang, giúp việc di chuyển và sử dụng trở nên dễ dàng hơn.

Tầng tum được bố trí hợp lý với không gian phòng thờ trang nghiêm, đảm bảo yếu tố phong thủy và mang lại sự yên tĩnh, linh thiêng cho gia chủ. Bên cạnh khu vực cầu thang là khu giặt phơi nhỏ gọn, thuận tiện cho việc sinh hoạt hằng ngày. Phía ngoài là sân chơi rộng rãi, thoáng mát – nơi gia đình có thể trồng thêm cây xanh, đặt bàn trà hoặc tạo một góc thư giãn ngoài trời lý tưởng, vừa giúp điều hòa không khí vừa mang lại không gian sống gần gũi với thiên nhiên.












