Khám phá mẫu nhà cấp 4 mái bằng hiện đại đơn giản mà sang | MH05905
| Chủ đầu tư: Anh Nguyễn Văn Hoài | Số tầng: 1 |
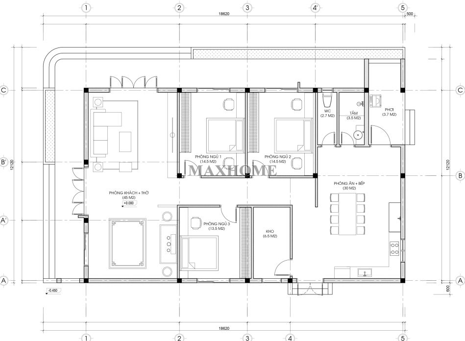
| Địa chỉ: Thiên Cầm, Hà Tĩnh | Diện tích xây dựng: 12,1 x 18,6m |
| Loại hình: Nhà mái bằng hiện đại | Tổng diện tích: 170m2 |
| Công năng:
Phòng khách, phòng thờ, phòng bếp ăn, 3 phòng ngủ, phòng kho, 1 wc, phòng tắm |
|
Mẫu nhà cấp 4 mái bằng hiện đại đang dần trở thành lựa chọn ưu tiên của nhiều gia chủ nhờ thiết kế tối giản, chi phí xây dựng hợp lý nhưng vẫn đảm bảo công năng sử dụng và tính thẩm mỹ lâu dài. Với hình khối kiến trúc gọn gàng, đường nét dứt khoát cùng cách bố trí không gian khoa học, mẫu nhà này mang đến cảm giác thông thoáng, tiện nghi và phù hợp với nhiều diện tích đất khác nhau. Đây cũng là giải pháp nhà ở lý tưởng cho các gia đình trẻ hoặc những gia chủ yêu thích phong cách sống hiện đại, bền vững theo thời gian.
Giữa nhịp sống hối hả và nhiều áp lực, mỗi người đều mong muốn có một không gian để trở về, tìm lại sự cân bằng và bình yên. Mẫu nhà cấp 4 mái bằng hiện đại với hình khối vuông vắn, đường nét gọn gàng đang là xu hướng được nhiều gia chủ yêu thích bởi vẻ đẹp tinh tế và công năng tiện nghi. Thấu hiểu nhu cầu đó, đội ngũ kiến trúc sư Maxhome đã thiết kế nên không gian sống ấn tượng, hài hòa giữa thẩm mỹ và tiện ích cho gia đình anh Hoài tại Hà Tĩnh, mang đến một tổ ấm hiện đại, thoáng đãng.

Mẫu nhà cấp 4 mái bằng hiện đại không chỉ gây ấn tượng bởi những đường nét vuông vắn, khỏe khoắn mà còn được khéo léo kết hợp với các góc bo tròn mềm mại, tạo nên sự cân bằng hài hòa giữa mạnh mẽ và tinh tế. Gam màu trắng được lựa chọn làm màu sắc chủ đạo, giúp tổng thể công trình trở nên sáng sủa, thanh lịch, đồng thời làm nổi bật đường viền màu cam tạo điểm nhấn trẻ trung, cá tính. Bên cạnh đó, toàn bộ mặt tiền được ốp gạch granit cao cấp bao quanh, không chỉ nâng cao giá trị thẩm mỹ mà còn giúp bảo vệ công trình bền đẹp theo thời gian và dễ dàng vệ sinh, bảo dưỡng.

Mẫu nhà cấp 4 mái bằng hiện đại được thiết kế 3 bậc tam cấp cao ráo, giúp công trình thoát ẩm tốt và tạo sự bề thế ngay từ khu vực lối vào. Mỗi bậc tam cấp đều được ốp đá granit màu đen vân mây trắng sang trọng, không chỉ mang lại vẻ đẹp tinh tế mà còn đảm bảo độ bền, khả năng chống trơn trượt và dễ vệ sinh. Hệ đá ốp được thi công liên tục từ sảnh chính kéo dài sang sảnh phụ, tạo sự đồng bộ về thẩm mỹ, đồng thời tăng tính kết nối giữa các không gian tiếp cận của ngôi nhà.

Với định hướng thiết kế hiện đại, mẫu nhà cấp 4 được bố trí hệ cửa sổ kính xung quanh công trình, giúp tăng cường khả năng đón sáng, thông gió tự nhiên và tạo sự kết nối hài hòa giữa không gian trong nhà với cảnh quan bên ngoài. Đặc biệt, các ô cửa sổ được tạo hình vòm cong mềm mại, vừa làm giảm cảm giác cứng nhắc của kiến trúc vuông vức, vừa mang đến nét duyên dáng, tinh tế, góp phần nâng cao giá trị thẩm mỹ cho tổng thể ngôi nhà.

Điểm nhấn đặc biệt của mẫu nhà cấp 4 mái bằng hiện đại nằm ở khu vực phía sau được bố trí cầu thang xoắn độc đáo, vừa đóng vai trò kết nối không gian vừa tạo dấu ấn kiến trúc ấn tượng. Thiết kế cầu thang xoắn không chỉ giúp tiết kiệm diện tích, phù hợp với nhà cấp 4 hiện đại, mà còn mang lại vẻ đẹp mềm mại, phá vỡ sự đơn điệu của các khối kiến trúc thẳng. Đồng thời, chi tiết này còn mở ra khả năng tiếp cận sân thượng hoặc không gian sử dụng phía trên một cách thuận tiện và linh hoạt.

Phần mái của ngôi nhà hiện đại được thiết kế theo kiểu mái bằng phẳng, vuông vức, tạo nên tổng thể kiến trúc gọn gàng và mạnh mẽ. Kiểu mái này không chỉ phù hợp với phong cách hiện đại mà còn giúp tối ưu khả năng chịu lực, chống thấm hiệu quả, đồng thời thuận tiện cho việc bố trí sân thượng, hệ thống kỹ thuật hoặc nâng tầng trong tương lai. Nhờ đó, công trình vừa đảm bảo tính thẩm mỹ, vừa đáp ứng tốt nhu cầu sử dụng lâu dài của gia chủ.

Công trình nhà cấp 4 mái bằng hiện đại sở hữu khuôn viên đất đẹp, với lợi thế giáp hai mặt đường giao thông, giúp việc di chuyển thuận tiện và tăng độ thông thoáng cho tổng thể không gian sống. Ngôi nhà được xây dựng với kích thước 12,1 x 18,6m, được quy hoạch hợp lý trên khu đất, đảm bảo sự cân đối giữa diện tích xây dựng và các khoảng mở xung quanh. Tổng diện tích sử dụng khoảng 170m², đáp ứng đầy đủ nhu cầu sinh hoạt của gia đình, đồng thời tạo điều kiện bố trí công năng khoa học, tiện nghi và thoải mái trong quá trình sử dụng lâu dài.

Từ sảnh chính bước vào là khu vực phòng khách kết hợp phòng thờ được bố trí trang nghiêm, tạo không gian sinh hoạt chung ấm cúng và phù hợp yếu tố phong thủy. Di chuyển về phía cuối nhà là khu vực bếp kết hợp phòng ăn, được thiết kế thông thoáng và có lối tiếp cận ra sảnh phụ, giúp tăng cường khả năng thông gió và lấy sáng tự nhiên. Không gian nghỉ ngơi được bố trí xung quanh gồm 3 phòng ngủ, đảm bảo sự riêng tư và thuận tiện trong sinh hoạt hằng ngày. Bên cạnh đó, công trình còn có 1 phòng kho phục vụ nhu cầu lưu trữ, cùng khu vệ sinh và phòng tắm chung đặt cuối nhà, được sắp xếp hợp lý, gọn gàng và dễ sử dụng.












