Khám phá mẫu nhà cấp 4 mái Nhật tân cổ điển đẹp sang, chi phí tiết kiệm | MH05941
| Chủ đầu tư: Anh Đặng Ngọc Thanh | Số tầng: 1 |
| Địa chỉ: Hùng Lợi, Tuyên Quang | Diện tích xây dựng: 10 x 18,4m |
| Loại hình: Nhà mái Nhật tân cổ điển | Tổng diện tích: 150m2 |
| Công năng:
Phòng khách, phòng thờ, phòng bếp, phòng kho, 3 phòng ngủ, 3 wc |
|
Nhà cấp 4 mái Nhật tân cổ điển ngày càng được nhiều gia đình Việt lựa chọn bởi vẻ đẹp trang nhã, sang trọng nhưng vẫn giữ được sự gần gũi, hài hòa với thiên nhiên. Công trình do Maxhome thiết kế cho gia đình anh Thanh tại Tuyên Quang là sự kết hợp tinh tế giữa ngôn ngữ kiến trúc tân cổ điển chuẩn mực và không gian sân vườn rộng mở, thoáng đãng. Tổng thể ngôi nhà nổi bật với hình khối cân xứng, hệ mái Nhật thanh thoát, tạo nên một công trình bền đẹp, giá trị lâu dài theo thời gian.
Mẫu nhà cấp 4 tân cổ điển gây ấn tượng bởi dáng mái Nhật nhẹ nhàng, cân đối, giúp tổng thể công trình trở nên cao ráo, bề thế mà vẫn rất mềm mại. Kiến trúc ngoại thất được chăm chút từ màu sắc đến vật liệu, ưu tiên các dòng vật liệu cao cấp nhằm đảm bảo giá trị thẩm mỹ lâu dài. Sự kết hợp hài hòa giữa bố cục hiện đại, không gian mở và những chi tiết tân cổ điển tinh giản đã tạo nên một diện mạo sang trọng, cuốn hút ngay từ ánh nhìn đầu tiên.

Mặt tiền ngôi nhà cấp 4 mái Nhật tân cổ điển rộng rãi nổi bật với hệ trụ cột vuông vững chãi, nâng đỡ phần sảnh vòm cong mềm mại, kết hợp phào chỉ trang trí được xử lý gọn gàng, tinh tế, tạo nên tổng thể cân đối và cuốn hút.
Tại vị trí trung tâm sảnh, chiếc đèn chùm được bố trí khéo léo, tỏa ánh sáng ấm áp, góp phần làm nổi bật vẻ sang trọng và tăng chiều sâu thẩm mỹ cho không gian ngoại thất. Bên cạnh đó, hệ tam cấp giúp công trình trở nên cao ráo, bề thế hơn, kết hợp chân tường ốp đá màu xám tro vừa tạo cảm giác vững chắc, khỏe khoắn vừa nâng cao độ bền và khả năng bảo vệ ngôi nhà theo thời gian.

Toàn bộ hệ thống cửa của ngôi nhà được sử dụng nhôm kính Xingfa cao cấp với thiết kế kích thước lớn, góp phần tôn vinh vẻ đẹp không gian nội thất bên trong. Dòng vật liệu nhôm kính Xingfa nhập khẩu không chỉ mang lại độ bền chắc, tính thẩm mỹ cao mà còn giúp ngôi nhà đón tối đa ánh sáng tự nhiên và tăng cường khả năng thông gió. Nhờ đó, không gian sống luôn thông thoáng, dễ chịu và giúp gia đình tiết kiệm năng lượng một cách hiệu quả.

Công trình sử dụng gam trắng chủ đạo, mang lại cảm giác thanh thoát, yên bình và giúp không gian sống luôn nhẹ nhàng, dễ chịu. Màu trắng vốn là lựa chọn lý tưởng cho phong cách tân cổ điển, không chỉ làm nổi bật hình khối kiến trúc mà còn tôn vinh sự tinh tế trong từng chi tiết của ngôi nhà cấp 4 mái Nhật.
Trên nền màu trắng ấy, sự kết hợp hài hòa giữa ánh đèn vàng ấm, mái Nhật xanh nhã nhặn, đá tự nhiên gam xám cùng hệ cửa nhôm Xingfa màu đen đã tạo nên chiều sâu thẩm mỹ, góp phần khẳng định vẻ đẹp sang trọng và đẳng cấp bền vững theo thời gian.


Cây xanh được sắp xếp khéo léo, phân bổ hài hòa giúp không gian luôn mát mẻ, đồng thời tạo chiều sâu thẩm mỹ và điểm nhấn sinh động cho khu vườn. Sắc xanh thiên nhiên kết hợp cùng kiến trúc ngôi nhà mang đến một tổng thể hài hòa, tươi mới và tràn đầy sức sống. Đây là không gian lý tưởng để các thành viên trong gia đình thư giãn, gác lại những bộn bề thường nhật và tận hưởng sự bình yên trong từng khoảnh khắc.

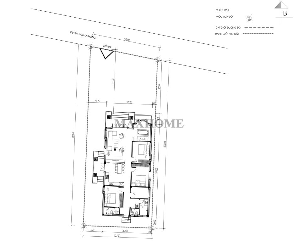
Dựa trên mặt bằng định vị tổng thể, ngôi nhà cấp 4 mái Nhật tân cổ điển được quy hoạch theo hướng Đông Bắc, đảm bảo sự thông thoáng và yếu tố phong thủy hài hòa.
Công trình sở hữu kích thước xây dựng 10 x 18,4m cân đối, phù hợp với quỹ đất và nhu cầu sử dụng thực tế của gia đình. Với tổng diện tích sử dụng khoảng 150m², không gian bên trong được sắp xếp khoa học, chú trọng tính tiện nghi, thoải mái và tối ưu công năng cho sinh hoạt hằng ngày của gia chủ.

Từ sảnh chính tiến vào là không gian phòng khách sang trọng với nội thất hiện đại, thể hiện gu thẩm mỹ tinh tế và sự hiếu khách của chủ nhà. Liên thông với phòng khách về bên phải nhà là phòng thờ trang nghiêm, với hướng bàn thờ đặt thẳng hướng mặt tiền giúp gia tăng sinh khí, thu hút tài lộc. Sau phòng khách là khu bếp ăn sạch sẽ và tiện nghi, kết nối với sảnh phụ giúp lưu thông không khí, tránh ám mùi thức ăn và tạo sự thuận tiện khi di chuyển.

Ngôi nhà được bố trí ba phòng ngủ rộng rãi với thiết kế nội thất hiện đại, đáp ứng đầy đủ nhu cầu sinh hoạt và nghỉ ngơi của các thành viên trong gia đình. Trong đó, phòng ngủ số 4 được thiết kế khép kín với nhà vệ sinh riêng, mang lại sự tiện nghi và riêng tư. Bên cạnh đó, công trình còn có thêm hai nhà vệ sinh chung cùng một phòng kho lưu trữ đồ đạc, góp phần tối ưu công năng và đảm bảo sinh hoạt hằng ngày luôn thuận tiện, gọn gàng.











