Khám phá thiết kế nhà cấp 4 mái Nhật 4 phòng ngủ đẹp, khoa học | MH05583
| Chủ đầu tư: Chú Nguyễn Ngọc Luyện | Số tầng: 1 |
| Địa chỉ: Hà Trung, Thanh Hoá | Diện tích xây dựng: 14 x 10,5m |
| Loại hình: Nhà mái Nhật hiện đại | Tổng diện tích: 145m2 |
| Công năng:
Phòng khách, phòng thờ, phòng bếp ăn, 4 phòng ngủ, 2 wc, 1 phòng tắm |
|
Trong những năm gần đây, nhà cấp 4 mái Nhật trở thành xu hướng thiết kế được nhiều gia đình lựa chọn nhờ tính thẩm mỹ cao, công năng linh hoạt và chi phí xây dựng hợp lý. Đặc biệt, với những gia đình đông thành viên, mẫu nhà cấp 4 mái Nhật 4 phòng ngủ chính là giải pháp lý tưởng khi vừa đảm bảo không gian sinh hoạt chung, vừa tạo sự riêng tư thoải mái cho từng cá nhân. Mẫu thiết kế nhà đẹp là một gợi ý tiêu biểu, mang phong cách hiện đại, tiện nghi và phù hợp với lối sống của nhiều gia đình Việt.
Mẫu nhà cấp 4 mái Nhật được thiết kế theo phong cách hiện đại, tinh gọn, mang đến vẻ đẹp thanh thoát và sang trọng. Với lợi thế mặt tiền rộng 14m, công trình dễ dàng phô diễn được sự bề thế và cân đối trong tổng thể kiến trúc. Các chi tiết ngoại thất được xử lý tối giản nhưng tinh tế, vừa đảm bảo tính thẩm mỹ, vừa tối ưu công năng sử dụng, tạo nên một không gian sống tiện nghi và thoáng đãng cho gia đình.

Mẫu nhà vườn dưới đây được phối hợp hài hòa giữa hai gam màu chủ đạo là trắng và nâu theo tỷ lệ 70:30. Sự kết hợp này không chỉ tạo nên vẻ đẹp tinh tế, sang trọng mà còn mang lại cảm giác ấm áp, gần gũi với thiên nhiên. Đây được xem là lựa chọn thông minh, bởi hai gam màu này có tính ứng dụng cao, dễ dàng phối hợp với nhiều phong cách kiến trúc khác nhau và đặc biệt là không bao giờ lỗi thời theo thời gian.

Phần chân của công trình nhà cấp 4 mái Nhật được thiết kế đôn cao so với mặt sân, giúp tổng thể ngôi nhà trở nên cao ráo, thoáng mát và hạn chế tình trạng ẩm thấp, bám bẩn. Toàn bộ chân tường được ốp đá chẻ tự nhiên, không chỉ tăng tính thẩm mỹ mà còn nâng cao độ bền, chống thấm nước và bảo vệ công trình trước tác động của thời tiết. Sự kết hợp này mang đến vẻ đẹp chắc chắn, sang trọng và bền vững theo thời gian.

Mẫu nhà vườn được thiết kế với nhiều ô cửa sổ bố trí xung quanh, giúp tận dụng tối đa ánh sáng tự nhiên, mang lại không gian sống thoáng đãng và gần gũi với thiên nhiên. Toàn bộ hệ cửa sổ sử dụng kính cường lực kết hợp khung nhôm Xingfa cao cấp, đảm bảo độ bền, khả năng cách âm, cách nhiệt tốt và tính an toàn cao. Riêng cửa chính được nhấn mạnh bằng chất liệu thép vân gỗ, vừa tạo điểm nhấn sang trọng, vừa làm tăng tính thẩm mỹ và sự bề thế cho tổng thể công trình.

Từ góc nhìn trên cao, có thể dễ dàng quan sát sự phân chia rõ ràng giữa không gian nhà ở và khu sân vườn riêng biệt. Phần sân được lát gạch phẳng phiu, sạch sẽ, vừa đảm bảo thẩm mỹ, vừa thuận tiện cho việc vệ sinh và sinh hoạt. Xen kẽ là các bồn hoa và mảng xanh được bố trí hợp lý, trồng đa dạng cây cảnh và hoa lá, mang lại bầu không khí trong lành, tạo điểm nhấn sinh động cho toàn bộ khuôn viên.

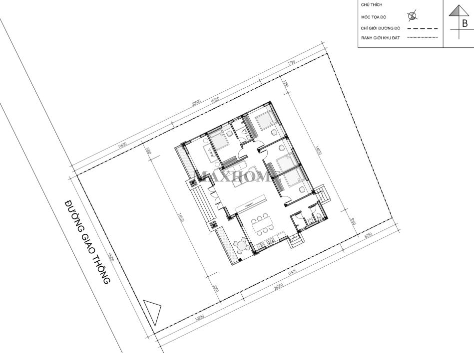
Công trình nhà cấp 4 mái Nhật được thiết kế với kích thước 14 x 10,5m, mang đến tổng diện tích sử dụng khoảng 145m². Với quy mô này, ngôi nhà không chỉ đảm bảo đầy đủ công năng cho gia đình mà còn giữ được sự thoáng đãng và tiện nghi. Vị trí mặt bằng cho thấy công trình được bố trí gần trục đường giao thông, thuận tiện cho việc đi lại, giao lưu cũng như kết nối với các tiện ích xung quanh. Đây là một lợi thế lớn, vừa giúp nâng cao giá trị sử dụng, vừa góp phần tăng tính thẩm mỹ tổng thể cho khuôn viên.

Từ sảnh chính bước vào, không gian đầu tiên là phòng khách rộng rãi, được thiết kế thoáng đãng, tạo cảm giác sang trọng và ấm cúng để tiếp đón khách. Bên phải phòng khách là khu vực phòng thờ trang nghiêm, đảm bảo yếu tố phong thủy, còn bên trái là không gian bếp kết hợp phòng ăn tiện nghi. Bếp ăn có cửa phụ mở ra bên hông, giúp việc di chuyển thuận tiện hơn và hạn chế mùi thức ăn ám vào các không gian khác trong nhà.

Ngôi nhà cấp 4 mái Nhật được bố trí 4 phòng ngủ xung quanh, đáp ứng nhu cầu sinh hoạt thoải mái cho gia đình nhiều thành viên. Trong đó, phòng ngủ số 04 được thiết kế khép kín với nhà vệ sinh riêng, đảm bảo sự riêng tư và tiện lợi cho người sử dụng. Ngoài ra, một nhà vệ sinh chung cùng phòng tắm được đặt gọn về cuối nhà, vừa tối ưu diện tích, vừa dễ dàng phục vụ nhu cầu sinh hoạt hằng ngày. Đây là cách bố trí công năng khoa học, hợp lý, mang lại sự tiện nghi và thoải mái tối đa cho gia chủ.











