Không thể tin nổi! Mẫu nhà mái Nhật Tân Cổ Điển siêu sang mà chỉ tốn 1,5 tỷ | MH05502
| Chủ đầu tư: Chú Nguyễn Quang Tuyển | Số tầng: 2 |
| Địa chỉ: Khoái Châu, Hưng Yên | Diện tích xây dựng: 8 x 14,8m |
| Loại hình: Nhà mái Nhật tân cổ điển | Tổng diện tích: 226m2 |
Công năng:
|
|
Giữa vô vàn phong cách kiến trúc hiện nay, mẫu nhà mái Nhật Tân Cổ Điển nổi bật nhờ vẻ đẹp thanh lịch, sang trọng và chi phí xây dựng cực kỳ hợp lý chỉ từ 1,5 tỷ đồng. Không cần đầu tư quá lớn, gia chủ vẫn có thể sở hữu một không gian sống đẳng cấp, tinh tế và đầy đủ tiện nghi, thể hiện rõ gu thẩm mỹ và vị thế của chủ nhân. Mời bạn cùng tham khảo mẫu nhà đẹp do Maxhome thiết kế dưới đây cho gia đình nhà Chú Tuyển tại Hưng Yên nhé!
Công trình nhà vườn mái Nhật này được thiết kế theo phong cách Tân Cổ Điển, mang vẻ đẹp sang trọng và tinh tế. Khác với phong cách hiện đại đề cao sự tối giản, kiến trúc Tân Cổ Điển lại chú trọng vào các chi tiết trang trí tinh xảo và đường nét mềm mại. Điểm nhấn nổi bật của công trình nằm ở hệ phào chỉ chạy dọc theo các cột, tạo cảm giác vững chãi và uy nghi cho mặt tiền.
Bên cạnh đó, các khung cửa chính và cửa sổ được điểm xuyết bằng những đường diềm phào và hoa văn tinh tế, góp phần tôn lên vẻ đẹp mềm mại, thanh thoát cho ngôi nhà. Sự kết hợp hài hòa giữa kiến trúc Tân Cổ Điển và mái Nhật hiện đại đã mang đến tổng thể công trình vừa sang trọng, vừa gần gũi – thể hiện gu thẩm mỹ tinh tế của gia chủ.

So với những mẫu nhà mang phong cách hiện đại, công trình Tân Cổ Điển thường có thời gian thi công dài hơn và yêu cầu kỹ thuật phức tạp hơn, đặc biệt là ở các hạng mục phào chỉ và phù điêu trang trí. Bên cạnh đó, chi phí xây dựng cho phong cách này cũng cao hơn do đòi hỏi sự tỉ mỉ và độ chính xác cao trong từng chi tiết.
Tuy nhiên, khi lựa chọn dịch vụ thi công trọn gói tại Maxhome, khách hàng hoàn toàn có thể yên tâm. Chúng tôi sở hữu đội ngũ thợ thi công chuyên biệt cho hạng mục phù điêu và phào chỉ, có tay nghề cao cùng nhiều năm kinh nghiệm thực tế. Nhờ đó, từng chi tiết trang trí đều được xử lý tinh xảo, đúng kỹ thuật, đảm bảo mang lại vẻ đẹp sang trọng, đẳng cấp và bền vững cho công trình của bạn.

Tông màu chủ đạo của ngôi nhà mái Nhật Tân Cổ Điển là màu trắng tinh khôi, được sử dụng xuyên suốt trong toàn bộ kiến trúc, mang lại cảm giác sang trọng và thanh lịch. Sắc trắng không chỉ giúp tôn lên vẻ đẹp tinh tế của các chi tiết phào chỉ mà còn tạo hiệu ứng không gian rộng rãi và thoáng đãng hơn. Kết hợp hài hòa với gam trắng là mái Nhật màu xanh than trầm ấm, giúp tổng thể ngôi nhà trở nên cân đối và cuốn hút. Bên cạnh đó, hệ lan can sắt sơn mỹ thuật màu đen được thiết kế tinh xảo, tạo điểm nhấn tương phản đầy nổi bật.

Công trình nhà mái Nhật Tân Cổ Điển được thiết kế với hệ bậc tam cấp sang trọng, mỗi bậc đều được ốp đá Granite cao cấp, mang đến vẻ đẹp bền bỉ và tinh tế cho phần sảnh chính. Không chỉ vậy, khu vực ban công tầng 2 cũng được ốp đá đồng bộ, tạo nên sự liên kết hài hòa trong tổng thể kiến trúc. Loại đá Granite được sử dụng có độ cứng và khả năng chịu lực cao, giúp công trình luôn vững chắc và an toàn trong quá trình sử dụng. Bề mặt đá được xử lý chống trơn trượt, đảm bảo an toàn khi di chuyển, đồng thời dễ dàng vệ sinh và duy trì độ sáng bóng theo thời gian.

Từ góc nhìn trên cao, có thể thấy hệ mái Nhật màu xanh than được thi công ngay ngắn, đồng đều và tinh tế, tạo nên vẻ đẹp vững chãi, sang trọng cho toàn bộ công trình. Mái Nhật không chỉ có tính thẩm mỹ cao mà còn giúp thoát nước tốt, chống thấm hiệu quả, phù hợp với điều kiện khí hậu nhiệt đới gió mùa ở Việt Nam. Phía dưới là khoảng sân rộng rãi, được ốp gạch chống trơn nhằm đảm bảo an toàn khi di chuyển, đặc biệt trong những ngày mưa.

Ngôi nhà Tân Cổ Điển được bao quanh bởi hệ thống tường rào kiên cố, không chỉ đảm bảo an toàn và sự riêng tư cho gia chủ mà còn góp phần hoàn thiện tính thẩm mỹ tổng thể của công trình. Phần tường bao được thiết kế đồng bộ với phong cách kiến trúc của ngôi nhà, sử dụng vật liệu bền chắc và màu sắc hài hòa, tạo nên cảm giác sang trọng nhưng vẫn gần gũi.

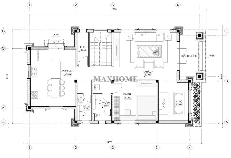
Ngôi nhà Tân Cổ Điển được xây dựng trên khuôn viên đất rộng rãi với kích thước 8 x 14,8m, mang đến không gian sống thoáng đãng và cân đối. Tổng diện tích sử dụng khoảng 226m², được quy hoạch hợp lý giữa các khu vực sinh hoạt, nghỉ ngơi và không gian phụ trợ.

Từ sảnh chính bước vào là không gian phòng khách rộng rãi, được thiết kế liên thông với phòng thờ trang nghiêm, vừa tiện lợi cho sinh hoạt, vừa thể hiện sự tôn kính với truyền thống gia đình. Bên cạnh đó là phòng ngủ master có nhà vệ sinh khép kín, mang đến sự riêng tư và tiện nghi tối đa cho gia chủ.
Khu vực nhà vệ sinh chung được bố trí gần phòng khách, thuận tiện cho việc sử dụng của các thành viên cũng như khách đến chơi. Phòng bếp và khu vực ăn uống được sắp xếp tách biệt về phía cuối nhà, giúp hạn chế mùi thức ăn lan tỏa vào không gian sinh hoạt chung. Cách bố trí này không chỉ đảm bảo tính thẩm mỹ và phong thủy mà còn mang lại sự thông thoáng, sạch sẽ cho toàn bộ ngôi nhà.

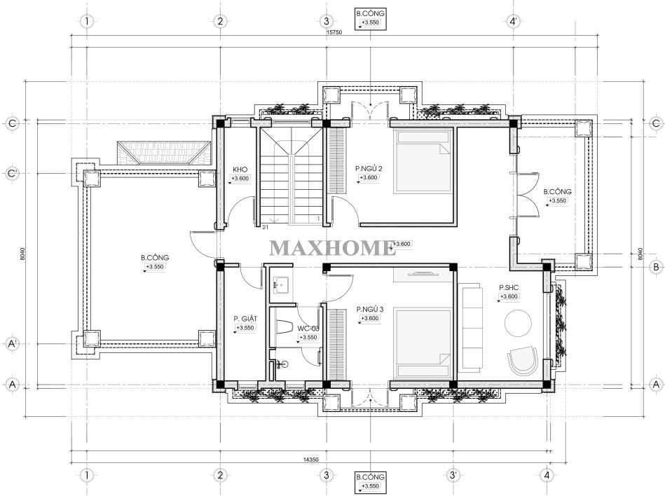
Tầng 2 được bố trí khoa học với phòng sinh hoạt chung nằm ở vị trí trung tâm, là không gian lý tưởng để các thành viên trong gia đình quây quần, trò chuyện và thư giãn sau một ngày làm việc. Ngoài ra, tầng này còn có 2 phòng ngủ được thiết kế thông thoáng, mỗi phòng đều có ban công riêng giúp đón gió và ánh sáng tự nhiên, mang lại cảm giác dễ chịu và thoải mái.
Cả hai phòng ngủ sử dụng chung một nhà vệ sinh, được bố trí tiện lợi nhằm tối ưu diện tích sử dụng. Phía cuối tầng là phòng giặt kết hợp kho chứa đồ, giúp không gian luôn gọn gàng, ngăn nắp. Ngoài ra, ban công sau nhà được thiết kế rộng rãi, có thể tận dụng để phơi đồ hoặc bố trí thêm cây cảnh, tạo nên góc thư giãn xanh mát và gần gũi với thiên nhiên.












