Mẫu biệt thự 2 tầng phong cách Địa Trung Hải tích hợp kinh doanh cực hút khách | MH05756
| Chủ đầu tư: Anh Hà Văn Quang | Số tầng: 2 |
| Địa chỉ: Đắk Lắk | Diện tích xây dựng: 15 x 20,6m |
| Loại hình: Biệt thự Địa Trung Hải | Tổng diện tích: 460m2 |
Công năng:
|
|
Sở hữu vẻ đẹp sang trọng đậm chất Địa Trung Hải, mẫu biệt thự 2 tầng này không chỉ là không gian an cư lý tưởng mà còn được thiết kế thông minh để kết hợp kinh doanh hiệu quả. Từ ngoại thất mái ngói đỏ đặc trưng, những ô cửa vòm mềm mại đến khoảng sân rộng thoáng, tất cả tạo nên một công trình đẳng cấp, thu hút mọi ánh nhìn. Đây là lựa chọn lý tưởng cho những gia chủ muốn tối ưu hoá công năng, vừa đảm bảo không gian sống riêng tư, tiện nghi, vừa tạo ra mặt bằng kinh doanh đầy tiềm năng và sinh lời bền vững.
Xu hướng thiết kế nhà ở kết hợp kinh doanh ngày càng được ưa chuộng nhờ tính tiện lợi và khả năng tối ưu chi phí sử dụng. Đối với công trình này, gia chủ lựa chọn mô hình spa tại gia, vừa thuận tiện cho việc vận hành vừa tạo sự riêng tư cho không gian sống. Kiến trúc được định hướng theo phong cách Địa Trung Hải – một phong cách nổi bật với vẻ đẹp mềm mại, sang trọng và mang đậm chất nghỉ dưỡng. Các đường cong tinh tế, mái ngói đỏ đặc trưng và gam màu trắng chủ đạo không chỉ tạo dấu ấn thẩm mỹ mà còn giúp không gian spa trở nên thư giãn, gần gũi và thu hút khách hàng hơn.


Tông màu trắng được sử dụng cho toàn bộ ngoại thất của mẫu biệt thự 2 tầng, đóng vai trò như dấu ấn đặc trưng giúp công trình trở nên tinh tế và sang trọng. Đi cùng với đó là sắc đỏ nâu đến từ hệ mái ngói Nhật, tạo nên sự cân bằng hài hoà giữa gam màu trung tính và màu nóng. Sự kết hợp này không chỉ mang lại cảm giác ấm áp, gần gũi mà còn làm nổi bật đường nét kiến trúc, giúp tổng thể biệt thự trở nên nổi bật và cuốn hút hơn.

Biệt thự 2 tầng được thiết kế theo phong cách Địa Trung Hải nên dễ dàng nhận diện qua hệ vòm cong mềm mại và các thức cột mang tính tự do, phóng khoáng. Khác với kiến trúc Tân cổ điển vốn chú trọng vào các đường phào chỉ cầu kỳ, phong cách Địa Trung Hải hướng đến sự đơn giản, thoáng đãng và gần gũi với thiên nhiên. Chính sự khác biệt này giúp công trình sở hữu vẻ đẹp nhẹ nhàng nhưng vẫn vô cùng cuốn hút, tạo nên một không gian vừa sang trọng vừa đậm chất nghỉ dưỡng.

Biệt thự 2 tầng được thiết kế theo hình khối chữ U, tạo nên bố cục hài hòa và thông thoáng cho toàn bộ công trình. Phía trước nhà là khoảng sân rộng rãi, thuận tiện cho việc đỗ xe và tổ chức các hoạt động ngoài trời. Khu sân còn được bố trí cây xanh và tiểu cảnh bao quanh, giúp không gian trở nên mát mẻ, gần gũi với thiên nhiên và mang lại cảm giác thư giãn ngay từ lối vào.

Ở các mẫu biệt thự 2 tầng phong cách Địa Trung Hải, thiết kế không gian mở luôn được ưu tiên nhằm tối đa ánh sáng tự nhiên và tạo sự thông thoáng cho toàn bộ ngôi nhà. Công trình này cũng theo định hướng đó khi toàn bộ các mặt đều được bố trí hệ cửa lớn. Các khung cửa sử dụng nhôm Xingfa cao cấp kết hợp kính cường lực, giúp tăng khả năng lấy sáng, mở rộng tầm nhìn và tạo sự kết nối hài hòa giữa không gian nội thất với cảnh quan bên ngoài. Đồng thời, vật liệu này còn đảm bảo độ bền, khả năng cách âm – cách nhiệt tốt, mang lại trải nghiệm sống tiện nghi và thoải mái cho gia chủ.


Biệt thự 2 tầng được thiết kế với hệ mái Nhật cân đối và hài hòa, tạo nên vẻ đẹp nhẹ nhàng nhưng vẫn hiện đại, rất phù hợp với phong cách Địa Trung Hải. Kiểu mái này không chỉ giúp tổng thể công trình trở nên thanh thoát mà còn mang lại khả năng chống nóng, chống ẩm hiệu quả. Trên bề mặt mái còn được bố trí hệ rãnh thu nước, hỗ trợ thoát nước nhanh vào mùa mưa, hạn chế tình trạng thấm dột và nâng cao độ bền cho toàn bộ kết cấu mái.


Công trình biệt thự, khi quan sát từ góc nhìn mặt bằng định vị, được bố trí sát mặt đường với kích thước đất 15 x 20,6m. Tổng diện tích sử dụng của toàn bộ hai tầng ước tính khoảng 460m², mang đến không gian rộng rãi, tiện nghi và phù hợp cho các nhu cầu sinh hoạt đa dạng của gia đình. Vị trí xây dựng gần mặt đường cũng thuận lợi cho việc di chuyển, đồng thời tạo điểm nhấn kiến trúc nổi bật cho tổng thể công trình.

Từ cửa chính bước vào là khu vực sảnh đón rộng rãi, tạo ấn tượng mở đầu sang trọng cho khách hàng. Bên phải sảnh là quầy lễ tân hiện đại cùng hai phòng tư vấn, thuận tiện cho việc tiếp nhận và trao đổi với khách. Bên trái được bố trí ba phòng spa chuyên nghiệp, hai nhà vệ sinh chung và một sân ướt ở cuối nhà, đảm bảo tiện nghi và tối ưu hóa không gian phục vụ cho các hoạt động chăm sóc sức khỏe và thư giãn.


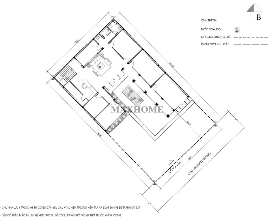
Tầng 2 được bố trí là không gian sinh hoạt chính của gia đình, gồm một phòng sinh hoạt chung rộng rãi, là nơi các thành viên quây quần, thư giãn và kết nối với nhau. Bên phải khu sinh hoạt chung là phòng bếp kết hợp phòng ăn tiện nghi, thuận tiện cho việc nấu nướng và tổ chức bữa ăn. Xung quanh tầng là ba phòng ngủ, trong đó phòng ngủ số 03 được trang bị nhà vệ sinh khép kín, mang lại sự riêng tư tối đa. Cuối nhà bố trí thêm một nhà vệ sinh chung và phòng giặt, đảm bảo tiện ích đầy đủ và hợp lý cho sinh hoạt hàng ngày.













