Mẫu biệt thự sân vườn tân cổ điển siêu đẹp, đẳng cấp dành cho gia chủ có gu | MH06064
| Chủ đầu tư: Chị Trần Thị Xuân Thu | Số tầng: 1 |
| Địa chỉ: TP Đà Lạt, Lâm Đồng | Diện tích xây dựng: 25,9 x 16,2m |
| Loại hình: Biệt thự sân vườn tân cổ điển | Tổng diện tích: 273m2 |
Công năng:
|
|
Cùng Maxhome tới tham quan vẻ đẹp mộng mơ của thành phố ngàn hoa Đà Lạt, tại đây xuất hiện của một công trình kiến trúc có phong cách sống và gu thẩm mỹ tinh tường của chủ nhân. Dự án biệt thự sân vườn tân cổ điển của gia đình chị Thu chính là một tác phẩm nghệ thuật như thế, nơi những giá trị kiến trúc trường tồn của châu Âu hòa quyện hoàn hảo cùng hơi thở đương đại, sở hữu một không gian sống xa hoa, đẳng cấp và đầy bản sắc.
Với kích thước xây dựng ấn tượng lên tới 25,9×16,2m trên một diện tích sử dụng rộng lớn 273m2, công trình biệt thự sân vườn tân cổ điển không chỉ gây choáng ngợp bởi quy mô bề thế mà còn bởi sự tỉ mỉ trong từng đường nét chạm khắc. Ngay từ cái nhìn đầu tiên, căn biệt thự vườn 1 tầng này đã khẳng định vị thế của mình qua hệ mái Nhật xanh ghi thanh lịch với phù điêu đắp nổi trang trí rất đặc trưng của dòng kiến trúc tân cổ điển.

Điểm nhấn trên mái là những ô cửa sổ vòm nhỏ nhắn có tác dụng lấy sáng tự nhiên và tạo nên sự nhịp điệu, mềm mại cho tổng thể khối kiến trúc vốn dĩ rất uy nghi. Nhờ sự kết hợp giữa sắc trắng tinh khôi của diện tường sơn vôi cao cấp và sắc xanh trầm mặc của mái ngói đã giúp tạo nên một bản phối màu sang trọng và không bao giờ lỗi mốt theo thời gian.

Khu vực sảnh chính hiện ra như một lời chào đón nồng hậu và đầy quyền uy. Hệ cột đôi bề thế với những đường rãnh soi dọc tinh tế, đầu cột được trang trí bằng các họa tiết hoa văn Corinthian cầu kỳ, nâng đỡ toàn bộ phần mái tạo kiểu hình tam giác được đắp nổi phù điêu nghệ thuật. Đây là khu vực tập trung những tinh hoa của phong cách biệt thự sân vườn tân cổ điển, nhờ bàn tay khéo léo của đội ngũ thiết kế Maxhome lồng ghép những chi tiết chỉ phào phân tầng rõ rệt để tạo nên chiều sâu và sự chuyển tiếp mượt mà cho không gian ngoại thất.


Cửa chính và cửa phụ đều được chế tác từ gỗ tự nhiên quý hiếm với những đường vân sắc nét và kín đáo, đảm bảo an ninh tuyệt đối và làm điểm nhấn thị giác mạnh mẽ cho phần mặt tiền. Căn biệt thự sân vườn tân cổ điển còn được thể hiện qua cách bài trí hệ thống cửa sổ vòm và cửa sổ vuông đan xen. Những ô cửa kính lớn được bao bọc bởi hệ phào chỉ nổi bật mang lại vẻ đẹp tân cổ điển đặc trưng và còn giúp xóa nhòa ranh giới giữa không gian sống và thiên nhiên xanh mát bên ngoài.


Đặc biệt, khu vực lan can được thiết kế với hệ con tiện truyền thống chạy dài theo hành lang rộng để tạo nên một không gian thư giãn lý tưởng để gia chủ có thể nhâm nhi tách trà chiều, thưởng ngoạn cảnh sắc Đà Lạt thơ mộng. Phần chân đế của công trình được ốp đá chẻ tự nhiên sẫm màu có tác dụng bảo vệ tường khỏi rêu mốc và mang tới cảm giác vững chãi, kiên cố như một pháo đài bình yên.

Không chỉ dừng lại ở khối nhà chính, dự án còn gây ấn tượng mạnh mẽ với khu nhà phụ và gara ô tô được thiết kế đồng bộ về ngôn ngữ kiến trúc. Với diện tích xây dựng rộng rãi, khu vực gara có sức chứa lớn giúp đáp ứng nhu cầu sử dụng của gia đình và khách quý, đồng thời vẫn giữ được vẻ thanh thoát nhờ hệ cửa cuốn hiện đại và những đường chỉ ngang tinh tế bao quanh diện tường. Việc tách biệt khu vực gara và nhà phụ giúp không gian sống chính luôn giữ được sự yên tĩnh và sạch sẽ, tối ưu hóa diện tích sân vườn, tạo nên một tổng thể quy hoạch khoa học và mạch lạc.

Dưới góc độ kỹ thuật, mọi thông số trong bản vẽ biệt thự sân vườn tân cổ điển của gia đình chị Thu đều được tính toán tỉ mỉ để đạt đến tỷ lệ vàng trong kiến trúc. Với chiều dài mặt tiền hơn 25m, công trình đòi hỏi sự cân bằng tuyệt đối giữa các mảng đặc và rỗng, giữa các khối kiến trúc lồi lõm để tránh cảm giác đơn điệu. Hệ thống chỉ lõm 40x15mm được bố trí khoảng cách 460mm đều đặn trên các diện tường để tạo nên những đường kẻ ngang sang trọng, giúp kéo dài thị giác và làm tăng vẻ bề thế cho ngôi nhà.

Từng chi tiết phào chỉ, từ phào chân tường đến phào cổ trần đều được thi công bởi những nghệ nhân lành nghề nhất, đảm bảo sự sắc sảo trong từng milimet. Đây không chỉ là một căn biệt thự thông thường mà là một di sản kiến trúc mà chị Thu muốn dành tặng cho các thế hệ mai sau, một không gian sống đậm chất thượng lưu, nơi mỗi góc nhỏ đều toát lên hơi thở của sự quý phái và tinh tế.

Trên khuôn viên đất rộng lớn, căn biệt thự sân vườn tân cổ điển được đặt lùi về phía sau để nhường chỗ cho khoảng sân vườn phía trước cực kỳ thoáng đạt. Điểm nhấn cảnh quan là khu vực chòi nghỉ chân bên cạnh tiểu cảnh cây xanh để cả gia đình có thể thư giãn, ngắm nhìn toàn cảnh dinh thự trong không gian yên bình.

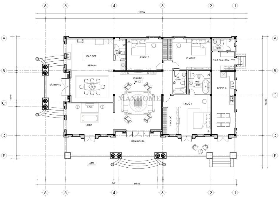
Bước qua sảnh chính bề thế của căn biệt thự là không gian phòng khách rộng lớn được đặt tại vị trí trung tâm của ngôi nhà. Ngay bên cạnh, khu vực phòng thờ được bố trí trang trọng hướng ra mặt tiền để đảm bảo sự tôn nghiêm và phong thủy cho gia đình chị Thu. Sự xa hoa thực sự lộ diện tại phòng bếp và ăn. Gia chủ sở hữu một không gian ẩm thực vô cùng chuyên nghiệp với khu vực bếp chính và đảo bếp để tạo nên những bữa tiệc gia đình ấm cúng. Gian bếp được tách riêng biệt để hạn chế mùi thức ăn khi chế biến các món cầu kỳ, giữ cho không gian chính luôn thơm tho và sạch sẽ. Sảnh phụ cũng được kết nối trực tiếp gian bếp để tạo lối đi thuận tiện cho việc di chuyển nguyên liệu nấu nướng mà không phải đi ngang qua phòng khách.

Sự riêng tư và tính cá nhân hóa được đẩy lên mức tối đa trong thiết kế 3 phòng ngủ của căn biệt thự. Phòng ngủ Master 01 như một nơi nghỉ dưỡng thu nhỏ với khu vực thay đồ riêng biệt và phòng vệ sinh khép kín tiện nghi. Trong khi đó, hai phòng ngủ còn lại được bố trí hài hòa có sử dụng chung một phòng vệ sinh lớn tích hợp bồn tắm nằm cao cấp, đáp ứng hoàn hảo nhu cầu thư giãn của gia đình.

Để bổ trợ cho không gian sống chính, khu nhà phụ với kích thước 5,7×17,3m được thiết kế đồng bộ như một hệ sinh thái tiện ích khép kín. Gara ô tô có sức chứa lớn và khu nhà phụ này còn được tích hợp đầy đủ một phòng ngủ dành cho khách hoặc nhân viên, kho chứa đồ và nhà vệ sinh riêng. Điểm cộng lớn nhất cho sự tinh tế của gia chủ chính là việc dành riêng một khu vực tắm cho thú cưng ngay trong nhà phụ, cho thấy một phong cách sống hiện đại, chu đáo và đầy lòng nhân ái.
Với sự đầu tư bài bản và gu thẩm mỹ cao, mẫu biệt thự sân vườn tân cổ điển này chắc chắn sẽ là nguồn cảm hứng cho những ai đang tìm kiếm một không gian sống thực thụ, nơi đẳng cấp không chỉ nằm ở giá trị vật chất mà còn ở sự thăng hoa trong tâm hồn.











