Mẫu nhà 1 tầng 1 lửng hiện đại theo phong cách tối giản mà tiện nghi | MH05258
| Chủ đầu tư: Anh Phạm Đức Nam | Số tầng: 1 tầng 1 lửng |
| Địa chỉ: Phước An, Krông Pắk, Đắk Lắk | Diện tích xây dựng: 6 x 14,3m |
| Loại hình: Nhà mái bằng hiện đại | Tổng diện tích: 172m2 |
Công năng:
|
|
Công trình dưới đây là một công trình mang hơi thở hiện đại, tối giản nhưng vẫn giữ được sự ấm áp và gần gũi. Nhờ cách xử lý ngoại thất khéo léo, ngôi nhà 1 tầng 1 lửng này đã tạo được ấn tượng mạnh ngay từ cái nhìn đầu tiên và phù hợp với nhu cầu của nhiều gia đình trẻ hiện nay.
Gia đình anh Nam đã tìm hiểu rất nhiều đơn vị thiết kế uy tín để lựa chọn, cuối cùng Maxhome được vinh hạnh khi gia đình anh gửi gắm sự tin tưởng và bàn giao trọn bộ hồ sơ tận tay. Mời bạn cùng chiêm ngưỡng mẫu nhà 1 tầng 1 lửng do Maxhome thiết kế dưới đây nhé!
Điểm nổi bật nhất của mẫu nhà 1 tầng 1 lửng này nằm ở mặt tiền rộng 6m. Thay vì sử dụng toàn bộ màu sơn đơn điệu như nhiều công trình khác thì Maxhome đã chọn cách phối hợp vật liệu để tạo chiều sâu. Khu vực trung tâm mặt tiền được ốp nhựa giả gỗ ngoài trời màu nâu chạy từ tầng 1 lên trên vừa sang vừa bền với khí hậu Tây Nguyên. Xung quanh là lớp sơn giả đá trắng vân mây giúp tổng thể mềm mại và thanh thoát hơn. Sự kết hợp giữa nâu và trắng mang lại cảm giác ấm cúng, dễ chịu và phù hợp với phong cách tối giản mà ngôi nhà hướng đến.

Công trình được nâng cao 450mm để tạo 3 bậc thềm trước cửa. Toàn bộ bậc thềm trải dài mặt tiền được ốp đá Granite đen chắc chắn và sang trọng ngay khi bước vào. Đây là loại đá bền, ít trầy, dễ vệ sinh nên rất phù hợp cho những gia đình có trẻ nhỏ hoặc sinh hoạt thường xuyên ở sân trước. Nhờ phần đế cao, ngôi nhà 1 tầng 1 lửng của anh Nam cũng trở nên cân đối hơn khi nhìn từ ngoài vào.

Dù đi theo tinh thần hiện đại nhưng mặt tiền mẫu nhà đẹp vẫn có những đường cong nhẹ ở các góc tường để tạo sự mềm mại. Điều này giúp công trình không bị thô cứng mà ngược lại mang tới cảm giác hài hòa và thân thiện. Dưới trần ngoại thất, hệ đèn led âm tường được bố trí chạy dọc theo mái hiên. Ban đêm, ánh sáng tỏa nhẹ làm nổi bật lớp ốp giả gỗ và nền sơn vân mây khiến ngôi nhà lung linh mà không cần trang trí quá nhiều.

Toàn bộ cửa của ngôi nhà đều sử dụng khung nhôm kính cường lực vừa hiện đại vừa thực tế vì kính giúp lấy sáng tốt, mở rộng tầm nhìn và tạo cảm giác thông thoáng cho không gian bên trong. Nhờ vậy, mẫu nhà 1 tầng 1 lửng này luôn giữ được sự thoải mái, kể cả vào những ngày trời âm u. Riêng khu vực tầng lửng còn được thiết kế cửa full kính để lấy tối đa ánh sáng tự nhiên, đồng thời tạo hiệu ứng cao ráo và trẻ trung cho toàn bộ mặt tiền.

Hệ mái bằng là điểm nhấn không thể bỏ qua trong mẫu nhà 1 tầng 1 lửng này. Mái bằng giúp dáng nhà gọn và sạch sẽ, đúng tinh thần tối giản mà gia đình hướng đến. Khi kết hợp với màu sơn giả đá cùng mảng tường ốp gỗ thì phần mái tạo cảm giác chắc chắn và vững vàng. Bên cạnh tính thẩm mỹ, mái bằng còn mang nhiều lợi ích như dễ bảo dưỡng, chống nóng tốt khi xử lý đúng kỹ thuật và có thể tận dụng để đặt bồn nước hoặc hệ thống năng lượng mặt trời.


Tuy căn nhà 1 tầng 1 lửng của anh Nam có kích thước như những căn nhà phố hiện đại thông thường nhưng thực tế thì gia đình anh còn dư khoảng sân trước và sân sau rất rộng rãi, tăng thêm khu vực sinh hoạt ngoài trời và nơi để xe thoải mái. Dù không được phép thiết kế ô cửa sổ hai bên thì vướng nhà hàng xóm nhưng nhờ 2 khoảng sân rộng này thì không khí trong nhà anh Nam sẽ được lưu thông rất tốt.

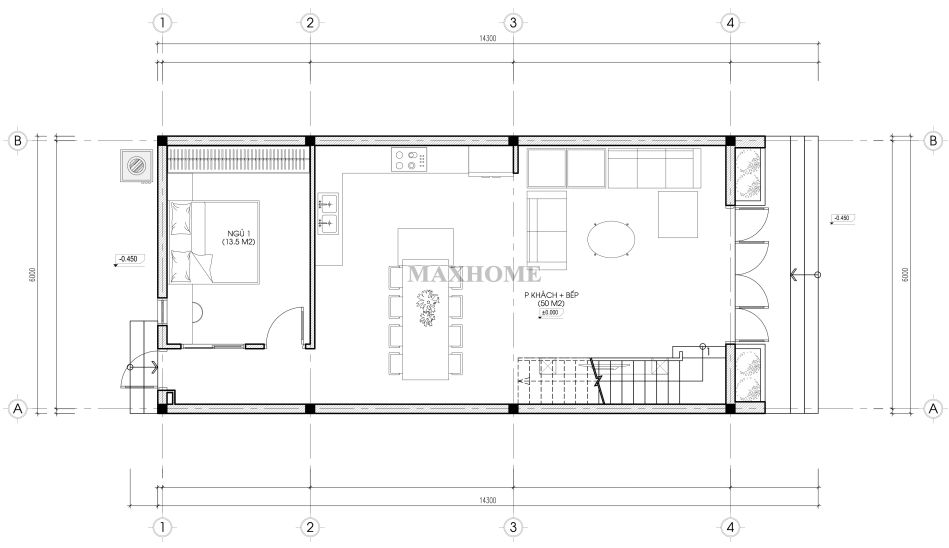
Không gian bên trong tầng 1 được bố trí theo hướng tiện lợi cho sinh hoạt hằng ngày. Ngay khi bước vào là phòng khách đặt cạnh bếp có tổng diện tích 50m2 để cả gia đình anh Nam có thể quây quần hoặc tiếp khách những bữa cơm thân mật và thoải mái. Cuối nhà là 1 phòng ngủ có một ô cửa sổ nhỏ đặt ngay vị trí bàn học lấy sáng rất tốt. Sân sau để máy giặt và phục vụ cho việc phơi đồ trong gia đình.


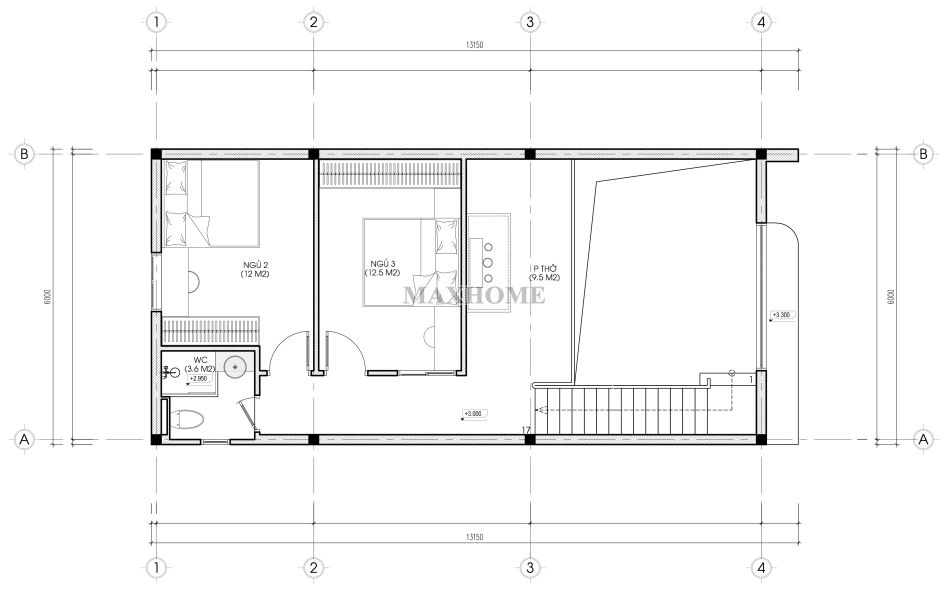
Lên tầng 2, không gian được chia thành phòng thờ trang trọng và yên tĩnh, đặt ở vị trí cao ráo để giữ sự trang nghiêm hướng ra khoảng thông tầng phía trước. Bên cạnh đó là 2 phòng ngủ dành cho các thành viên còn lại, mỗi phòng đều có cửa sổ giúp đón gió và lấy thoáng. Cuối cùng là 1 nhà vệ sinh dùng chung bố trí hợp lý ở góc nhà để cả tầng đều dễ dàng sử dụng.












