Ngôi nhà 1 tầng mái bằng được thiết kế theo phong cách hiện đại, mang đến không gian sống tiện nghi, phù hợp với những gia đình trẻ yêu chuộng sự tối giản. Thay vì phô trương chi tiết cầu kỳ, công trình ghi điểm nhờ sự phối hợp khéo léo giữa các vật liệu cao cấp như kính, đá tự nhiên và gỗ nhựa, vừa sang trọng vừa bền vững theo thời gian. Tất cả hòa quyện tạo nên một tổng thể kiến trúc thanh thoát, tinh tế và đầy cuốn hút ngay từ ánh nhìn đầu tiên.
Mẫu nhà 1 tầng mái bằng hiện đại đẹp sang được tìm kiếm nhiều nhất | MH05739
| Chủ đầu tư: Anh Trịnh Tiến Dũng | Số tầng: 1 |
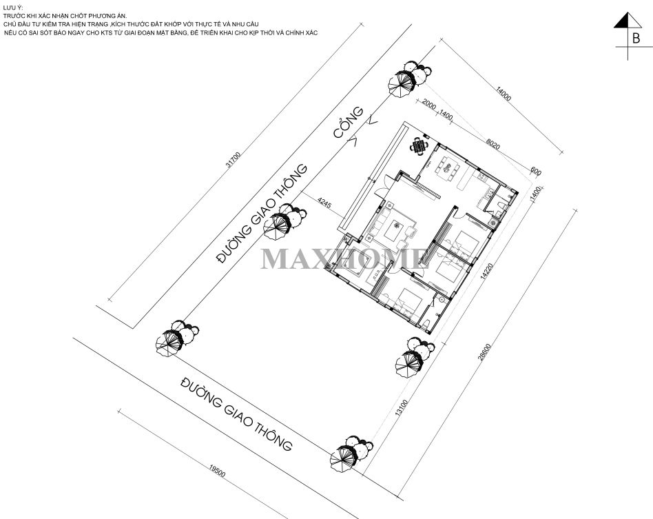
| Địa chỉ: Yên Minh, Thanh Hoá | Diện tích xây dựng: 14,2 x 11,4m |
| Loại hình: Nhà mái bằng hiện đại | Tổng diện tích: 135m2 |
| Công năng:
Phòng khách, phòng thờ, phòng bếp, 3 phòng ngủ, 2 wc |
|
Nếu bạn yêu thích phong cách hiện đại, tinh gọn và muốn tối ưu chi phí xây dựng, mẫu nhà 1 tầng mái bằng của gia đình anh Dũng tại Thanh Hóa chắc chắn sẽ là gợi ý lý tưởng. Ngôi nhà gây ấn tượng với đường nét kiến trúc phóng khoáng, sang trọng nhưng vẫn toát lên cá tính riêng và gu thẩm mỹ tinh tế của gia chủ. Bên trong, không gian được quy hoạch hợp lý, từng phòng chức năng được bố trí khoa học theo nhu cầu sinh hoạt của các thành viên, mang lại cảm giác tiện nghi và dễ chịu trong từng trải nghiệm sống.

Ngôi nhà 1 tầng mái bằng nổi bật với mặt tiền rộng 14,2m, mang đến tỷ lệ cân đối và tầm nhìn thoáng đãng, giúp tổng thể công trình trở nên bề thế và sang trọng hơn.
Kiến trúc được xử lý bằng những mảng khối rõ ràng, đường nét khỏe khoắn, kết hợp các gam màu hiện đại gồm trắng, xám và nâu ấm, tạo nên sự hài hòa và cuốn hút từ mọi góc nhìn.

Hệ thống cửa kính khung nhôm Xingfa được bố trí xuyên suốt mặt tiền không chỉ tăng cường ánh sáng tự nhiên, mà còn mở rộng tầm nhìn, kết nối không gian nội – ngoại thất một cách tinh tế.
Sự kết hợp giữa vật liệu hiện đại và thiết kế tối giản giúp ngôi nhà toát lên vẻ đẹp thanh lịch, thời thượng và đậm phong cách sống đương đại.

Mảng tường sơn giả đá mang lại cảm giác bền vững, chắc chắn, trong khi khu vực trung tâm được nhấn bằng lam gỗ nhựa màu nâu ấm giúp công trình trở nên gần gũi và tự nhiên hơn. Chiếc cột giả ốp đá chẻ xám đậm tạo điểm nhấn vững chãi, tăng chiều sâu thị giác và làm nổi bật hình khối kiến trúc.
Trần mái được lắp hệ thống đèn LED ánh vàng, vừa tạo hiệu ứng ánh sáng lung linh khi đêm xuống, vừa tôn lên vẻ ấm cúng, sang trọng cho không gian ngoại thất. Tất cả các chi tiết được phối hợp hài hòa, không chỉ nâng cao giá trị thẩm mỹ mà còn góp phần bảo vệ bề mặt công trình, tăng độ bền và tính ứng dụng trong thực tế.

Bao quanh ngôi nhà là khuôn viên sân vườn được bố trí hài hòa, với thảm cỏ xanh mướt, lối đi lát gạch tinh tế và những bồn hoa nhỏ điểm xuyết đầy sức sống. Các mảng tiểu cảnh xanh không chỉ mang lại cảm giác thư thái, điều hòa không khí, mà còn giúp không gian luôn tươi mới và dễ chịu. Nhờ đó, tổng thể công trình trở nên mềm mại giữa hình khối kiến trúc vuông vức, mang lại sự kết nối gần gũi và cân bằng với thiên nhiên.

Thiết kế mái bằng gọn gàng, bền vững không chỉ tăng khả năng chống chịu trước thời tiết khắc nghiệt mà còn góp phần hoàn thiện vẻ đẹp hiện đại, tinh tế cho ngôi nhà. Phần mái được lợp tôn chống nóng chất lượng cao, giúp giảm nhiệt hiệu quả, giữ cho không gian bên trong luôn mát mẻ và tiết kiệm năng lượng.
Trên mái, hệ thống téc nước và thái dương năng được bố trí khoa học, gọn gàng, đảm bảo công năng sử dụng tối ưu mà vẫn giữ tính thẩm mỹ cho tổng thể kiến trúc ngôi nhà 1 tầng mái bằng.

Công trình được xây dựng theo hướng Tây Bắc với kích thước 14,2 x 11,4m, tổng diện tích 135m², tạo nên bố cục mặt bằng vuông vức, thuận tiện cho việc bố trí công năng. Hướng nhà này giúp tận dụng tốt ánh sáng tự nhiên, đồng thời hạn chế nắng gắt buổi chiều, mang lại không gian sống thoáng mát và dễ chịu quanh năm.













