Mẫu nhà 2 tầng 4 phòng ngủ mái Nhật đẹp xuất sắc ở mọi góc nhìn | MH05947
| Chủ đầu tư: Chị Nguyễn Thị Ánh Hồng | Số tầng: 2 |
| Địa chỉ: Khánh Hội, Ninh Bình | Diện tích xây dựng: 8,2 x 16,9m |
| Loại hình: Nhà mái Nhật tân cổ điển | Tổng diện tích: 220m2 |
Công năng:
|
|
Mẫu nhà 2 tầng 4 phòng ngủ mái Nhật ngày càng được nhiều gia chủ ưu tiên lựa chọn nhờ sự cân bằng hài hòa giữa giá trị thẩm mỹ, công năng sử dụng và tính bền vững lâu dài. Phương án thiết kế của gia đình chị Hồng tại Ninh Bình được Maxhome giới thiệu trong bài viết dưới đây là một minh chứng tiêu biểu, nổi bật với vẻ đẹp bề thế, sang trọng nhưng vẫn giữ được sự gần gũi, phù hợp với điều kiện khí hậu cũng như nhịp sống hiện đại của gia đình Việt.
Mẫu nhà 2 tầng mái Nhật gây ấn tượng bởi hình khối kiến trúc cân đối, vững chãi, được tổ chức theo bố cục rõ ràng và mạch lạc. Thiết kế nhà 2 tầng giúp công trình không quá đồ sộ nhưng vẫn đủ tầm vóc để tạo dấu ấn, đặc biệt phù hợp với những gia đình đông thành viên cần không gian sinh hoạt rộng rãi. Việc bố trí 4 phòng ngủ mang lại sự tiện nghi tối đa, đáp ứng tốt nhu cầu nghỉ ngơi, sinh hoạt riêng tư.

Ngôi nhà 2 tầng 4 phòng ngủ mái Nhật được thiết kế theo phong cách tân cổ điển nhẹ nhàng, tập trung vào tỷ lệ, đường nét và các chi tiết trang trí vừa phải. Hệ cột vuông khỏe khoắn kết hợp phào chỉ tinh giản giúp mặt tiền trở nên thanh thoát, sang trọng mà không rườm rà. Các đường gờ, chỉ chạy ngang thân nhà được xử lý khéo léo, tạo chiều sâu cho hình khối và tăng tính thẩm mỹ tổng thể.
Điểm đặc biệt của mẫu thiết kế đẹp này là cách sử dụng chi tiết trang trí có chọn lọc. Phào chỉ được bố trí tập trung ở các vị trí nhấn như đầu cột, ban công, khung cửa sổ, giúp công trình giữ được vẻ tinh tế, bền dáng theo thời gian và không bị lỗi mốt.

Khu vực ban công tầng 2 là một điểm nhấn nổi bật trong thiết kế. Lan can sắt mỹ thuật với hoa văn tinh tế mang lại vẻ đẹp sang trọng, đồng thời tạo không gian thư giãn lý tưởng cho gia chủ.
Không chỉ chú trọng đến kiến trúc nhà ở, mẫu nhà 2 tầng 4 phòng ngủ mái Nhật này còn được đầu tư kỹ lưỡng về không gian sân vườn và cảnh quan xung quanh. Khoảng sân rộng rãi phía trước vừa đảm bảo chỗ để xe thuận tiện, vừa tạo độ thoáng cho công trình. Cây xanh được bố trí dọc lối đi, chân tường và khu vực ban công giúp điều hòa không khí, mang lại cảm giác thư thái, dễ chịu.

Tổng thể ngôi nhà sử dụng gam màu trắng chủ đạo, mang lại cảm giác thanh lịch, sang trọng và dễ dàng phối hợp với cảnh quan xung quanh. Phần chân tường được ốp đá tối màu không chỉ tạo điểm nhấn mà còn giúp công trình sạch sẽ, bền bỉ hơn trong quá trình sử dụng.
Hệ cửa kính khung nhôm xingfa được bố trí khoa học, vừa tăng khả năng lấy sáng tự nhiên vừa giúp không gian nội thất luôn thông thoáng. Ánh sáng tự nhiên được khai thác tối đa, góp phần tạo nên môi trường sống dễ chịu và tiết kiệm năng lượng.

Hệ mái Nhật là một trong những yếu tố quan trọng tạo nên vẻ đẹp và giá trị cho ngôi nhà. Mái có độ dốc vừa phải, xếp lớp gọn gàng, giúp tổng thể công trình trông cao ráo, bề thế và cân đối hơn. Không chỉ mang ý nghĩa thẩm mỹ, mái Nhật còn có khả năng thoát nước nhanh, chống nóng hiệu quả, rất phù hợp với điều kiện khí hậu nóng ẩm, mưa nhiều tại Việt Nam.
Màu mái trầm kết hợp với gam màu tường sáng tạo nên sự tương phản hài hòa, giúp ngôi nhà nổi bật nhưng không phô trương. Đây cũng là lý do vì sao nhiều gia chủ ưu tiên lựa chọn nhà 2 tầng mái Nhật khi mong muốn một công trình vừa đẹp, vừa bền vững theo thời gian.

Hệ cổng và tường rào được thiết kế đồng bộ với kiến trúc ngôi nhà, góp phần tôn lên vẻ sang trọng và khẳng định đẳng cấp của gia chủ. Cổng nhôm đúc nghệ thuật với hoa văn tinh xảo không chỉ đảm bảo an ninh mà còn tạo điểm nhấn ấn tượng ngay từ cái nhìn đầu tiên. Tường rào xây dựng chắc chắn, kết hợp mảng đặc – thoáng hợp lý, giúp công trình vừa kín đáo vừa thông thoáng.

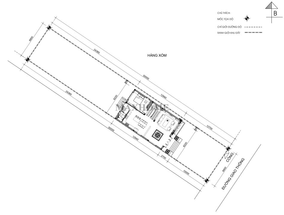
Theo hoa tiêu trên bản vẽ định vị, ngôi nhà được bố trí theo hướng Đông Bắc – hướng mang lại sinh khí tốt, đón nắng sớm và gió lành, giúp không gian luôn thoáng mát và tràn đầy năng lượng.
Công trình có kích thước 8,2 x 16,9m, được quy hoạch khoa học để tối ưu diện tích sử dụng, đồng thời đảm bảo sự hài hòa giữa kiến trúc, cảnh quan và phong thủy. Với tổng diện tích sử dụng khoảng 220m², ngôi nhà mang đến không gian sống rộng rãi, tiện nghi, đáp ứng đầy đủ nhu cầu sinh hoạt và nghỉ ngơi của gia đình.

Tầng 1 được bố trí khoa học với phòng khách rộng 37m², là không gian trung tâm sang trọng để đón tiếp và quây quần bên gia đình. Liền kề là khu bếp kết hợp phòng ăn diện tích 25m², vừa tiện nghi vừa đảm bảo sự thoáng đãng, mang đến những bữa cơm ấm áp. Ngoài ra, tầng này còn có một phòng ngủ riêng tư cùng nhà vệ sinh chung, tạo nên tổng thể công năng hài hòa, tối ưu cho sinh hoạt hằng ngày.

Tầng 2 được thiết kế với không gian tiện nghi và tinh tế, đáp ứng đầy đủ nhu cầu sinh hoạt cũng như giá trị tinh thần của gia chủ. Nơi đây bố trí 3 phòng ngủ rộng rãi, đảm bảo sự riêng tư và thoải mái, đi kèm nhà vệ sinh chung hiện đại.
Phòng thờ trang nghiêm đặt thẳng hướng mặt tiền ngôi nhà giúp tăng sinh khí, hút tài lộc; căn phòng này kết nối hài hòa cùng sân chơi thoáng đãng. Bên cạnh phòng thờ là phòng sinh hoạt chung và phía sau còn có khu giặt phơi sạch sẽ.











