Trong năm 2025, xu hướng thiết kế nhà ở đang chứng kiến sự bùng nổ của những mẫu nhà 2 tầng có tum hiện đại và đầy tiện nghi. Không chỉ đáp ứng nhu cầu sinh hoạt thoải mái cho gia đình nhiều thế hệ, thiết kế này còn mang đến một không gian sống sang trọng, mới lạ và phù hợp với lối sống đô thị. Mời bạn cùng tham khảo mẫu nhà đẹp này nhé!
Mẫu nhà 2 tầng có tum được thiết kế theo phong cách hiện đại, mang đến vẻ đẹp trẻ trung và năng động, phù hợp với xu hướng kiến trúc ngày nay. Đây là phong cách đang được nhiều gia đình yêu thích bởi khả năng tối ưu hóa không gian, đường nét thiết kế tinh gọn nhưng vẫn sang trọng và cuốn hút.

Nhà 2 tầng có tum có điểm nhấn đầu tiên phải kể đến là hệ vòm cong được thiết kế ở mặt tiền, vừa tạo sự mềm mại, vừa tăng thêm tính thẩm mỹ và chiều sâu cho công trình. Các ô cửa kính lớn chạy dọc theo chiều cao ngôi nhà giúp không gian bên trong luôn tràn ngập ánh sáng tự nhiên, đồng thời mở ra tầm nhìn thoáng đãng, kết nối hài hòa với thiên nhiên bên ngoài.


Ngôi nhà sử dụng gam màu trắng làm tông chủ đạo, mang lại cảm giác tinh tế và trang nhã. Ở tầng 2, kiến trúc sư khéo léo phối hợp thêm màu ghi, tạo điểm nhấn hài hòa và giúp tổng thể mặt tiền trở nên nổi bật hơn. Sự kết hợp này không chỉ tăng tính thẩm mỹ mà còn làm nổi bật phong cách hiện đại, đồng thời mang lại vẻ đẹp bền vững theo thời gian.

Đây là hình ảnh mặt sau của ngôi nhà 2 tầng, nơi được bố trí hệ thống cửa sổ hợp lý để đảm bảo ánh sáng và gió tự nhiên lưu thông vào bên trong. Do hai bên hông nhà giáp ranh với công trình lân cận nên không thể mở cửa sổ ở vị trí này, vì vậy kiến trúc sư đã khéo léo tận dụng mặt sau để bổ sung cửa sổ, vừa tăng tính thẩm mỹ cho công trình vừa tạo sự thông thoáng và thoải mái trong sinh hoạt hằng ngày.

Trên tum, gia chủ bố trí hệ thống bồn nước, năng lượng mặt trời và giếng trời lấy sáng, giúp tiết kiệm điện năng, đồng thời tăng cường sự thông thoáng cho ngôi nhà. Ban công nhỏ được thiết kế khéo léo để trồng cây xanh, tạo cảm giác gần gũi với thiên nhiên. Các khung cửa kính tối màu không chỉ làm điểm nhấn nổi bật trên nền tường trắng mà còn giúp nội thất đón ánh sáng tự nhiên tối đa, mang đến không gian sống thoải mái và tiện nghi.


Hệ thống cổng được thiết kế từ sắt sơn tĩnh điện kết hợp với các nan ốp giả gỗ, vừa chắc chắn vừa bền bỉ trước tác động của thời tiết. Sự kết hợp này không chỉ mang lại tính thẩm mỹ hiện đại mà còn tạo cảm giác gần gũi, ấm áp như chất liệu gỗ tự nhiên. Đồng thời, lớp sơn tĩnh điện giúp hạn chế tình trạng gỉ sét, đảm bảo tuổi thọ lâu dài cho công trình.

Hình ảnh mặt bằng định vị công trình cho thấy ngôi nhà 2 tầng có tum được thiết kế với kích thước 5,9 x 11,3m, tổng diện tích sử dụng khoảng 198m². Bản vẽ mặt bằng không chỉ thể hiện rõ quy mô và tỷ lệ của công trình mà còn giúp hình dung được cách bố trí không gian bên trong. Với diện tích này, ngôi nhà hoàn toàn có thể đáp ứng đầy đủ các không gian chức năng, mang lại sự tiện nghi, thoải mái cho gia đình, đồng thời tối ưu hóa công năng sử dụng trên quỹ đất không quá lớn.

Từ cửa chính bước vào là không gian phòng khách rộng rãi, được thiết kế thoáng đãng để đón tiếp khách và sinh hoạt gia đình. Tiếp nối là khu vực bếp kết hợp phòng ăn, bố trí khoa học, thuận tiện cho việc di chuyển và sử dụng hằng ngày. Cuối nhà được sắp xếp một nhà vệ sinh chung, vừa đảm bảo sự riêng tư vừa đáp ứng nhu cầu sử dụng cho cả tầng. Ngoài ra, tầng này còn có một phòng ngủ được thiết kế yên tĩnh, phù hợp cho việc nghỉ ngơi và thư giãn của các thành viên.

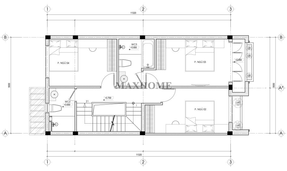
Tầng 2 được bố trí 3 phòng ngủ với diện tích hợp lý, đảm bảo sự thoải mái cho từng thành viên. Trong đó, phòng ngủ số 03 được thiết kế khép kín với nhà vệ sinh riêng, mang lại sự tiện nghi và riêng tư tối đa cho người sử dụng. Bên cạnh đó, tầng này vẫn có thêm một nhà vệ sinh chung, thuận tiện cho các phòng còn lại cũng như khi gia đình có khách ghé thăm.

Tầng tum được thiết kế tối ưu công năng với không gian phòng thờ trang nghiêm, đặt ở vị trí cao nhất của ngôi nhà, phù hợp với phong tục truyền thống và mang ý nghĩa phong thủy tốt lành. Bên cạnh đó, tầng tum còn có thêm một phòng ngủ nhỏ, vừa tiện nghi vừa đảm bảo sự riêng tư. Điểm nhấn đặc biệt ở tầng này chính là khoảng sân thượng rộng thoáng, thích hợp để trồng cây xanh, bố trí tiểu cảnh hoặc làm nơi thư giãn, ngắm cảnh cho các thành viên trong gia đình.












