Mẫu nhà 2 tầng mái bằng 4 phòng ngủ đẹp thời thượng, tối ưu công năng | MH05809

Chủ đầu tư: Anh Đông (chị Thuỷ) Số tầng: 2
Địa chỉ: Phú Bình, Thái Nguyên Diện tích xây dựng: 9 x 12m
Loại hình: Nhà mái bằng hiện đại Tổng diện tích: 160m2
Công năng:
  • Tầng 1: Phòng khách, phòng thờ, phòng bếp, 1 phòng ngủ, 1 wc
  • Tầng 2: Phòng sinh hoạt chung, 3 phòng ngủ, 1 wc, giặt phơi

Mẫu nhà 2 tầng mái bằng 4 phòng ngủ mà Maxhome thiết kế cho gia đình anh Đông tại Thái Nguyên mang vẻ đẹp thời thượng và thể hiện rõ sự tinh tế trong từng đường nét. Kiến trúc hiện đại kết hợp công năng tối ưu giúp ngôi nhà đáp ứng tốt nhu cầu sinh hoạt của gia đình nhiều thế hệ. Đây là lựa chọn lý tưởng cho những ai muốn sở hữu một không gian sống sang trọng, tiện nghi và bền vững theo thời gian.

Mẫu nhà mái bằng 2 tầng 4 phòng ngủ hiện đại được kiến tạo từ những khối hình học vuông vắn, kết hợp linh hoạt giữa các mảng kiến trúc có kích thước đa dạng, tạo nên vẻ đẹp độc đáo và thu hút. Sự sắp đặt sáng tạo này không chỉ mang lại diện mạo ấn tượng mà còn mở ra những khoảng không gian rộng rãi, giúp tối ưu ánh sáng và thông gió tự nhiên. Nhờ đó, ngôi nhà không chỉ thể hiện sự sang trọng, hiện đại mà còn mang đến cảm giác thư thái như được hoà mình với thiên nhiên xanh mát.

Từ góc nhìn chính diện, ngôi nhà 2 tầng 4 phòng ngủ mái bằng gây ấn tượng mạnh bởi hình khối vuông vắn, đường nét sắc gọn và bố cục hiện đại đúng chuẩn kiến trúc thời thượng.

Gam màu trắng và ghi được phối hợp tinh tế giúp tổng thể nhẹ nhàng nhưng vẫn giữ được sự sang trọng, trong khi các mảng ốp đá điểm xuyết dọc mặt tiền tạo chiều sâu và cảm giác bền vững.

Bộ cổng được tạo hình theo hướng tối giản, sử dụng thép và các lam trang trí để giữ vẻ hiện đại và đồng điệu với hệ tường rào. Những đường nét thẳng gọn giúp tổng thể sạch sẽ và có điểm nhấn vừa đủ.

Ở tầng hai, lan can thép sơn tĩnh điện tạo cảm giác thoáng nhưng vẫn chắc, giữ được sự an toàn mà không làm nặng mặt tiền. Khi kết hợp với mảng xanh, ngôi nhà trở nên tràn đầy sức sống và có chiều sâu, mang lại cảm giác dễ chịu ngay từ cái nhìn đầu tiên.

Hệ cửa chính bằng gỗ được thiết kế chạy dọc theo chiều cao mặt tiền, tạo điểm nhấn ấm và sang. Toàn bộ cửa sổ và cửa phụ dùng nhôm kính Xingfa giúp lấy sáng tối đa, đồng thời giữ cho ngôi nhà luôn tinh tế ở từng góc nhìn.

Bậc tam cấp được nâng cao 450 mm so với mặt đường, hạn chế nước mưa bắn vào bên trong và tạo ranh giới rõ rệt giữa không gian ngoài và trong. Toàn bộ bậc được ốp đá granite cao cấp, mang lại vẻ khỏe khoắn, sang trọng và đảm bảo độ bền khi chịu tác động của thời tiết.

Hệ mái bằng được bố trí gọn và chắc, tạo cảm giác vững chãi cho toàn bộ công trình. Trên mái, téc nước và hệ thống thái dương năng được sắp đặt khoa học để không phá vỡ đường nét tổng thể. Giải pháp này vừa tối ưu tiện ích sinh hoạt vừa giảm tiêu thụ điện, thân thiện hơn với môi trường.

Ngôi nhà 2 tầng mái bằng với 4 phòng ngủ của gia đình anh Đông mang vẻ sang trọng và hiện đại, thể hiện rõ phong cách sống chỉn chu và có gu của gia chủ. Công năng được phân chia hợp lý, từng không gian đều thuận tiện trong sinh hoạt hằng ngày và phù hợp các nguyên tắc phong thủy.

Bên cạnh đó, những mảng xanh được bố trí xen kẽ giúp ngôi nhà luôn thoáng, cân bằng và dễ chịu. Nhờ vậy, gia đình có thể tận hưởng cảm giác bình yên ngay trong chính tổ ấm của mình, dù sống giữa nhịp đô thị náo nhiệt.

Mặt bằng định vị công trình

Ngôi nhà nằm ở hướng Đông Bắc, trên diện tích xây dựng 9 x 12 m, tổng diện tích sử dụng 160m². Đây là tỷ lệ vừa chuẩn vừa đẹp, đủ để bố trí không gian sống rộng, thoáng và tiện nghi cho cả gia đình. Hướng nhà đón sáng tốt, gió vào đều, mang lại cảm giác dễ chịu suốt ngày dài. Với lợi thế vị trí và mặt bằng này, công trình có nền tảng lý tưởng để tối ưu công năng và giữ được sự thoải mái trong từng sinh hoạt.

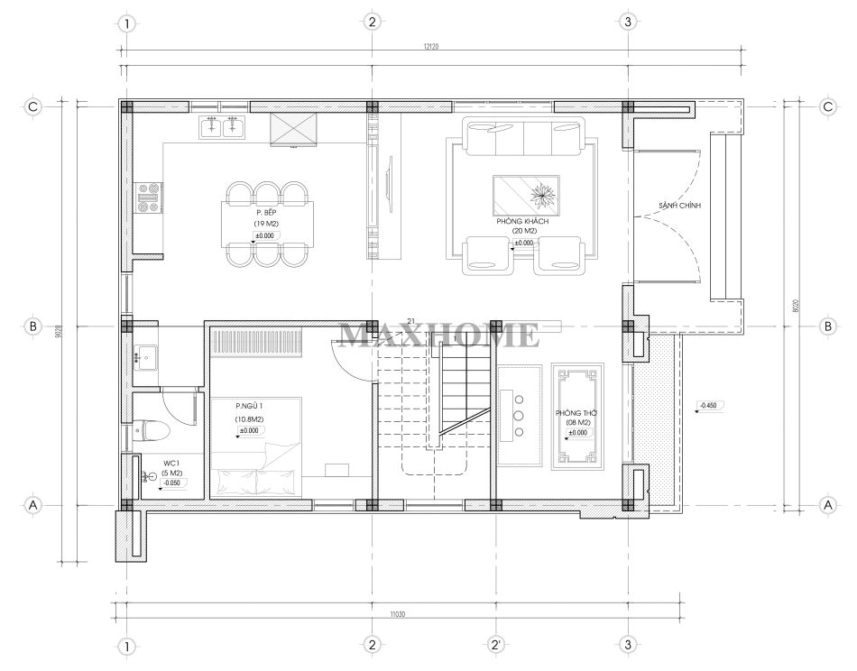
Mặt bằng bố trí công năng tầng 1

Từ sảnh chính bước vào là phòng khách rộng và thoáng, nội thất hiện đại tạo cảm giác sang và hợp gu ngay từ cái nhìn đầu tiên. Bên phải là phòng thờ được bố trí trang nghiêm với ban thờ gỗ tự nhiên cao cấp, hướng thẳng mặt tiền để tăng vượng khí và giữ sự cân bằng cho không gian sống.

Đi sâu vào trong là khu bếp ăn ấm cúng, đủ rộng để sinh hoạt thoải mái và kết nối các thành viên. Tầng 1 còn có một phòng ngủ tiện lợi cùng một khu vệ sinh chung, giúp sinh hoạt hằng ngày diễn ra thuận tiện.

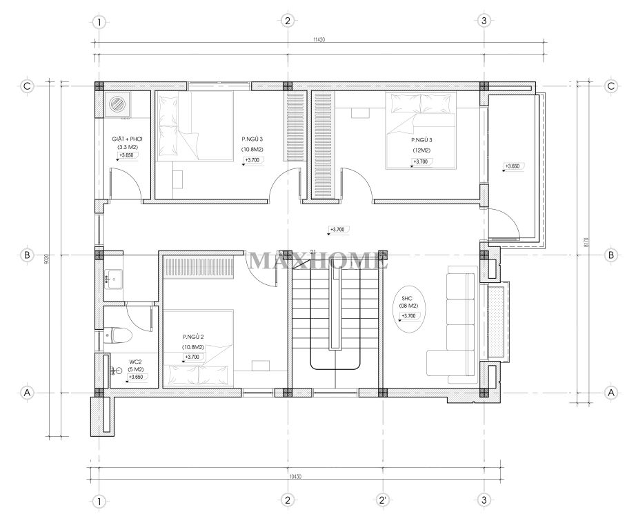
Mặt bằng bố trí công năng tầng 2

Tầng 2 được bố trí hợp lý với phòng sinh hoạt chung thiết kế mở, liên kết trực tiếp với sảnh tầng tạo cảm giác thoáng và dễ kết nối giữa các thành viên. Ba phòng ngủ đều có diện tích rộng rãi, thông gió tốt và được bố trí nội thất gọn gàng để đảm bảo sự thoải mái trong nghỉ ngơi. Khu vệ sinh chung và không gian giặt phơi được đặt cuối nhà để giữ sự riêng tư, hạn chế ẩm và giúp lưu thông trong nhà luôn sạch và thoáng.

Yêu cầu tư vấn

    *Vui lòng để lại thông tin, nhân viên tư vấn sẽ liên hệ lại quý khách trong thời gian sớm nhất