Mẫu nhà 2 tầng mái Nhật 4 phòng ngủ khiến gia chủ “xem là mê” | MH05390

Chủ đầu tư: Anh Lê Ngọc Đông Số tầng: 2
Địa chỉ: Đường An, Hải Phòng Diện tích xây dựng: 16 x 10,4m
Loại hình: Nhà mái Nhật hiện đại Tổng diện tích: 200m2
Công năng:
  • Tầng 1: Phòng khách, phòng bếp ăn, 1 phòng ngủ, 1 wc
  • Tầng 2: Phòng thờ, phòng sinh hoạt chung, 3 phòng ngủ, 1 wc

Nhà 2 tầng mái Nhật là lựa chọn lý tưởng cho những gia đình đề cao thẩm mỹ và công năng sử dụng. Với thiết kế 4 phòng ngủ khoa học, mẫu nhà không chỉ đáp ứng nhu cầu sinh hoạt thoải mái mà còn mang đến vẻ đẹp sang trọng, bền vững theo thời gian. Mời bạn cùng tham khảo mẫu nhà đẹp do Maxhome thiết kế nhé!

Ngôi nhà 2 tầng mái Nhật được thiết kế theo phong cách hiện đại, nổi bật với hình khối vuông vắn, khỏe khoắn và bố cục mặt tiền rộng được chia theo tỷ lệ chuẩn, tạo sự cân đối và hài hòa tổng thể. Các đường nét kiến trúc hiện đại được thể hiện rõ nét ở mặt tiền thông qua cách xử lý mảng khối, màu sắc tinh tế cùng sự kết hợp hài hòa giữa vật liệu và không gian, mang đến vẻ đẹp sang trọng, thời thượng và bền vững theo thời gian.

Gam màu trắng được lựa chọn làm tông màu chủ đạo cho ngôi nhà 2 tầng mái Nhật, mang đến cảm giác thanh thoát, tinh tế và giúp tổng thể công trình luôn sáng sủa. Kết hợp hài hòa với sắc xanh ghi làm điểm nhấn, mặt tiền trở nên nổi bật nhưng vẫn giữ được vẻ hiện đại, trang nhã. Đặc biệt, các đường kẻ chỉ âm tường được xử lý khéo léo không chỉ tăng tính thẩm mỹ mà còn tạo hiệu ứng chiều sâu, giúp công trình trở nên vững chãi, có điểm nhấn và cuốn hút hơn khi nhìn từ nhiều góc độ.

Công trình nhà 2 tầng mái Nhật được thiết kế bậc tam cấp theo đúng tiêu chuẩn phong thủy, đảm bảo số bậc mang ý nghĩa sinh – vượng – tài, góp phần thu hút may mắn và tài lộc cho gia chủ. Khu vực tam cấp được ốp đá granite cao cấp với bề mặt sáng bóng, khả năng chịu lực và chống trơn trượt tốt, không chỉ nâng cao tính an toàn khi sử dụng mà còn tạo điểm nhấn sang trọng, bền đẹp cho khu vực sảnh chính của ngôi nhà.

Nhờ được bố trí nhiều lối tiếp cận linh hoạt, công trình nhà 2 tầng mái Nhật sở hữu không gian sống luôn thông thoáng, tối ưu khả năng đón gió và ánh sáng tự nhiên. Việc tổ chức giao thông khoa học giúp quá trình di chuyển, sinh hoạt hằng ngày của các thành viên trở nên thuận tiện và liền mạch hơn. Bên cạnh đó, hệ cửa kính được bố trí xung quanh công trình không chỉ tăng cường khả năng lấy sáng mà còn mở rộng tầm nhìn, kết nối hài hòa giữa không gian nội và ngoại thất. Riêng cửa chính sử dụng cửa thép vân gỗ cao cấp, vừa đảm bảo độ bền, an toàn, vừa mang lại vẻ đẹp sang trọng và ấm cúng cho tổng thể ngôi nhà.

Hệ thống cổng của ngôi nhà 2 tầng hiện đại được xem là một hạng mục quan trọng, góp phần định hình diện mạo tổng thể và đảm bảo an ninh cho công trình. Cánh cổng sử dụng sắt hộp sơn tĩnh điện cao cấp, có khả năng chống gỉ sét, chịu được tác động của thời tiết và bền đẹp theo thời gian. Phần tường bao được xây dựng bằng bê tông kết hợp đan xen các thanh sắt sơn tĩnh điện, vừa tạo sự chắc chắn, an toàn, vừa mang đến vẻ thông thoáng, hiện đại và đồng bộ với phong cách kiến trúc chung của ngôi nhà.

Bản vẽ mặt bằng định vị thể hiện rõ khuôn viên khu đất xây dựng nhà 2 tầng mái Nhật nằm gần mặt đường giao thông, thuận tiện cho việc di chuyển. Khu đất được quy hoạch hợp lý, dành diện tích xây dựng cho ngôi nhà với kích thước khoảng 16 x 10,4m, đảm bảo không gian sử dụng rộng rãi và thông thoáng. Tổng diện tích sử dụng của công trình ước tính vào khoảng 200m², đáp ứng đầy đủ nhu cầu sinh hoạt, nghỉ ngơi và tiện nghi cho gia đình nhiều thế hệ.

Mặt bằng định vị công trình

Từ sảnh chính bước vào là không gian phòng khách rộng rãi với diện tích lên tới 26m², được bố trí thoáng đãng, phù hợp cho sinh hoạt chung và tiếp đón khách. Bên phải phòng khách là khu vực bếp kết hợp phòng ăn, thiết kế liên thông giúp tối ưu công năng và tạo sự kết nối liền mạch, đồng thời có lối di chuyển ra sảnh phụ, thuận tiện cho việc sinh hoạt và thông gió. Phòng ngủ số 01 được bố trí tại tầng 1, phù hợp cho người lớn tuổi hoặc khách đến ở, nằm cạnh khu vực nhà vệ sinh chung nhằm đảm bảo sự tiện lợi trong quá trình sử dụng hằng ngày.

Mặt bằng bố trí công năng tầng 1

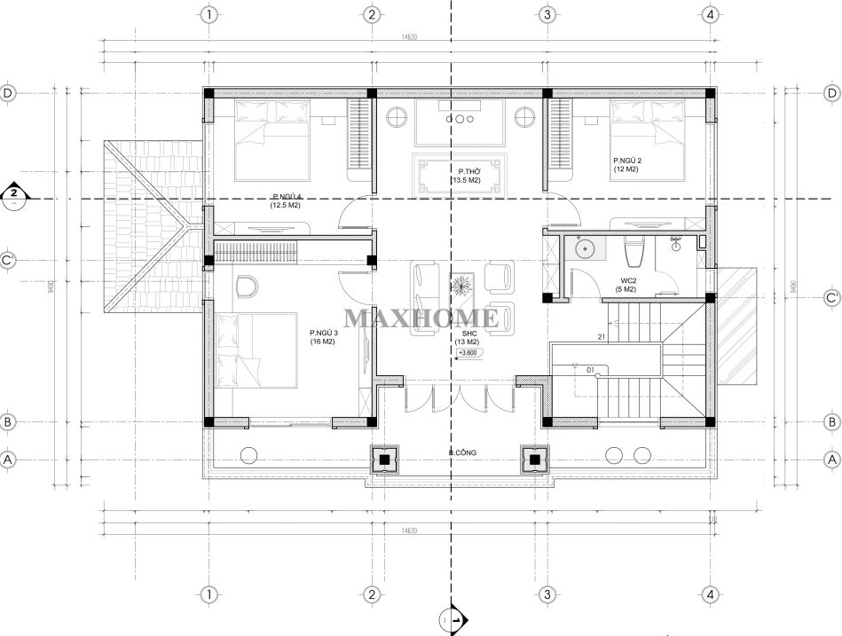
Không gian tầng 2 được bố trí khoa học với phòng sinh hoạt chung làm trung tâm, là nơi kết nối các thành viên trong gia đình. Đối diện là phòng thờ được thiết kế trang nghiêm, đảm bảo yếu tố phong thủy và sự tôn kính. Bao quanh khu vực này là 3 phòng ngủ có diện tích hợp lý, đáp ứng nhu cầu nghỉ ngơi riêng tư cho từng thành viên. Toàn bộ tầng 2 sử dụng chung một nhà vệ sinh, được bố trí thuận tiện, tối ưu diện tích và đảm bảo sự tiện nghi trong quá trình sinh hoạt hằng ngày.

Mặt bằng bố trí công năng tầng 2

Yêu cầu tư vấn

    *Vui lòng để lại thông tin, nhân viên tư vấn sẽ liên hệ lại quý khách trong thời gian sớm nhất