Mẫu nhà 2 tầng mái Nhật tân cổ điển có gara đẹp mê ly chuẩn gu sang, xịn | MH05810

Chủ đầu tư: Anh Nguyễn Duy Khánh Số tầng: 2
Địa chỉ: Cẩm Khê, Phú Thọ Diện tích xây dựng: 8,4 x 16,4m
Loại hình: Nhà mái Nhật tân cổ điển Tổng diện tích: 255m2
Công năng:
  • Tầng 1: Gara, phòng khách, phòng bếp, 1 phòng ngủ, 2 wc
  • Tầng 2: Phòng thờ, 4 phòng ngủ, 2wc, sân chơi

Trong kiến trúc hiện đại, một ngôi nhà không chỉ là nơi an cư mà còn thể hiện rõ gu thẩm mỹ và vị thế của chủ nhân. Giữa nhiều phong cách thiết kế, mẫu nhà 2 tầng mái Nhật tân cổ điển có gara do Maxhome thực hiện cho gia đình anh Khánh tại Phú Thọ nổi bật như một dấu ấn riêng. Công trình ghi điểm nhờ sự kết hợp hài hòa giữa vẻ đẹp sang trọng, bố cục khoa học và tính ứng dụng cao. Đặc biệt, khu vực gara được bố trí tinh tế trong tổng thể kiến trúc, vừa tăng tính tiện nghi vừa nâng tầm giá trị kiến trúc.

Mẫu nhà 2 tầng mái Nhật có gara nổi bật với vẻ đẹp tân cổ điển sang trọng, hình khối cân đối và các đường nét được xử lý tinh tế, tạo nên cảm giác vững chắc và bề thế cho toàn bộ công trình. Từng mảng tường, hệ cột và chi tiết trang trí đều được thiết kế có chủ đích, đảm bảo sự hài hòa giữa tính thẩm mỹ và độ bền theo thời gian. Sự kết hợp giữa phong cách tân cổ điển và mái Nhật giúp ngôi nhà thêm phần trẻ trung, thoáng rộng và mang lại nét hiện đại nhưng vẫn giữ được chất sang trọng đặc trưng.

Mặt tiền của ngôi nhà gây ấn tượng nhờ hệ cột trụ vuông vức, chắc chắn, được nhấn nhá bằng các đường phào chỉ tinh tế tạo chiều sâu cho kiến trúc. Phần mái sảnh uốn cong mềm mại mang lại nét cuốn hút riêng, giúp tổng thể mặt tiền trở nên thanh thoát và sang trọng hơn. Mỗi chi tiết trang trí đều vừa đủ để tôn lên đặc trưng của kiến trúc tân cổ điển, không quá cầu kỳ mà thay vào đó là sự tiết chế khéo léo, tạo cảm giác thanh thoát, sang trọng.

Ở khu vực ban công, lan can nhôm đúc nghệ thuật với hoa văn uốn lượn cùng điểm mạ vàng nổi bật trở thành chi tiết thu hút ánh nhìn. Sự kết hợp này vừa tăng giá trị thẩm mỹ vừa tạo nên nét đặc trưng khó hòa lẫn cho toàn bộ công trình.

Gara được thiết kế ngay tại tầng một, tích hợp gọn gàng trong tổng thể, vừa tối ưu diện tích vừa đảm bảo tính tiện nghi và an toàn. Cửa gara là cửa cuốn hiện đại, hoạt động êm ái, tiện lợi, vừa đảm bảo an toàn tuyệt đối cho phương tiện vừa giữ được sự đồng điệu trong tổng thể kiến trúc.

Các không gian khác trong ngôi nhà 2 tầng mái Nhật tân cổ điển được trang bị cửa sổ và cửa đi bằng khung nhôm Xingfa kết hợp kính cường lực trong suốt, mang lại tầm nhìn thoáng rộng, tận dụng tối đa ánh sáng tự nhiên và kết nối hài hòa giữa nội thất bên trong với cảnh quan bên ngoài.

Gam trắng được chọn làm màu chủ đạo mang đến cảm giác thanh lịch và tinh tế, đồng thời tạo nền hoàn hảo để tôn lên sự bề thế của tổng thể nhà 2 tầng mái Nhật có gara. Tông trắng sáng còn giúp làm nổi bật hệ mái xanh than nổi bật, khung cửa nhôm đen mạnh mẽ, đá tự nhiên màu xám sang trọng và các chi tiết nhôm đúc mạ vàng đầy điểm nhấn.

Sự đối lập màu sắc được tính toán kỹ lưỡng, giúp từng vật liệu và đường nét kiến trúc hiện lên rõ ràng, sắc nét hơn. Khi đặt cạnh nhau, những gam màu này hòa quyện thành một tổng thể hài hòa, vừa sang trọng vừa cuốn hút.

Góc ban công được thiết kế mềm mại với đường cong uyển chuyển, tạo nên điểm nhấn đầy tinh tế cho mặt tiền ngôi nhà. Lan can nhôm đúc với hoa văn mạ vàng làm không gian trở nên ấm áp và sang trọng hơn, đặc biệt khi ánh sáng chiếu vào càng tăng nét cuốn hút.

Đây cũng là nơi lý tưởng để gia chủ đặt một bộ bàn trà mini, vừa thưởng thức không khí trong lành, vừa ngắm trọn khung cảnh sân vườn từ trên cao trong những khoảnh khắc thư giãn mỗi ngày.

Với góc nhìn từ trên cao, hệ mái Nhật gây ấn tượng bởi các lớp mái đổ xuống nhẹ, tạo cảm giác thanh thoát và sang trọng cho toàn bộ công trình. Kiểu mái có độ dốc vừa phải giúp thoát nước nhanh, hạn chế thấm dột và tăng độ bền trước thời tiết khắc nghiệt. Bên cạnh tính thẩm mỹ, hệ mái lớn còn giúp che nắng, chắn mưa hiệu quả, mang đến không gian sống mát mẻ và bền vững theo thời gian.

Mặt bằng định vị công trình

Công trình được đặt tại vị trí hướng Đông Bắc, với kích thước xây dựng 8,4 x 16,4m và tổng diện tích sử dụng ấn tượng lên tới 255m². Sau khi khảo sát kỹ lưỡng hiện trạng khu đất, các kiến trúc sư đã khéo léo lên phương án quy hoạch không gian chức năng, tối ưu hóa diện tích và bố trí hài hòa các khu vực, đảm bảo mang lại sự tiện nghi, thoải mái vượt trội cho từng thành viên trong gia đình.

Mặt bằng bố trí công năng tầng 1

Tầng 1 được thiết kế thông minh với gara để xe rộng rãi, đáp ứng nhu cầu lưu trữ đa dạng phương tiện một cách tiện lợi. Phòng khách được đặt ở vị trí phong thủy đắc địa theo hướng Sinh Khí, Phục Vị, nằm gần cửa chính để tận dụng tối đa ánh sáng tự nhiên và gió mát, mang lại không gian thoáng sáng và tràn đầy năng lượng.

Kế tiếp là phòng bếp và phòng ăn gọn gàng, ấm cúng, tiếp nối cửa phụ mở ra phía sau nhà giúp không khí lưu thông mát mẻ. Ngoài ra, tầng 1 còn được bố trí thêm một phòng ngủ khép kín đảm bảo riêng tư và một nhà vệ sinh chung đảm bảo đáp ứng đầy đủ nhu cầu sinh hoạt hàng ngày.

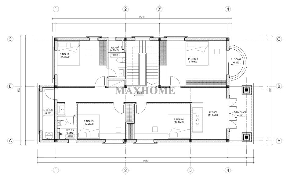
Mặt bằng bố trí công năng tầng 2

Bước lên tầng 2, không gian phòng thờ được đặt tại vị trí hợp phong thủy, trang nghiêm và thanh tịnh, đồng thời kết nối với ban công rộng thoáng, đón gió mát và sinh khí, nơi đây cũng trở thành khoảng sân chơi lý tưởng ngoài trời.

Bốn phòng ngủ được bố trí xung quanh nhà, diện tích rộng rãi, nội thất tiện nghi, mang đến sự thoải mái và những giấc ngủ trọn vẹn cho từng thành viên. Trong đó, phòng ngủ số 5 sở hữu vệ sinh khép kín, cùng với khu vệ sinh chung được sắp xếp hợp lý phía sau, vừa thuận tiện sử dụng vừa giữ trọn tính thẩm mỹ cho tổng thể.

Yêu cầu tư vấn

    *Vui lòng để lại thông tin, nhân viên tư vấn sẽ liên hệ lại quý khách trong thời gian sớm nhất