Mẫu nhà 3 tầng 1 lửng hiện đại đa năng, phù hợp kinh doanh | MH05727
| Chủ đầu tư: Anh Tạ Văn Thạo | Số tầng: 3 tầng 1 lửng |
| Địa chỉ: Kiều Phú, Hà Nội | Diện tích xây dựng: 9,6 × 11,7m |
| Loại hình: Nhà mái bằng hiện đại | Tổng diện tích: 350m2 |
Công năng:
|
|
Mẫu nhà 3 tầng 1 lửng kinh doanh đang trở thành xu hướng lựa chọn của nhiều gia đình sở hữu mặt tiền phố. Thiết kế này không chỉ mang vẻ đẹp sang trọng, trẻ trung mà còn tối ưu công năng, đặc biệt phù hợp cho nhu cầu vừa ở vừa kinh doanh. Với cách bố trí thông minh, tận dụng tối đa diện tích và chú trọng vào trải nghiệm sống tiện nghi, mẫu nhà đẹp hứa hẹn sẽ là giải pháp hoàn hảo cho những ai đang tìm kiếm một không gian sống hiện đại kết hợp kinh doanh hiệu quả.
Mẫu nhà 3 tầng 1 lửng được thiết kế theo phong cách hiện đại, tọa lạc tại vị trí lô góc vô cùng đắc địa. Với mục đích sử dụng kết hợp kinh doanh, phần ngoại thất được đầu tư tỉ mỉ, chú trọng từng chi tiết để tạo nên vẻ đẹp sang trọng và thu hút. Thiết kế này không chỉ tăng tính thẩm mỹ mà còn góp phần nâng cao giá trị thương mại, giúp công trình dễ dàng ghi điểm trong mắt khách hàng và đối tác.

Mẫu nhà 3 tầng 1 lửng sử dụng gam trắng làm màu sắc chủ đạo, tạo nên vẻ đẹp tinh tế và hiện đại cho tổng thể công trình. Điểm nhấn nổi bật nằm ở việc kết hợp các vật liệu cao cấp như gạch granite được ốp từ tầng 1 lên đến tầng lửng cùng các mảng sơn giả đá mang lại cảm giác vững chãi và sang trọng. Ở tầng 2, kiến trúc sư khéo léo bổ sung các chi tiết ốp gỗ nhựa, giúp không gian mặt tiền thêm phần ấm áp, hài hòa và thẩm mỹ hơn. Sự phối hợp vật liệu này không chỉ nâng cao giá trị thiết kế mà còn đảm bảo độ bền và dễ dàng bảo trì trong quá trình sử dụng.

Tầng 3 và sân thượng mở tạo nên khoảng không gian rộng rãi cho gia chủ sử dụng làm khu thư giãn, trồng cây xanh hoặc tổ chức sinh hoạt ngoài trời. Hệ thống cây xanh bố trí trên các tầng tạo cảm giác hài hòa với thiên nhiên, mang đến sự thoáng mát và nâng cao giá trị thẩm mỹ cho công trình. Tổng thể thiết kế toát lên vẻ đẹp hiện đại, sang trọng và vô cùng phù hợp cho mô hình nhà ở kết hợp kinh doanh tại đô thị.

Nhà 3 tầng 1 lửng phong cách hiện đại được thiết kế với hệ thống cửa chú trọng cả thẩm mỹ lẫn sự bền bỉ. Ở tầng 1, khu vực để xe sử dụng cửa sắt kết hợp nhôm chắc chắn, còn mặt tiền bố trí cửa cuốn thép an toàn, thuận tiện cho việc đóng mở hằng ngày. Các tầng còn lại của ngôi nhà được lắp đặt hoàn toàn bằng hệ cửa kính cường lực kết hợp nhôm hệ Xingfa cao cấp. Giải pháp này giúp không gian luôn tràn ngập ánh sáng tự nhiên, mở rộng tầm nhìn, đồng thời đảm bảo khả năng cách âm – cách nhiệt tốt, phù hợp với kiến trúc hiện đại và nhu cầu sử dụng thực tế.

Điểm nhấn của công trình còn thể hiện rõ qua hệ lan can kính hiện đại, các mảng tường ốp gỗ nhựa trang trí và khu vực sân thượng rộng rãi được kết hợp hài hòa với mảng xanh. Những chi tiết này tạo nên vẻ đẹp sang trọng, đồng thời mang đến sự cân bằng giữa kiến trúc và thiên nhiên. Đây là lựa chọn lý tưởng cho những gia đình yêu thích phong cách hiện đại, thông thoáng, phù hợp cho cả nhu cầu ở và kết hợp kinh doanh.
Khu vực sân thượng được bao quanh bằng lan can thép sơn tĩnh điện chắc chắn, vừa đảm bảo an toàn vừa tăng giá trị thẩm mỹ. Tại đây, hệ thống bồn nước và máy năng lượng mặt trời được sắp xếp gọn gàng, thuận tiện cho quá trình sử dụng và bảo trì. Bên dưới là khoảng ban công và sân chơi với cây xanh, mang đến bầu không khí tươi mát, giúp ngôi nhà trở nên gần gũi và hòa quyện hơn với thiên nhiên.


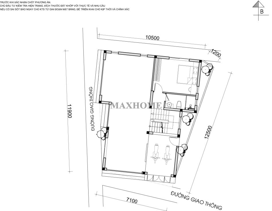
Mặt bằng định vị công trình cho thấy toàn bộ khuôn viên lô đất có kích thước 9,6 × 11,7m, đảm bảo không gian bố trí kiến trúc hợp lý. Tổng diện tích sàn sử dụng của ngôi nhà vào khoảng 350m², được phân bổ cho các tầng một cách khoa học, giúp tối ưu công năng và tạo sự thuận tiện trong quá trình sinh hoạt.

Tầng 1 được thiết kế làm không gian kinh doanh, đồng thời bố trí một khu vực để xe riêng biệt nhằm đảm bảo sự thuận tiện và an toàn cho việc di chuyển. Ngoài ra, tầng này còn có một phòng ngủ dành cho gia đình hoặc nhân viên trông coi, cùng với một nhà vệ sinh chung đặt cạnh bên, giúp việc sử dụng hằng ngày trở nên tiện lợi hơn.

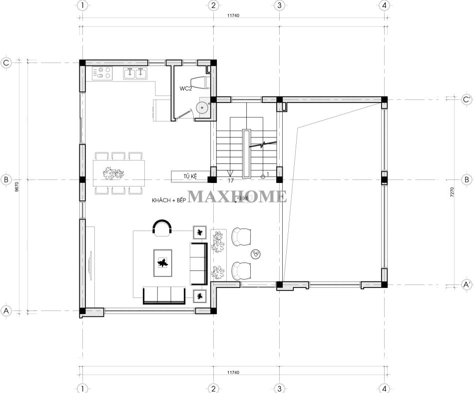
Tầng lửng được bố trí làm không gian sinh hoạt chung của gia đình, gồm phòng khách rộng thoáng và khu bếp – ăn liên thông. Cách bố trí này giúp tận dụng tối đa diện tích, tạo sự kết nối giữa các thành viên và mang lại cảm giác ấm cúng, tiện nghi cho ngôi nhà.

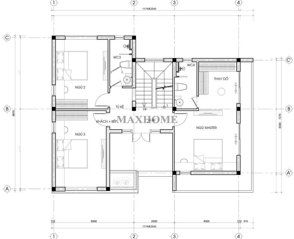
Tầng 2 được bố trí 3 phòng ngủ, trong đó phòng ngủ số 02 và số 03 sử dụng chung một nhà vệ sinh thuận tiện ngay bên ngoài. Riêng phòng ngủ master được thiết kế rộng rãi hơn, tích hợp phòng thay đồ riêng và nhà vệ sinh khép kín, mang lại sự riêng tư và thoải mái tối đa cho gia chủ. Cách bố trí này giúp tối ưu công năng sử dụng, đồng thời đáp ứng tốt nhu cầu sinh hoạt của các thành viên trong gia đình.

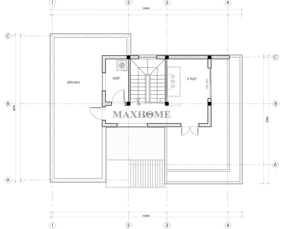
Tầng 3 được bố trí phòng thờ trang nghiêm, đảm bảo sự yên tĩnh và hợp phong thủy. Bên cạnh đó là khu vực giặt đồ thuận tiện cho sinh hoạt hằng ngày. Đặc biệt, tầng này sở hữu một khoảng sân cực kỳ rộng và thoáng, thích hợp làm nơi phơi phóng, trồng cây xanh hoặc bố trí không gian thư giãn ngoài trời cho các thành viên trong gia đình.












