Mẫu nhà cấp 4 mái Nhật đẹp với không gian 4 phòng ngủ hiện đại | MH05513
| Chủ đầu tư: Anh Nguyễn Văn Cường | Số tầng: 1 |
| Địa chỉ: Tam Đa, Phù Cừ, Hưng Yên | Diện tích xây dựng: 9,5 x 19,7m |
| Loại hình: Nhà mái Nhật hiện đại | Tổng diện tích: 145m2 |
| Công năng:
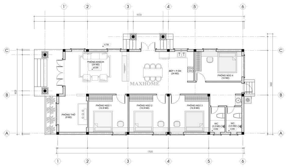
Phòng khách, phòng thờ, phòng bếp, 4 phòng ngủ, 2 wc |
|
Những mẫu nhà cấp 4 mái Nhật đẹp đang dần trở thành xu hướng lựa chọn của nhiều gia đình Việt nhờ vẻ thanh lịch, tiện nghi và gần gũi. Công trình của anh Cường ở Hưng Yên do Maxhome thiết kế sở hữu diện tích 145m2, ngôi nhà mang lại cảm giác rộng rãi, sang trọng nhưng vẫn giữ được nét ấm cúng đặc trưng của kiến trúc nhà vườn truyền thống.
Ngay từ góc nhìn đầu tiên, mẫu nhà cấp 4 mái Nhật đẹp này đã ghi điểm với hình khối cân đối cùng mái ngói xanh than nổi bật trên nền tường trắng thanh lịch. Phần mặt tiền 9,5m được Maxhome xử lý tinh tế với bố cục đối xứng và đường nét rõ ràng. Nổi bật ở đây là hệ cột vuông ốp gạch màu vàng nhạt và có thêm đường kẻ chỉ màu xanh giúp mang lại cảm giác vững chãi đồng thời là điểm nhấn sang trọng ngay từ sảnh chính.

Xen giữa các mảng tường trắng là những đường kẻ chỉ sơn xanh ghi nhẹ nhàng để tạo chiều sâu cho không gian, nhờ đó mà ngôi nhà của anh Cường cũng trở nên mềm mại hơn. Cửa chính bằng thép vân gỗ kết hợp kính cường lực giúp ánh sáng tự nhiên tràn ngập bên trong, tạo cảm giác ấm áp và gần gũi. Đây là một chi tiết thường thấy ở những mẫu nhà cấp 4 mái Nhật đẹp mà Maxhome luôn ưu tiên để tối ưu thẩm mỹ và công năng.

Xung quanh mẫu nhà cấp 4 mái Nhật đẹp là khuôn viên được quy hoạch gọn gàng với lối đi lát gạch chống trơn và bồn hoa xanh mát ôm sát chân tường. Việc bố trí cây cảnh nhỏ và chậu hoa ở gần bậc tam cấp không chỉ tạo điểm nhấn mềm mại mà còn tăng thêm sinh khí cho ngôi nhà. Lưu ý rằng, tại vị trí bồn hoa sát tường nhà cần phải được thi công chống thấm thật tốt để tránh bị ẩm mốc công trình, gây hư hỏng kết cấu.

Nhìn tổng thể từ trên cao, căn nhà cấp 4 phô diễn được dáng mái độc đáo đặc trưng của kiến trúc Nhật Bản với các lớp mái đua ra bốn hướng tạo cảm giác uyển chuyển nhưng không rối mắt. Nhờ thiết kế mở, mẫu nhà đẹp này cũng được đón gió tự nhiên tốt và tạo sự thông thoáng cho toàn bộ không gian sinh hoạt. Đặc biệt, phần chân tường được ốp gạch thẻ màu ghi đậm vừa chống ẩm, chống bẩn vừa làm nền cho phần thân nhà nổi bật hơn. Đây là một yếu tố khiến mẫu nhà cấp 4 mái Nhật đẹp của anh Cường trở nên khác biệt và thu hút ánh nhìn ngay từ xa.

Kiểu mái Nhật với độ dốc vừa phải không chỉ tạo cảm giác bề thế mà còn giúp thoát nước nhanh, tránh thấm dột trong mùa mưa bão. Hệ mái được thi công bằng ngói cao cấp Maxhome M05 kết hợp vì kèo siêu nhẹ vừa đảm bảo độ bền vượt trội vừa mang tính thẩm mỹ cao. Sự phối hợp giữa mái xanh và tường trắng cùng màu xanh ghi khiến tổng thể trở nên tinh tế, trẻ trung mà vẫn sang trọng, chuẩn phong cách của một nhà cấp 4 mái Nhật đẹp hiện đại.

Không chỉ chú trọng vào vẻ ngoài, Maxhome còn đề cao tính bền vững trong từng chi tiết vật liệu. Hệ ngói Maxhome được bảo hành trên 20 năm cùng sơn Maxhome ngoại thất cao cấp giúp bề mặt tường luôn bền màu trước thời tiết khắc nghiệt. Sự đầu tư kỹ lưỡng này thể hiện phong cách làm việc chuyên nghiệp, tận tâm của Maxhome trong mỗi dự án, đặc biệt là các mẫu nhà cấp 4 mái Nhật đẹp mà thương hiệu này đã thực hiện khắp cả nước.

Maxhome đã đến tận nơi để đo đạc đất đai và ghi nhận hình ảnh xác thực nhất mẫu đất nhà anh Cường, sau đó mới lên bản thiết kế nhà cấp 4 mái Nhật đẹp, chuẩn xác từng milimet, đảm bảo công năng và hướng phong thuỷ tốt nhất cho gia chủ. Trong quá trình thiết kế, anh Cường được đội ngũ thiết kế Maxhome tư vấn chi tiết và đáp ứng tốt các yêu cầu của anh, khi nhận được bộ hồ sơ đầy đủ từ mặt bằng, điện, nước, kết cấu,… anh rất ưng và hài lòng.


Công năng của mẫu nhà cấp 4 mái Nhật đẹp này đã được bố trí hợp lý để đảm bảo sự tiện nghi và thoáng đãng trong sinh hoạt hằng ngày. Từ sảnh chính bước vào là phòng khách rộng rãi đón tiếp khách và sinh hoạt chung của gia đình, cạnh đó là phòng thờ trang trọng. Khu vực phòng bếp kết hợp phòng ăn được đặt về phía sau và cạnh ngay sảnh phụ giúp thuận tiện cho việc nấu nướng và tránh bị ám mùi nấu nướng nhiều trong nhà.

Ngôi nhà này có tới 4 phòng ngủ được phân chia khoa học giúp mang lại không gian riêng tư và yên tĩnh cho từng thành viên. Ngoài ra, 2 nhà vệ sinh được bố trí hợp lý giúp tối ưu việc sử dụng và đảm bảo sự tiện nghi trong sinh hoạt hằng ngày. Tổng thể công năng thể hiện sự tính toán kỹ lưỡng của Maxhome vừa tiện dụng vừa phù hợp với lối sống hiện đại của gia đình anh Cường.











