Mẫu nhà cấp 4 mái Nhật ngói nâu đỏ đẹp bất ngờ đang gây sốt tại Lâm Đồng | MH05748

Chủ đầu tư: Chị Đỗ Thị Tính Số tầng: 1
Địa chỉ: Đạ Tẻh, Lâm Đồng Diện tích xây dựng: 16,4 x 16m
Loại hình: Nhà mái Nhật hiện đại Tổng diện tích: 176m2
Công năng:

Phòng khách, phòng bếp ăn, 3 phòng ngủ, 2 wc

Sở hữu vẻ đẹp nổi bật giữa thiên nhiên trong lành của Lâm Đồng, mẫu nhà cấp 4 mái Nhật lợp ngói nâu đỏ đang trở thành lựa chọn được nhiều gia chủ săn đón. Thiết kế vừa hiện đại vừa ấm cúng, kết hợp gam màu ngói nâu đỏ sang trọng giúp công trình dễ dàng thu hút ánh nhìn ngay từ phút đầu tiên. Không chỉ ghi điểm về thẩm mỹ, mẫu nhà còn được đánh giá cao bởi công năng khoa học, phù hợp với gia đình trẻ lẫn gia đình nhiều thế hệ.

Công trình nhà cấp 4 mái Nhật này được thiết kế theo phong cách hiện đại, nổi bật với các mảng khối vuông vắn và đường nét gọn gàng. Thay vì sử dụng phào chỉ như những mẫu nhà tân cổ điển, kiến trúc hiện đại ưu tiên các mảng ốp trang trí, vật liệu ngoại thất bền màu và cách phối hợp chất liệu tinh tế. Nhờ đó, tổng thể công trình trở nên thanh thoát, sang trọng và thể hiện rõ nét cá tính của gia chủ.

Ngôi nhà cấp 4 mái Nhật được thiết kế với phong cách nhẹ nhàng, tinh giản nhưng vẫn giữ được sự sang trọng. Gam màu trắng được chọn làm chủ đạo, kết hợp hài hòa với sắc nâu đỏ tại các mảng tường gần chân công trình và khu vực viền mái, tạo nên điểm nhấn ấm áp và nổi bật. Mặt tiền sử dụng gạch trang trí giúp tăng tính thẩm mỹ, trong khi phần chân tường được ốp đá chẻ vừa tăng độ bền, vừa bảo vệ công trình khỏi tác động của thời tiết và độ ẩm.

Nhà cấp 4 mái Nhật sở hữu mặt tiền rộng 16,4m, vì vậy các kiến trúc sư đã khéo léo chia bố cục thành 3 mảng tỷ lệ hài hòa để tổng thể công trình trở nên cân đối và thu hút hơn. Hệ cột vuông vức được bố trí dọc mặt tiền tạo cảm giác vững chãi, đồng thời ở các rãnh cột còn được trang trí bằng những đường kẻ chỉ màu nâu đỏ, giúp tôn lên chiều sâu và điểm nhấn kiến trúc cho ngôi nhà.

Trong các mẫu thiết kế nhà đẹp của Maxhome, yếu tố tối ưu hóa không gian luôn được đặt lên hàng đầu, tuy nhiên cách bố trí sẽ linh hoạt tùy theo diện tích từng khu đất. Với công trình nhà cấp 4 mái Nhật này, lợi thế về mặt bằng rộng rãi cho phép kiến trúc sư khai thác thêm sảnh phụ, giúp tăng khả năng lấy sáng – thông gió tự nhiên và mang lại sự tiện lợi hơn trong quá trình sinh hoạt hằng ngày.

Từ góc nhìn trên cao, có thể thấy hệ mái Nhật được mở ra đồng đều theo bốn hướng, tạo nên tổng thể cân đối và đẹp mắt. Toàn bộ mái được lợp ngói kết hợp vì kèo chắc chắn, đảm bảo độ bền và tính thẩm mỹ lâu dài. Mái Nhật ngày càng được nhiều gia chủ lựa chọn bởi chi phí thi công hợp lý hơn so với mái Thái nhưng vẫn đảm bảo khả năng thoát nước nhanh, hạn chế đọng nước và phù hợp với khí hậu Việt Nam.

Hệ thống cổng giữ vai trò quan trọng trong tổng thể kiến trúc. Ở mẫu nhà cấp 4 mái Nhật này, cổng được thiết kế theo phong cách đơn giản nhưng vẫn đảm bảo sự chắc chắn và hiện đại. Cánh cổng sử dụng sắt hộp sơn tĩnh điện chống gỉ, bền màu theo thời gian. Phần tường bao được xây bằng bê tông, đan xen các ô thoáng giúp không gian thông gió tốt hơn, đồng thời tạo cảm giác nhẹ nhàng và thoáng đãng cho khuôn viên ngôi nhà.

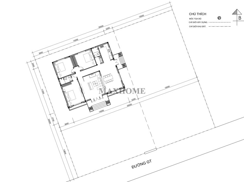
Công trình được xây dựng theo hướng Nam, với kích thước khu đất là 16,4 x 16m. Tổng diện tích sử dụng của ngôi nhà đạt khoảng 176m², đủ để bố trí các không gian sinh hoạt tiện nghi, đảm bảo sự thông thoáng và thuận tiện cho cả gia đình. Việc xây dựng theo hướng Nam giúp ngôi nhà đón ánh sáng tự nhiên, đồng thời tạo luồng gió mát, mang lại không gian sống thoải mái và hài hòa với thiên nhiên.

Mặt bằng định vị công trình

Từ sảnh chính bước vào là không gian phòng khách rộng rãi, thiết kế thông thoáng và thuận tiện cho sinh hoạt chung của gia đình. Tiếp nối là khu vực bếp – ăn, được bố trí gần sảnh phụ để tăng khả năng lưu thông không khí và thuận tiện khi di chuyển. Bên cạnh bếp là khu giặt rửa và một nhà vệ sinh chung, đảm bảo sự tiện lợi cho cả gia đình. Ngôi nhà cấp 4 này gồm 3 phòng ngủ, trong đó phòng ngủ số 01 được trang bị nhà vệ sinh khép kín bên trong, mang lại sự riêng tư và tiện nghi tối đa cho chủ nhân.

Mặt bằng bố trí công năng nhà cấp 4

Yêu cầu tư vấn

    *Vui lòng để lại thông tin, nhân viên tư vấn sẽ liên hệ lại quý khách trong thời gian sớm nhất