Mẫu nhà cấp 4 mái Thái 2 phòng ngủ đẹp, sang trọng và tinh tế | MH06035
| Chủ đầu tư: Chú Hội | Số tầng: 1 |
| Địa chỉ: Hải Phòng | Diện tích xây dựng: 8 x 13,5m |
| Loại hình: Nhà mái Thái tân cổ điển | Tổng diện tích: 112m2 |
| Công năng:
Phòng khách, phòng thờ, phòng bếp, 2 phòng ngủ, 1 wc |
|
Mẫu nhà cấp 4 mái Thái 2 phòng ngủ Maxhome thiết kế cho gia đình chú Hội tại Hải Phòng là lựa chọn lý tưởng cho những gia chủ đề cao sự tiện nghi nhưng vẫn mong muốn một không gian sống sang trọng và chỉn chu về thẩm mỹ. Với cách tổ chức mặt bằng khoa học, mẫu nhà này giúp tối ưu công năng sử dụng, kiểm soát chi phí xây dựng hiệu quả mà không làm mất đi giá trị kiến trúc tổng thể. Sự hài hòa giữa hình khối, mái Thái thanh thoát và ngôn ngữ thiết kế tinh tế mang đến một tổ ấm bền vững, phù hợp xu hướng sống hiện đại và lâu dài.
Ấn tượng đầu tiên đến từ hình khối kiến trúc mạch lạc, cân đối, được tổ chức theo trục đối xứng chuẩn mực. Khối nhà chính vững chãi, kết hợp các mảng tường giật cấp nhẹ nhàng, tạo chiều sâu và sự chuyển tiếp mềm mại cho tổng thể. Các khối mái, khối sảnh và hệ cột được sắp đặt có chủ ý, giúp công trình vừa giữ được nét truyền thống quen thuộc, vừa mang tinh thần tinh giản của kiến trúc hiện đại. Chính sự tiết chế trong bố cục đã tạo nên một mẫu nhà cấp 4 mái Thái 2 phòng ngủ đẹp bền vững, không phô trương nhưng đủ để khẳng định đẳng cấp.

Ngôn ngữ kiến trúc được thể hiện rõ nét qua hệ phào chỉ tinh tế, vừa đủ để tạo chiều sâu thẩm mỹ mà không gây rối mắt. Các chi tiết phào được xử lý gọn gàng ở đầu hồi, sảnh chính và hệ cột, mang hơi hướng tân cổ điển nhẹ nhàng. Điều này giúp công trình giữ được vẻ sang trọng, trang nhã, phù hợp với nhiều thế hệ trong gia đình và không lo lỗi thời theo thời gian. Đây cũng chính là ưu điểm khiến mẫu nhà cấp 4 mái Thái luôn có sức hút bền bỉ trên thị trường.

Khu vực sảnh chính được thiết kế trang trọng với hệ cột vuông chắc chắn, kết hợp mái vòm nhẹ và đèn chùm trang trí, tạo cảm giác chào đón ngay từ ánh nhìn đầu tiên.
Cửa chính sử dụng vật liệu gỗ tự nhiên tone nâu ấm, không chỉ tăng giá trị thẩm mỹ mà còn mang ý nghĩa phong thuỷ tốt, tượng trưng cho sự sung túc và bền vững. Những chi tiết này góp phần nâng tầm diện mạo ngôi nhà, biến công trình cấp 4 quen thuộc trở thành một không gian sống đẳng cấp.

Bảng màu ngoại thất được phối hợp tinh tế giữa các gam trung tính như trắng, ghi và nâu nhạt, tạo nên tổng thể hài hòa, thanh lịch. Sự chuyển sắc nhẹ nhàng giữa các mảng tường, phào chỉ và chân đế ốp đá giúp công trình vừa nổi bật, vừa giữ được vẻ sang trọng lâu dài. Đặc biệt, vật liệu trang trí được lựa chọn kỹ lưỡng không chỉ đảm bảo tính thẩm mỹ mà còn giúp bảo vệ bề mặt công trình trước tác động của thời tiết, giảm chi phí bảo trì trong quá trình sử dụng.

Hệ mái Thái là điểm nhấn chủ đạo, góp phần tạo nên diện mạo sang trọng và bề thế cho ngôi nhà. Mái được thiết kế giật cấp nhiều lớp, độ dốc hợp lý, không chỉ giúp thoát nước nhanh, chống nóng hiệu quả mà còn tạo nên hình khối cao ráo, thanh thoát. Gam màu mái xanh than sang trọng kết hợp với viền mái trắng sắc nét làm nổi bật đường nét kiến trúc, đồng thời mang lại cảm giác vững chãi, an tâm – yếu tố luôn được các gia chủ đặc biệt coi trọng khi lựa chọn mái nhà.
Khoảng sân rộng rãi, lát gạch gọn gàng kết hợp tiểu cảnh được bố trí hợp lý, mang lại cảm giác thư thái và gần gũi với thiên nhiên. Sự kết nối mượt mà giữa kiến trúc và cảnh quan giúp ngôi nhà không chỉ đẹp về hình thức mà còn tạo nên môi trường sống trong lành, lý tưởng cho sinh hoạt hàng ngày và nghỉ ngơi lâu dài.

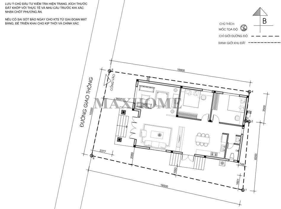
Ngôi nhà cấp 4 mái Thái 2 phòng ngủ được xây dựng trên khu đất rộng rãi, sở hữu lợi thế tiếp giáp trục giao thông lớn, mang lại tầm nhìn thoáng đãng và khả năng kết nối thuận tiện. Với quy mô xây dựng 8 x 13,5m, công trình được chừa khoảng sân phía trước rộng rãi, đóng vai trò như lớp không gian đệm lý tưởng cho việc đỗ xe và sinh hoạt ngoài trời. Khối nhà chính được bố trí lùi về phía sau và lệch nhẹ về một bên khu đất, qua đó mở rộng diện tích sân vườn bao quanh, giúp mọi không gian trong nhà đều đón trọn ánh sáng tự nhiên và luồng gió lưu thông hài hòa.

Mặt bằng công năng được bố trí khoa học, đảm bảo sự thuận tiện và thông thoáng trong quá trình sử dụng. Từ sảnh chính bước vào là không gian phòng khách trung tâm, liên kết trực tiếp với khu vực bếp – ăn gọn gàng, tối ưu giao thông nội bộ. Hai phòng ngủ được bố trí về phía sau, đảm bảo sự riêng tư và yên tĩnh, kết hợp phòng thờ đặt tại vị trí trang nghiêm, hài hòa phong thuỷ, cùng khu vệ sinh chung bố trí hợp lý, đáp ứng đầy đủ nhu cầu sinh hoạt của gia đình.











