Mẫu nhà cấp 4 nhỏ xinh tặng ba mẹ dưỡng già ở vùng thôn quê | MH05969

Chủ đầu tư: Chị Nguyễn Thị Kim Chi Số tầng: 1
Địa chỉ: Long Khánh, Đồng Nai Diện tích xây dựng: 8,7 x 16,8m
Loại hình: Nhà mái Nhật hiện đại Tổng diện tích: 110m2
Công năng:

Phòng khách, phòng thờ, phòng bếp, 2 phòng ngủ, 2 wc, 1 phòng tắm

Chắc hẳn nhiều người có mong muốn xây được một căn nhà nhỏ gửi tặng ba mẹ để nghỉ ngơi khi về già. Maxhome cũng vừa mới hoàn thiện bản thiết kế mẫu nhà cấp 4 nhỏ xinh với 2 phòng ngủ đẹp cùng các công năng tiện nghi khác ở bên trong để bạn khám phá. Mời bạn tham khảo thử bản vẽ này nhé, công trình thuộc chủ đầu tư là chị Chi ở Đồng Nai.

Xuất hiện giữa vùng đất Đồng Nai, một mẫu nhà cấp 4 điển hình với hệ mái Nhật khang trang phía trên làm nổi bật giữa vùng trời quê. Tuy công trình là nhà cấp 4 nhưng lại rất cao ráo với chiều cao 7,2m bề thế và uy nghi, độ cao này sẽ không làm căn nhà chị Chi bị lọt thỏm giữa nhưng mẫu nhà 2 tầng xung quanh vì nền nhà được nâng lên rất cao. Bậc thềm nâng cao 750mm tạo thành 5 bậc tam cấp dẫn lối vào không gian sinh hoạt bên trong, chào đón mọi khách mời tới chơi nhà.

mau-nha-cap-4-nho-xinh-tang-ba-me-duong-gia-o-vung-thon-que-10

Tiếp đến, phối cảnh màu sắc 3D hiện lên rất rõ ràng và mạch lạc với từng chi tiết thiết kế. Màu sắc trắng kết hợp màu xanh dương tạo ra sự tương phản sắc màu rất ấn tượng giúp ngôi nhà cấp 4 trở nên hiện đại và khỏe khoắn hơn. Sự kết hợp này còn mang lại cảm giác dịu mát và hài hòa với cảnh quan thiên nhiên xung quanh hơn. Các mảng khối kiến trúc được phân tách rõ rệt nhờ hệ thống ánh sáng tự nhiên làm tôn lên vẻ đẹp tinh tế của các vật liệu hiện đại như kính cường lực và gạch ốp trang trí. Tổng thể tạo nên một không gian sống không chỉ tiện nghi về công năng mà còn đầy sức sống, khẳng định gu thẩm mỹ riêng biệt của gia chủ.

mau-nha-cap-4-nho-xinh-tang-ba-me-duong-gia-o-vung-thon-que-9

mau-nha-cap-4-nho-xinh-tang-ba-me-duong-gia-o-vung-thon-que-1

Hệ cột vuông của mẫu nhà cấp 4 được thiết kế với kích thước lớn, phân cấp rõ rệt với phần chân cột được ốp đá sẫm màu tạo cảm giác nâng đỡ vững chãi cho toàn bộ hệ mái phía trên. Bên cạnh đó, các đèn hắt sáng được bố trí cân xứng trên các thân cột mang tới ánh sáng để ngôi nhà trở nên lung linh và nổi bật hơn vào ban đêm. Luồng sáng từ đèn không chỉ phục vụ mục đích chiếu sáng lối đi mà còn tạo ra những khoảng sáng tối nghệ thuật, tôn vinh các đường nét kiến trúc của sảnh chính.

mau-nha-cap-4-nho-xinh-tang-ba-me-duong-gia-o-vung-thon-que-11

Hệ mái Nhật với những lớp ngói màu xanh ghi được thiết kế dốc nhẹ giúp thoát nước và đồng thời tạo nên vẻ thanh thoát, cao ráo cho tổng thể công trình. Sự tinh tế còn thể hiện ở việc sử dụng các đường phào chỉ kẻ ngang âm tường chạy dọc quanh nhà giúp xóa tan sự đơn điệu của những mảng tường trắng.

mau-nha-cap-4-nho-xinh-tang-ba-me-duong-gia-o-vung-thon-que-8

Ngoài ra, hệ thống cửa chính và cửa sổ sử dụng chất liệu kính cường lực khung nhôm xingfa đen cao cấp giúp tối ưu hóa ánh sáng tự nhiên và mở ra tầm nhìn thoáng đạt ra không gian sân vườn. Đặc biệt, phần chân tường được ốp đá xám vững chãi vừa có tác dụng bảo vệ công trình khỏi tác động của thời tiết vừa góp phần hoàn thiện diện mạo sang trọng và bền vững cho ngôi nhà cấp 4 nhỏ xinh của gia đình chị Chi.

mau-nha-cap-4-nho-xinh-tang-ba-me-duong-gia-o-vung-thon-que-11
Mặt bằng định vị công trình

Công trình nhà cấp 4 được đặt trên một khuôn viên đất rộng lớn với diện tích lý tưởng, có chiều ngang mặt tiền 34,3m và chiều sâu kéo dài hơn 61m. Ngôi nhà được định vị lùi sâu vào bên trong, cách chỉ giới đường đỏ một khoảng 12m tạo không gian đệm rộng rãi phía trước cho sân vườn và giảm thiểu tiếng ồn từ đường giao thông. Phía sau và bên hông công trình vẫn giữ được những khoảng lùi kỹ thuật hợp lý giúp tối ưu hóa sự thông thoáng và dễ dàng bố trí hệ thống cây xanh bao quanh, mang lại cảnh quan xanh mát cho toàn bộ khu đất.

mau-nha-cap-4-nho-xinh-tang-ba-me-duong-gia-o-vung-thon-que-7

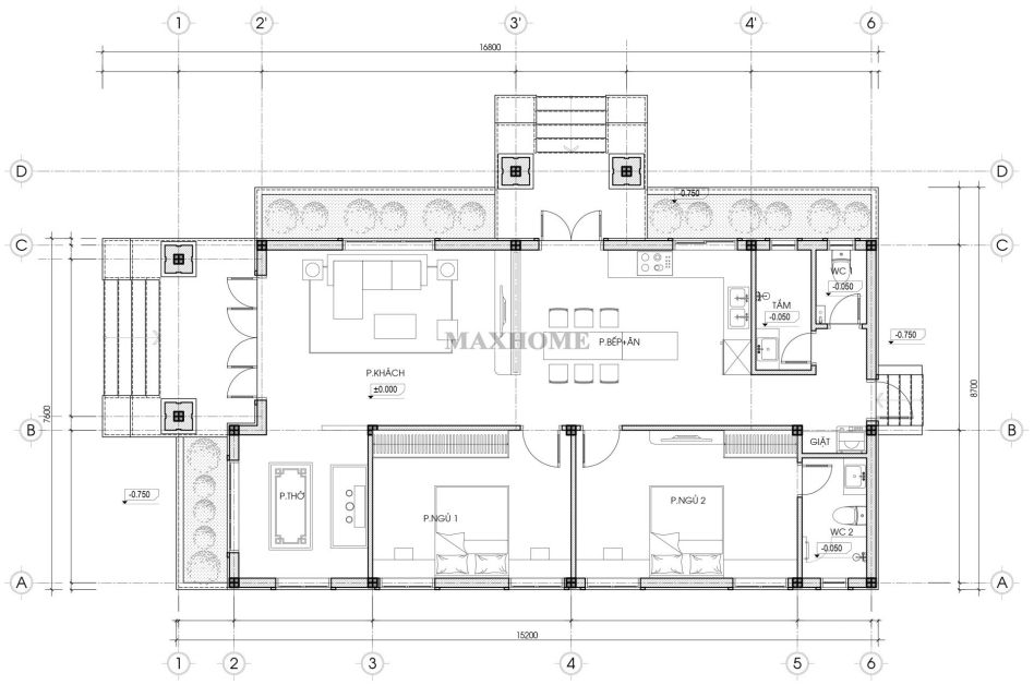
Với kích thước xây dựng 8,7×16,8m, không gian nội thất được phân chia khoa học để tập trung vào sự tiện nghi và thông thoáng. Từ sảnh chính đi vào là phòng khách rộng rãi, kết nối trực tiếp với khu vực phòng bếp và bàn ăn ở trung tâm nhà, tạo không gian sinh hoạt chung ấm cúng.

mau-nha-cap-4-nho-xinh-tang-ba-me-duong-gia-o-vung-thon-que-12
Mặt bằng bố trí công năng nhà cấp 4 nhỏ xinh

Ngôi nhà sở hữu 2 phòng ngủ lớn được đặt cạnh nhau, cùng hướng về một phía để tận dụng ánh sáng tự nhiên qua hệ cửa sổ lớn. Khu vực tâm linh với phòng thờ được bố trí trang trọng tại một góc riêng biệt giúp đảm bảo sự yên tĩnh. Các khu vực phụ trợ như khu giặt phơi và 2 nhà vệ sinh (trong đó có 1 nhà vệ sinh khép kín) được đặt gọn gàng phía cuối nhà giúp tối ưu diện tích và thuận tiện trong sinh hoạt hàng ngày.

Yêu cầu tư vấn

    *Vui lòng để lại thông tin, nhân viên tư vấn sẽ liên hệ lại quý khách trong thời gian sớm nhất