Mẫu nhà phố 2 tầng 1 tum hiện đại sang trọng tại Đà Nẵng | MH46494
| Chủ đầu tư: Lê Thanh | Số tầng: 3 |
| Địa chỉ: Me Thứ, Hoà Xuân, Đà Nẵng | Diện tích xây dựng: 5 x 19m |
| Loại hình: Nhà phố mái bằng hiện đại | Tổng diện tích: 238m22 |
Công năng:
|
|
Nhà Phố là lựa chọn phổ biến của nhiều gia đình tại các khu đô thị đông đúc đặc biệt ở TP. Đà Nẵng Với mặt tiền rộng 5m và chiều cao ấn tượng ngôi nhà vừa đảm bảo không gian sinh hoạt tiện nghi vừa dễ kết hợp kinh doanh hiệu quả.Trong bài viết này Maxhome sẽ giới thiệu mẫu nhà phố 3 tầng 5x19m của anh Thanh tại Đà Nẵng – thiết kế hiện đại công năng khoa học và nhu cầu thực tế của gia chủ hãy cùng khám phá chi tiết ngay sau đây!

Ngay từ góc nhìn đầu tiên căn nhà 3 tầng mặt tiền 5m nổi bật với khối hình học vuông vức toát lên vẻ kiên cố và hiện đại. Công trình không sử dụng các chi tiết trang trí rườm rà mà kiến trúc tập trung vào tỷ lệ hình khối và sự sắc nét trong từng đường nét mỗi góc ảnh 3D đều thể hiển rõ tay nghề của kiến trúc sư Maxhome tỉ mỉ trong thiết kế.


Cổng sắt sơn tĩnh điện với họa tiết ô vuông hiện đại vừa đảm bảo an toàn vừa giữ được độ thoáng để quan sát từ trong ra ngoài.Việc bố trí các chậu cây tại ban công giúp điều hòa không khí mang lại sức sống cho công trình.Ban công là nơi tiếp giáp trực tiếp với môi trường bên ngoài cây xanh đóng vai trò trang trí thêm không gian xanh giúp gia chủ cảm thấy thư thái hơn.

Màu sắc chủ đạo mang lại vẻ đẹp thanh lịch sạch sẽ và tạo cảm giác không gian rộng mở hơn.Những mảng trần và tường được ốp gỗ màu nâu tạo sự gần gũi dưới ánh sáng ban ngày hay đèn điện ban đêm màu nâu gỗ tạo nên sự tương phản mạnh mẽ với các mảng tường trắng, giúp các khối kiến trúc trở nên rõ nét và có chiều sâu hơn.Các khung cửa lớn và lan can kính giúp đón trọn ánh sáng tự nhiên vào nội thất đồng thời mang lại diện mạo thời thượng.

Góc nhìn từ trên cao cho thấy phần mái được thiết kế phẳng bố trí gọn gàng hệ thống năng lượng mặt trời và bồn nước inox.Gạch lát sân thượng đóng vai trò là bảo vệ lớp bê tông và lớp màng chống thấm bên dưới Điều này giúp giảm nhiệt độ cho không gian sống ở tầng dưới giúp ngôi nhà mát mẻ hơn phía trên khối tum có thiết kế ô kính giếng trời đưa ánh sáng tự nhiên trực tiếp xuống khu vực cầu thang giải quyết triệt để vấn đề thiếu sáng thường gặp của nhà phố dài.
Khác với nhiều nhà phố thường xây kín mít phía sau thiết kế này mở ra các khoảng đón sáng thông minh giúp lưu thông không khí tại đây phía sau tầng 2 Maxhome cũng thiết kế hệ kính khung thép hộp sơn tĩnh điện giúp che mưa che nắng mà còn là giải pháp giúp lấy sáng tự nhiên cho phòng phía sau và bảo vệ hệ cửa kính khỏi tác động của thời tiết.

Tầng 1 khu vực phía trước nhà được thiết kế với chiều dài đủ sâu để đỗ vừa một chiếc ô tô và có thể kết hợp để thêm một vài chiếc xe máy. khu vực (khách 21,1m2 bếp 20m2) được kết nối thông suốt tạo không gian rộng rãi thoải mái sinh hoạt cho các thành viên gia đình.phòng ngủ 14,6m2 và khu vệ sinh 4,5m2 được thiết kế tách biệt hẳn phía sau không ảnh hưởng đến không gian tiếp khách.

Tầng 2 chúng tôi mang đến một không gian nghỉ ngơi đúng nghĩa. Với cách bố trí phòng ngủ Master phía trước có ban công rộng và phòng ngủ phía sau có thiết kế ban công để mọi thành viên đều được tận hưởng bầu không khí trong lành và lấy ánh sáng không khí trong lành.Khu sinh hoạt chung ở giữa đóng vai trò như một không gian để các thành viên có thể dừng chân tại đây để trò chuyện, đọc sách hoặc cùng xem TV.

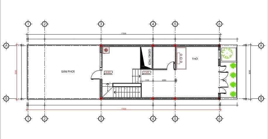
Cuối cùng, chúng ta đến với tầng thượng. Phía trước là phòng thờ trang nghiêm kết nối với sân thượng rộng mở – nơi gia chủ có thể tìm thấy sự tĩnh lặng giữa lòng phố thị. Phía sau được dành riêng cho khu vực giặt phơi tiện lợi và kín đáo là khu vực lý tưởng để làm sân phơi đồ (vừa kín đáo vừa đón nắng tốt). Toàn bộ tầng 3 được thiết kế như một ‘lá chắn’ bảo vệ và điều hòa không khí cho các tầng phía dưới.”
Đây là một mẫu nhà tiêu biểu cho xu hướng nhà phố hiện nay: Sang trọng – Hiện đại. Nó không chỉ khẳng định gu thẩm mỹ của gia chủ mà còn đảm bảo một không gian sống tiện nghi, thoáng đãng











