Mẫu nhà phố 2 tầng 1 tum nhỏ xinh, đẹp hút mắt từ mọi góc nhìn | MH05803

Chủ đầu tư: Anh Đỗ Văn Hoài Số tầng: 2 tầng 1 tum
Địa chỉ: Đà Lạt, Lâm Đồng Diện tích xây dựng: 7,4 x 16,2m
Loại hình: Nhà phố mái bằng hiện đại Tổng diện tích: 190m2
Công năng:
  • Tầng 1: Phòng khách, phòng bếp, 1 phòng ngủ, 2 wc
  • Tầng 2: Phòng thờ, phòng sinh hoạt chung, 2 phòng ngủ, 2 wc, giặt phơi
  • Tầng tum: Sân thượng

Khi quỹ đất tại các đô thị ngày càng thu hẹp, mẫu nhà phố 2 tầng 1 tum hiện đại trở thành lựa chọn hàng đầu nhờ khả năng khai thác tối đa diện tích. Mẫu nhà này không chỉ đáp ứng nhu cầu sinh hoạt của gia đình mà còn tạo ấn tượng bằng phong cách kiến trúc sang trọng và hiện đại, phản ánh rõ gu thẩm mỹ của gia chủ. Nhờ cách bố trí công năng linh hoạt và hợp lý, không gian sống luôn thoáng sáng, tận dụng tốt ánh sáng tự nhiên và gió trời, giúp gia đình anh Hoài tại Lâm Đồng cảm thấy thoải mái trong sinh hoạt mỗi ngày.

Ngôi nhà phố 2 tầng 1 tum gây ấn tượng mạnh với hình khối kiến trúc vuông vức, khỏe khoắn, được kết hợp khéo léo cùng những đường cong bo tròn tinh tế. Chính sự đan xen giữa đường nét mạnh mẽ và sự mềm mại trong tạo hình đã tạo nên vẻ ngoài độc đáo, cuốn hút ánh nhìn ngay từ cái nhìn đầu tiên. Không chỉ dừng lại ở thẩm mỹ, những đường cong này còn giúp giảm bớt cảm giác khô cứng thường thấy ở nhà phố, mang lại sự nhẹ nhàng và gần gũi cho tổng thể.

Màu trắng được chọn làm tông chủ đạo giúp tổng thể công trình toát lên vẻ hiện đại, thanh lịch và nhẹ nhàng. Ở tầng 1, lớp gạch giả đá cao cấp tạo điểm nhấn sang trọng đồng thời tăng độ bền cho phần mặt ngoài trước nắng mưa và bụi bẩn. Cửa kính khung gỗ nâu kết hợp cùng gỗ nhựa conwood ốp trên hệ lam thép hộp tạo nên một mặt tiền hài hòa, vừa ấm cúng vừa chắc chắn, đồng thời che phủ gọn gàng toàn bộ khu vực sân.

Lên đến tầng 2, mảng tường sơn giả đá ghi xám mang đến cảm giác vững chãi và hiện đại hơn. Chi tiết đường cong mềm tạo chiều sâu cho bố cục, giúp mặt tiền trở nên sống động và có điểm nhấn. Sự kết hợp giữa chất liệu, màu sắc và đường nét đã tạo nên một kiến trúc cân bằng, tinh tế và đầy cá tính.

Tổng thể công trình nhà phố 2 tầng 1 tum hiện lên rõ nét với vẻ đẹp cân đối, hài hòa. Ban công được trang bị lan can sắt sơn tĩnh điện với thiết kế gọn và thoáng, vừa giữ sự an toàn, vừa tạo cảm giác nhẹ nhàng cho mặt tiền.

Các ô cửa được bố trí khéo léo ở các mặt nhà, đảm bảo mỗi phòng đều có khả năng đón ánh sáng tự nhiên và gió trời. Hệ cửa kính khung nhôm Xingfa được sử dụng đồng bộ, không chỉ mang lại sự hiện đại mà còn tăng khả năng cách âm, cách nhiệt, nâng cao chất lượng không gian sống.

Không gian xanh được bố trí tinh tế từ tầng 1 đến ban công và khu vực tum, mang đến cảm giác gần gũi với thiên nhiên, giúp ngôi nhà luôn tràn đầy sức sống và thoáng đãng. Những chậu cây nhỏ được sắp đặt hợp lý không chỉ tạo điểm nhấn mềm mại cho kiến trúc hiện đại mà còn góp phần điều hòa không khí, giảm bức xạ nhiệt cho toàn bộ công trình.

Tại tầng tum, gia chủ bố trí một góc bàn trà nhỏ. Đây là nơi lý tưởng để thư giãn, đọc sách hoặc thưởng thức không khí trong lành mỗi buổi sáng, biến tầng tum thành một khoảng thư giãn yên bình ngay trong chính ngôi nhà.

Tầng tum được thiết kế khá rộng, vừa là nơi đặt bồn nước, hệ thống thái dương năng và giếng trời, vừa có thể linh hoạt sử dụng cho nhiều mục đích khác nhau.

Khu vực này có thể tận dụng làm nơi phơi đồ thoáng gió hoặc biến thành một góc thư giãn riêng tư cho gia đình. Nhờ cách bố trí hợp lý, tầng tum không chỉ tối ưu công năng mà còn góp phần hoàn thiện giá trị thẩm mỹ của toàn bộ ngôi nhà, tạo cảm giác gọn gàng và tiện nghi trong quá trình sử dụng.

Ngôi nhà phố 2 tầng 1 tum được đặt trên khu đất có hướng Đông Bắc, sở hữu mặt tiền rộng 7,4 m và chiều sâu 16,2 m, tổng diện tích sử dụng khoảng 190 m². Với quỹ diện tích này, kiến trúc sư đã khai thác không gian một cách khoa học, sắp xếp các khu vực sinh hoạt hợp lý để đảm bảo sự thuận tiện cho từng thành viên. Mọi không gian đều được tính toán kỹ lưỡng để đạt sự cân bằng giữa công năng và thẩm mỹ, tạo nên một ngôi nhà vừa tiện nghi, vừa đẹp mắt, mang lại cảm giác thoải mái khi sử dụng hàng ngày.

Mặt bằng định vị công trình

Từ sảnh chính bước vào là phòng khách rộng thoáng, được trang trí theo phong cách hiện đại và sang trọng nhưng vẫn giữ cảm giác ấm cúng. Không gian này tạo sự thân thiện và thoải mái cho những buổi tiếp khách của gia đình.

Tiếp nối phòng khách là khu vực cầu thang dẫn đến phòng bếp và bàn ăn. Bếp được bố trí gọn gàng với hệ tủ chữ L và các thiết bị thông minh, giúp việc nấu nướng trở nên tiện lợi hơn. Đối diện là phòng ngủ khép kín dành cho ông bà, đảm bảo sự riêng tư và thuận tiện. Cuối nhà là một nhà vệ sinh chung phục vụ cho toàn bộ không gian tầng một.

Mặt bằng bố trí công năng tầng 1

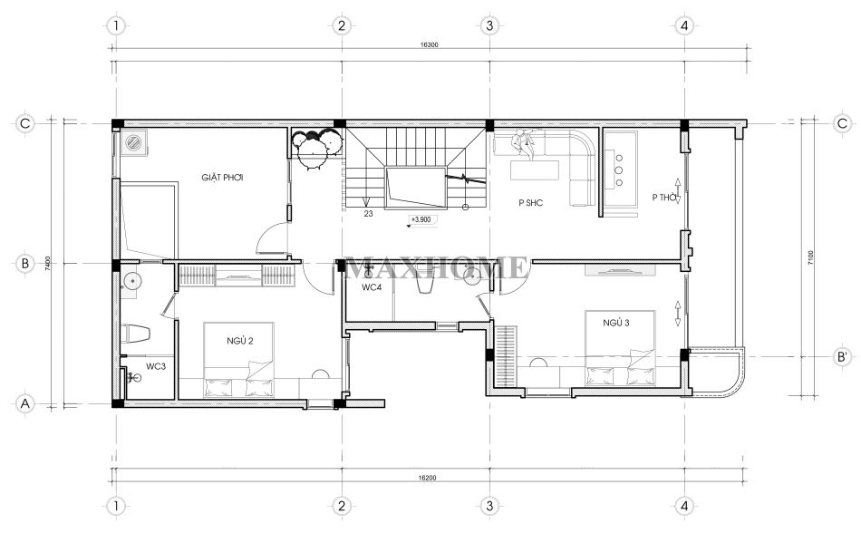
Di chuyển lên tầng 2, không gian đầu tiên là phòng thờ đặt ở nơi linh thiêng và trang trọng nhất trong ngôi nhà. Bàn thờ được đặt ở vị trí cao ráo, hướng bàn thờ theo hướng chính của ngôi nhà, vừa hợp phong thủy, vừa thể hiện lòng thành kính của gia chủ đối với tổ tiên. Ngay cạnh cầu thang là phòng sinh hoạt chung nơi cả gia đình quây quần trò chuyện, thư giãn.

Tầng 2 gồm 2 phòng ngủ được thiết kế tối ưu về công năng và ánh sáng mang đến cảm giác dễ chịu khi sử dụng; trong đó phòng ngủ 02 thiết kế tương đồng phòng ngủ 01. Nhà vệ sinh chung được bố trí ở giữa hai phòng, đảm bảo thuận tiện trong sinh hoạt hàng ngày.

Mặt bằng bố trí công năng tầng 2

Yêu cầu tư vấn

    *Vui lòng để lại thông tin, nhân viên tư vấn sẽ liên hệ lại quý khách trong thời gian sớm nhất