Mẫu nhà phố 2 tầng hiện đại mặt tiền 5m có hàng trăm lượt tham khảo | MH05505
| Chủ đầu tư: Anh Đào Thanh Tú | Số tầng: 2 |
| Địa chỉ: Hạ Long, Quảng Ninh | Diện tích xây dựng: 5 x 17,4m |
| Loại hình: Nhà lô phố hiện đại | Tổng diện tích: 155m2 |
Công năng:
|
|
Giới thiệu tới bạn đọc mẫu nhà phố 2 tầng hiện đại mặt tiền 5m của anh Tú do Maxhome thiết kế đã nhanh chóng thu hút hàng trăm lượt tham khảo. Với kích thước xây dựng 5×17,4m, công trình không chỉ mang đến vẻ đẹp thẩm mỹ tinh tế mà còn thể hiện rõ phong cách sống trẻ trung, năng động của gia chủ.
Mặt tiền ngôi nhà phố 2 tầng hiện đại mặt tiền 5m của anh Tú ở Hạ Long gây ấn tượng ngay từ cái nhìn đầu tiên với bố cục vuông vức, khỏe khoắn và tinh gọn. Gam màu trắng chủ đạo được kết hợp khéo léo cùng mảng tường xám đậm tạo nên sự tương phản tinh tế và sang trọng. Khu vực tầng 1 nổi bật với hệ cửa kính khung nhôm màu đen vừa hiện đại vừa giúp không gian nội thất ngập tràn ánh sáng tự nhiên.

Tầng 2 được thiết kế ban công kính cường lực trong suốt cùng viền khung nhôm thanh mảnh giúp tổng thể mặt tiền thêm phần nhẹ nhàng, thanh thoát. Trần ban công ốp gỗ nhựa nâu ấm mang lại điểm nhấn nổi bật, hài hòa với ánh sáng vàng dịu từ hệ đèn âm trần. Tất cả hòa quyện tạo nên một mặt tiền sang trọng, hiện đại và đầy cuốn hút, chuẩn đặc trưng của phong cách nhà phố 2 tầng hiện đại mặt tiền 5m mà Maxhome thiết kế.


Một trong những chi tiết được yêu thích nhất ở mẫu nhà phố 2 tầng này chính là cách Maxhome xử lý ánh sáng. Khi đêm xuống, hệ đèn âm trần kết hợp đèn hắt tường vàng ấm tạo nên khung cảnh vừa lãng mạn vừa sang trọng. Ban công tầng 2 không chỉ là nơi thư giãn của gia đình mà còn trở thành điểm nhấn giúp mẫu nhà đẹp nổi bật giữa khu phố.

Không thể không nhắc đến vai trò của sơn Maxhome trong việc hoàn thiện vẻ ngoài của ngôi nhà. Dòng sơn cao cấp Maxhome được sử dụng giúp bề mặt tường luôn mịn, sáng và chống bám bụi hiệu quả. Việc lựa chọn đúng mã sơn theo bảng chỉ định Maxhome thiết kế đảm bảo màu sắc chuẩn, bền màu và phù hợp khí hậu ven biển như Hạ Long.

Mẫu nhà phố 2 tầng hiện đại của anh Tú lựa chọn hệ mái bằng kiên cố giúp tiết kiệm chi phí thi công và đồng thời mang lại vẻ đẹp tối giản, phù hợp xu hướng kiến trúc đô thị. Trên mái được xây tường bao cao 900mm và bồn nước inox được bố trí gọn gàng để đảm bảo tính thẩm mỹ mà vẫn tiện dụng. Bề mặt mái được xử lý chống thấm kỹ lưỡng bằng sơn chuyên dụng của Maxhome giúp gia tăng độ bền cho công trình trong điều kiện thời tiết miền Bắc nhiều mưa gió.


Nhìn từ trên cao, toàn bộ căn nhà phố toát lên vẻ chắc chắn, hiện đại và tinh tế. Nhờ cách phối vật liệu thông minh từ đá ốp, kính cường lực, nhôm cửa đến sơn tường, mẫu nhà phố 2 tầng hiện đại mặt tiền 5m của anh Tú mang nét đẹp hiện đại mà vẫn gần gũi, sang trọng nhưng không cầu kỳ. Đây chính là lý do khiến nhiều người tìm đến Maxhome để tham khảo và lấy cảm hứng cho tổ ấm tương lai.

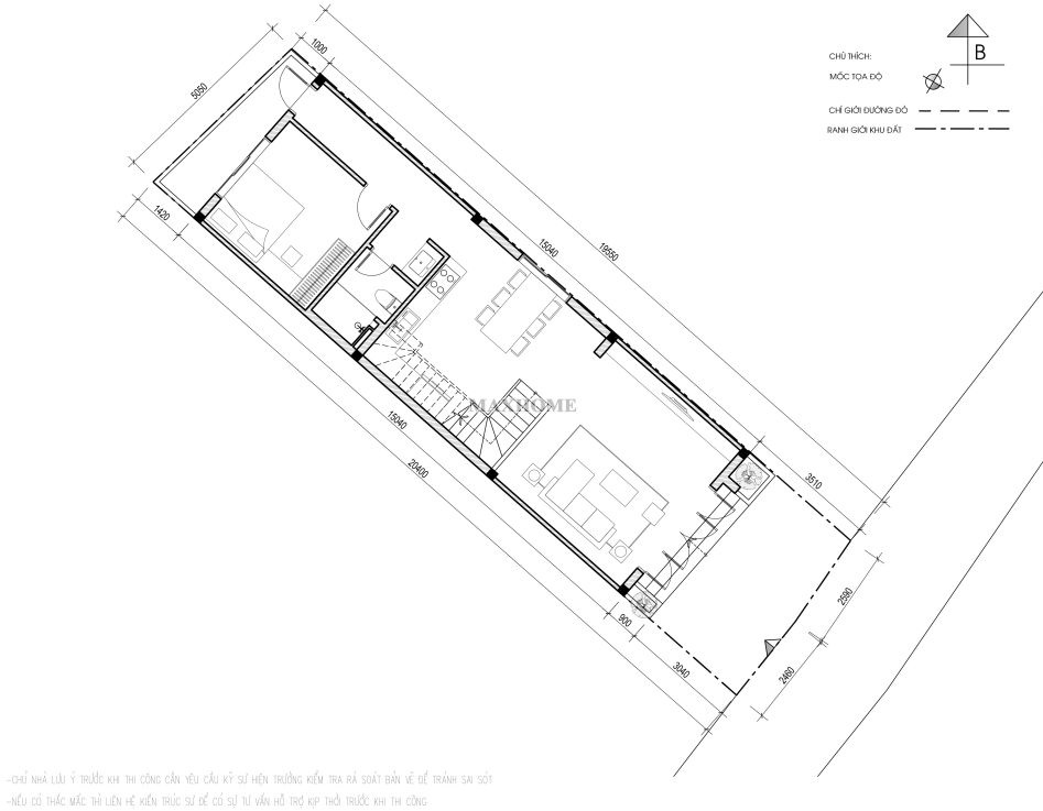
Với kích thước xây dựng 5 x 17,4m, ngôi nhà phố 2 tầng hiện đại mặt tiền 5m được Maxhome bố trí mặt bằng cực kỳ hợp lý, tận dụng tối đa diện tích đất nhưng vẫn đảm bảo độ thoáng và ánh sáng tự nhiên cho từng không gian. Tổng thể công trình được đặt gọn trong ranh đất vuông vắn, mặt tiền hướng ra đường tạo tầm nhìn mở và thuận lợi cho việc di chuyển cũng như lấy gió. Phía sau nhà chừa lại một khoảng sân nhỏ giúp lưu thông không khí đồng thời tăng khả năng chiếu sáng cho phòng ngủ.


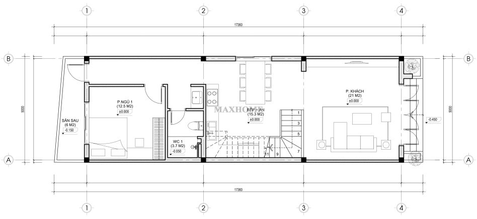
Tầng 1 được thiết kế theo phong cách mở ưu tiên không gian sinh hoạt chung. Ngay sau sảnh chính là phòng khách rộng 21m2 được bố trí bộ sofa lớn cùng hệ cửa kính 4 cánh giúp đón sáng tối đa. Tiếp nối là phòng bếp kết hợp bàn ăn rộng 15,3m2 tạo sự liền mạch trong sinh hoạt và giao tiếp giữa các thành viên. Cầu thang được đặt ở vị trí trung tâm giúp chia không gian hợp lý và tạo trục di chuyển thuận tiện. Cuối nhà là phòng ngủ 01 cùng nhà vệ sinh chung 3,7m2 thoáng khí, không bị bí bách dù diện tích không quá rộng.


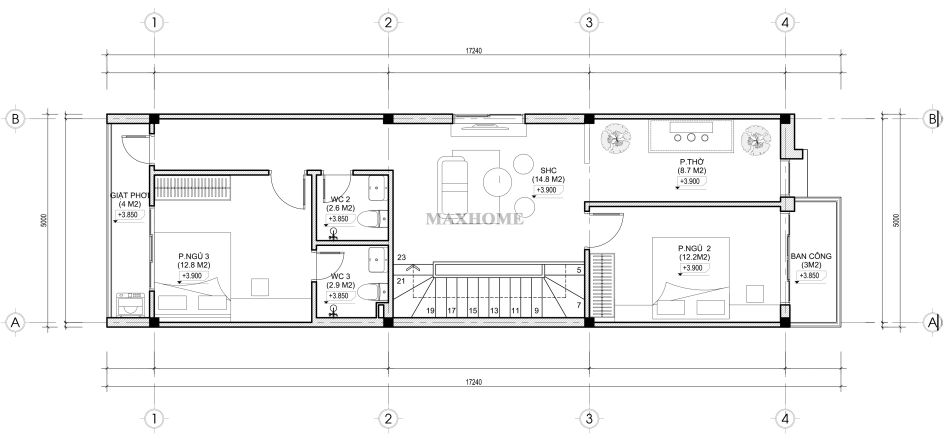
Tầng 2 gồm 2 phòng ngủ rộng 12,2m2 và 12,8m2, mỗi phòng đều có cửa sổ lớn đón ánh sáng tự nhiên. Khu vực sinh hoạt chung rộng 14,8m2 nằm giữa nhà là nơi lý tưởng để cả gia đình quây quần, thư giãn sau ngày dài. Bên cạnh đó, tầng 2 còn có 2 nhà vệ sinh để đảm bảo sự tiện nghi và riêng tư cho từng phòng. Đặc biệt, phía trước là phòng thờ 8,7m2 trang trọng và hợp phong thủy hướng ra ban công 3m2 thoáng đãng để giúp không gian tâm linh trở nên thanh tịnh và sáng sủa. Cuối nhà là khu giặt phơi 4m2 bố trí hợp lý để tách biệt khu vực sinh hoạt chính và giữ cho tầng trên luôn sạch sẽ, gọn gàng.
.











