Mẫu nhà phố 2 tầng hiện đại, sang trọng tại Phú Thọ | MH46359
| Chủ đầu tư: Anh Vinh | Số tầng: 2 |
| Địa chỉ: Phú Thọ | Diện tích xây dựng: 5,5 x 22,2m |
| Loại hình: Nhà phố 2 tầng | Tổng diện tích: 244m2 |
Công năng:
|
|
Trong bối cảnh quỹ đất đô thị ngày càng thu hẹp, những mẫu phối cảnh nhà ống đẹp 2 tầng mặt tiền 5m đang trở thành lựa chọn phổ biến của nhiều gia đình trẻ. Với lợi thế chiều ngang vừa phải, thiết kế đòi hỏi sự tính toán kỹ lưỡng để đảm bảo tính thẩm mỹ, công năng và khả năng lấy sáng tự nhiên. Mẫu thiết kế dưới đây là minh chứng rõ nét cho sự kết hợp hoàn hảo giữa công năng và nghệ thuật.
Maxhome trân trọng giới thiệu mẫu phối cảnh nhà ống 2 tầng đang được nhiều khách hàng quan tâm và lựa chọn trong thời gian gần đây. Với mặt tiền rộng 5m. Kích thước phổ biến tại các khu đô thị, đội ngũ kiến trúc sư đã nghiên cứu và tính toán kỹ lưỡng nhằm tối ưu hình khối, tỷ lệ và cách xử lý mặt đứng để công trình trở nên hiện đại, cân đối hơn. Mẫu nhà phố 2 tầng phong cách hiện đại với thiết kế tối giản nhưng phá cách đang trở thành lựa chọn hàng đầu của các gia đình trẻ.

Phối cảnh 3D mặt tiền
Điểm nhấn đầu tiên của mẫu nhà này chính là những đường nét bo tròn trên tầng 2, được thiết kế với mảng tường bo góc mềm mại ở góc trái ban công, giúp ngôi nhà trông thanh thoát và có “gu” hơn, giảm bớt sự thô cứng của bê tông. Sự kết hợp giữa hệ cửa kính lớn bên trái và cửa sổ nhỏ kèm bồn hoa bên phải tạo nên sự đồng điệu kiến trúc rất hiện đại, không gây nhàm chán.

Phối cảnh 3D góc nghiêng công trình
Màu sắc chủ đạo là sự kết hợp giữa tông trắng sứ chủ đạo và màu ghi xám của khung cửa, cùng màu nâu gỗ của trần ban công tạo nên ấm cúng và sang trọng, đặc biệt nổi bật khi kết hợp với ánh sáng đèn màu vàng. Cửa chính tầng 1 được sử dụng bằng chất liệu nhôm hệ Xingfa, kính cường lực khổ lớn. Thiết kế này giúp có thêm cách lấy sáng, lấy gió tự nhiên vào nhà, tạo cảm giác không gian rộng hơn.

Phối cảnh 3D góc nghiêng công trình
Công trình sử dụng hệ mái bằng hiện đại với kết cấu bê tông cốt thép được đổ liền khối chắc chắn, đảm bảo khả năng chịu lực và độ bền lâu dài. Bề mặt mái có thể kết hợp chống thấm, chống nóng kỹ lưỡng hoặc tận dụng làm sân phơi. Thiết kế mái bằng không chỉ phù hợp với phong cách kiến trúc đô thị mà còn tạo điều kiện thuận lợi cho việc nâng tầng khi có nhu cầu mở rộng diện tích sử dụng.

Phối cảnh 3D góc trên cao phía trước
Quan sát từ trên xuống, có thể thấy hệ mái của ngôi nhà ống 2 tầng 5,5 x 22,2m được lợp tôn chống nóng, giải pháp phù hợp với những căn nhà ống dài, giúp giảm hấp thụ nhiệt, tăng hiệu quả chống nóng và đảm bảo độ bền theo thời gian. Bên cạnh đó, hệ thống téc nước và thái dương năng được sắp xếp gọn gàng, khoa học trên mái, vừa tối ưu công năng sử dụng, vừa đảm bảo tính thẩm mỹ.

Phối cảnh 3D phía sau căn nhà
Mặt bằng tầng 1 được thiết kế điển hình với ưu thế về chiều sâu. Mặt tiền khoảng 5,5m và chiều sâu tổng thể khoảng 22,2m. Diện tích rất rộng rãi so với tiêu chuẩn nhà phố, vị trí ngay sau cửa chính, sử dụng hệ cửa 4 cánh lớn giúp đón ánh sáng và gió tối đa cho công trình. Cầu thang đóng vai trò ngăn cách giữa phòng khách và bếp ăn. Việc đặt cầu thang ở vị trí này giúp tối ưu đi lại sinh hoạt trong gia đình, rút ngắn khoảng cách di chuyển từ các phòng đến lối lên tầng 2. Tầng 1 được bố trí 1 phòng ngủ Master, rất phù hợp cho người lớn tuổi trong gia đình để tránh phải leo cầu thang. Nhà vệ sinh chung được đặt cuối nhà, diện tích khá lớn, có thể tách biệt khu vực tắm và vệ sinh khô/ướt. Lối cửa sau dẫn ra khu vực phụ (có thể là sàn rửa hoặc sân sau), giúp thoát mùi cho nhà bếp và tạo đối lưu không khí xuyên suốt từ trước ra sau.

Mặt bằng công năng tầng 1
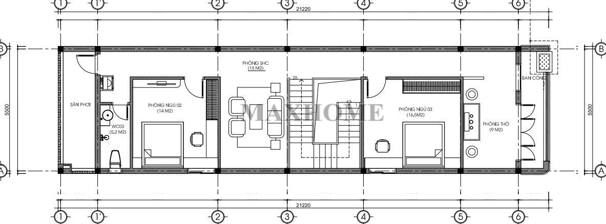
Mặt bằng tầng 2 này được thiết kế tập trung vào sự riêng tư và không gian thư giãn cho gia đình. Với diện tích tương đương tầng 1, các phòng được bố trí rất rộng rãi. Phòng thờ được đặt ở vị trí cao nhất theo đúng phong tục truyền thống, đảm bảo sự yên tĩnh. Phía trước căn nhà được bố trí ban công thông thoáng nhờ giúp căn nhà không bị bí bách. Cả hai phòng ngủ trên tầng này đều có diện tích trên 23m². Điều này cho phép bạn thoải mái bố trí thêm hệ tủ quần áo lớn, bàn làm việc. Ở cuối công trình gia chủ có bố trí 1 khu vực sân phơi, để phơi phóng quần áo tránh mưa gió, bụi bẩn.

Mặt bằng công năng tầng 2
Đây là mặt bằng công năng được đội ngũ kiến trúc sư Maxhome dày dặn kinh nghiệm, tính toán kỹ lưỡng, ưu tiên chất lượng công trình và không gian sống. Phù hợp với những gia đình yêu thích sự thoải mái và sang trọng. Tổng thể mặt bằng công năng của căn nhà được tổ chức gọn gàng, đáp ứng đầy đủ nhu cầu sinh hoạt và nghỉ ngơi của gia đình.











